Verkocht onder voorbehoud: Oranjepark 34, 1405 HE Bussum
Verkocht onder voorbehoud: Oranjepark 34, 1405 HE Bussum
Verkocht onder voorbehoud: Oranjepark 34, 1405 HE Bussum
Verkocht onder voorbehoud

Oranjepark 34, 1405 HE Bussum

€ 495.000,- k.k.

Beschrijving Oranjepark 34

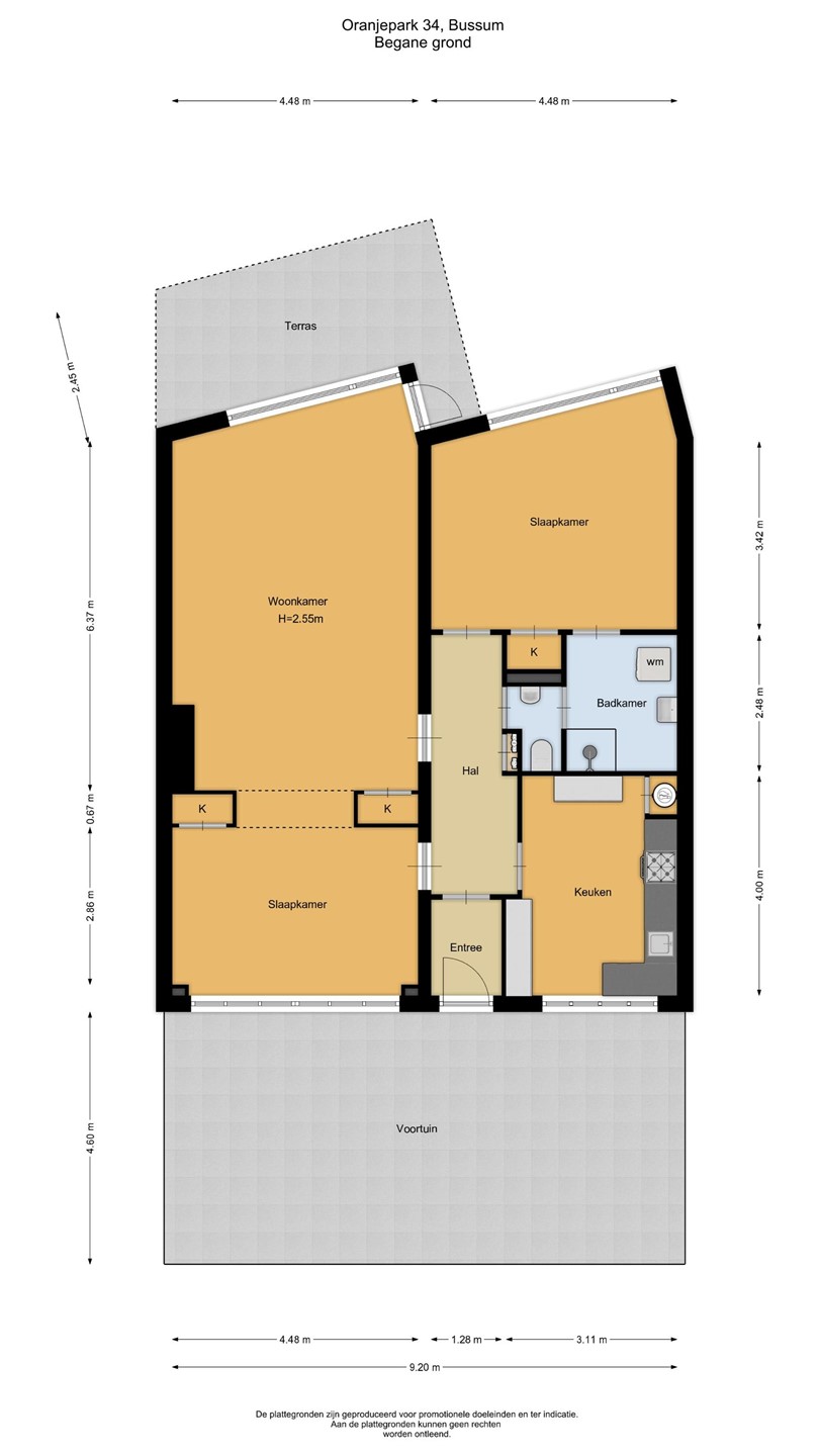
Op een prachtig punt aan de rand van villawijk 'het Spiegel' ligt dit royale, goed onderhouden 2 (v/h 3)-kamer appartement op de begane grond met een ruime tuin aan de voorzijde op het westen alsmede een zonneterras bij de woonkamer. Verder beschikt het appartement over een ruime externe berging...

Kenmerken

Type object Appartement, benedenwoning
Bouwjaar 1955
Status Verkocht onder voorbehoud
Aangeboden sinds Maandag 22 september 2025

Oranjepark 34 bekijken?

Je kunt ons tijdens kantooruren bellen voor het plannen van een bezichtiging. Onze binnendienst zit voor je klaar. Je ook óók zelf een bezichtiging inplannen via de button links onderin. Handig voor ná kantooruren en in het weekend. Indien er geen tijdslot meer beschikbaar is, dan kun je ons het beste mailen. Wij kijken ernaar uit om je te ontmoeten.

Met vriendelijke groet,

Team Visch en van Zeggelaar

Afdrukken

Teamfoto Visch en van Zeggelaar

Let's get in touch

Breng een bod uit