Beschrijving

Op een prachtig punt aan de rand van villawijk 'het Spiegel' ligt dit royale, goed onderhouden 2 (v/h 3)-kamer appartement op de begane grond met een ruime tuin aan de voorzijde op het westen alsmede een zonneterras bij de woonkamer.  Verder beschikt het appartement over een ruime externe berging aan de overzijde. 

Kenmerkend voor de woning is de lichtinval, het uitzicht over de fraaie tuin en de centrale ligging ten opzichte van diverse voorzieningen. Het appartement ligt op steenworp afstand van het gezellige dorpscentrum van Bussum en station Naarden-Bussum.

Het appartementencomplex is onder architectuur van Dudok ontworpen met de voor Dudok zo bekende okerkleurige baksteen.

Enkele maten:
Woonoppervlakte: ca. 97m2
Externe berging: ca. 7m2
Inhoud: 304m3
Voortuin: ca. 63m2

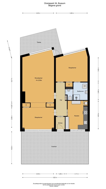
Indeling:
Entree, tochtportaal, hal met meterkast en toilet, woon/eetkeuken met het navolgende inbouw apparatuur, 4-pits gaskookplaat, afzuigkap, oven, vaatwasser, magnetron en koel/vries combinatie. Tevens is in de keuken een kast waar zich de boiler in bevindt. Royale woon/eetkamer (voorheen waren dit 2 kamers) met veel licht, visgraat parketvloer en fraai vrij uitzicht over de tuin. Vanuit de woonkamer is het zonneterras aan de achterzijde bereikbaar. Grote slaapkamer met kastruimte. Vanuit de slaapkamer is er toegang naar de badkamer welke is voorzien van een douche, wastafel en aansluiting wasmachine.

Tuin:
Het appartement beschikt over een eigen voortuin bij de entree. De voortuin is gelegen op het westen en aan de achterkant van het appartement is er een zonneterras welk op het oosten is gelegen. 

Bijzonderheden:
* Gebouwd onder architectuur van Dudok 
* Gemeentelijk monument 
* Royaal 2 (voorheen 3-kamer) appartement van maar liefst 97m2
* Het appartement kan terug gebracht worden naar een 3-kamer appartement door middel van het plaatsen van een tussenmuur.
* Royale voortuin op het westen
* Zonneterras achterzijde op het oosten
* Fraai vrij uitzicht 
* Servicekosten €216,-- per maand
* Het appartementen complex beschikt over een blokverwarming hiervoor betaalt u €150,- per maand aan voorschot stookkosten. 1 x per jaar wordt dit op meer en/of minder verrekend. 
* Gunstige ligging nabij station NS Naarden Bussum en centrum
* Voorbehoud gunning eigenaar
* oplevering in overleg

Kortom: wilt u de stap maken naar een mooi appartement maar toch nog heerlijk kunnen genieten van een tuin? Dan maken wij graag een afspraak met u om dit bijzondere appartement met u te bezichtigen!

Kenmerken