Beschrijving
Aan een rustig plantsoen ligt deze royale uitgebouwde gezinswoning met maar liefst 6 slaapkamers en 2 badkamers! De achtertuin is gelegen op het westen en is voorzien van een groot nieuwgebouwde schuur en achterom.
Locatie:
De Vogelbuurt kenmerkt zich door een kindvriendelijke leefomgeving met veel groen, scholen en winkels op loopafstand. De woning is zeer rustig gelegen op minder dan vijf minuten loopafstand van de Bussummerheide (met speeltuin en speelveld), net als het winkelcentrum Koekoeklaan (AH, bakker, slager, en Gall&Gall). Daarnaast zijn de uitvalswegen naar Amsterdam en Utrecht vlakbij, net zoals het NS-station Bussum-Zuid met goede verbindingen naar Amsterdam, Schiphol, Hilversum, Amersfoort en Utrecht.
Enkele maten:
Woonoppervlakte ca. 158m2
Gebouw gebonden buitenruimte (balkon): ca. 4m2
Externe bergruimte (berging): ca. 16m2
Perceeloppervlakte: 150m2
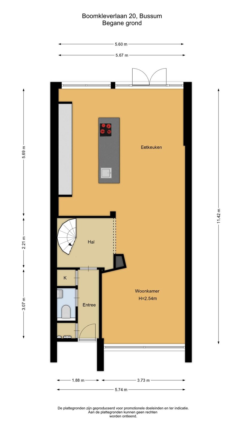
Begane grond;
* entree, hal, berg- en meterkast;
* fraai zwevend toilet met fontein;
* uitgebouwde zeer lichte woon/eetkamer met aan de achterzijde de Eye catcher van het huis, de fraaie luxe woon/eetkeuken met kookeiland
* de keuken is voorzien van het navolgende inbouwapparatuur: grote vriezer, grote koelkast, Quooker (cube), inductiekookplaat met geïntrigeerde afzuigkap, ingebouwde koffiezetapparaat, combi/oven magnetron en stoomoven. Het apparatuur is deels van Gaggenau en deels van Siemens
* bij de eettafel zijn er prachtige (hoge) openslaande deuren naar de fraaie aangelegde achtertuin
* De begane grond is voorzien van een fraaie eikenhouten visgraat parket vloer
Eerste verdieping:
* ruime overloop met toegang tot de 4 slaapkamers en de badkamer;
* grote slaapkamer aan voorzijde met toegang tot balkon;
* kleinere slaapkamer aan voorzijde, eveneens met toegang tot balkon;
* 2 goede slaapkamers aan achterzijde waarvan er thans 1 in gebruik is als wasruimte. Tevens bevindt zich hier de CV combi ketel
* badkamer met inloopdouche, wastafelmeubel, zwevend toilet en een designradiator
Tweede verdieping:
* ruime overloop met velux dakraam
* eerste grote slaapkamer met vaste kasten
* moderne badkamer met douche, zwevend toilet, wastafelmeubel, designradiator en voor daglicht en ventilatie een veluxraam
* tweede royale slaapkamer tevens met vaste kasten
De tuin:
De woning is gelegen op een perceel van 150m2 eigen grond. In de voortuin heeft u plaats voor een bankje waar u kunt genieten van de middag en avondzon. De fraai aangelegde achtertuin heeft een Oostligging waar u kunt genieten van de ochtend en middagzon. In de achtertuin is een grote schuur met elektra en een achterom aanwezig.
Bijzonderheden:
* kindvriendelijke woonomgeving
* uitgebouwde woon/eetkamer
* fraaie luxe woonkeuken met kookeiland
* 6 slaapkamers en 2 badkamers
* energielabel B
* oplevering in overleg
* voorbehoud gunning eigenaar
Door de ligging, indeling, afwerking en ruimte is dit een ultiem gezinshuis! Graag maken wij met u een afspraak voor een bezichtiging!