Beschrijving

In een kindvriendelijke woonwijk aan de rustig gelegen Huibert van Eijkenstraat ligt deze uitgebouwde en goed onderhouden eengezinswoning met een woonoppervlakte van 132m2, met onder andere een royale woonkamer en een (uitgebouwde) woon/eetkeuken met kookeiland.

Locatie: 
De ligging is ideaal in een rustige en kindvriendelijke omgeving. Alle voorzieningen zijn in de buurt te vinden, zoals het winkelcentrum voor alle dagelijkse boodschappen, Naarden-Vesting met al haar winkels, restaurantjes en historie, het prachtige uitgestrekte natuurgebied 'Het Naardermeer', een basisschool, bso en peuterspeelzaal op loopafstand en middelbare scholen op fietsafstand. De uitvalswegen richting Amsterdam A1 en Utrecht A27 zijn eveneens nabij, alsmede het NS station Naarden-Bussum. 

Enkele maten: 
Woonoppervlakte: ca. 127m2 
Externe bergruimte (schuur): ca. 5m2 
Inhoud: ca. 437m3 
Perceel: 216m2

Indeling:
Entree, hal met garderobe, vaste kast, modern zwevend toilet met fontein en meterkast. Royale woonkamer met een open uitgebouwde woon/eetkeuken welke is voorzien van een fraai kookeiland en het navolgende inbouwapparatuur: inductiekookplaat, afzuigkap, koelkast, vriezer, vaatwasser en combimagnetron. Naast de woonkeuken is er een bijkeuken met een kastenwand aanwezig. Via de openslaande deuren is de diepe zonnige achtertuin aanwezig.

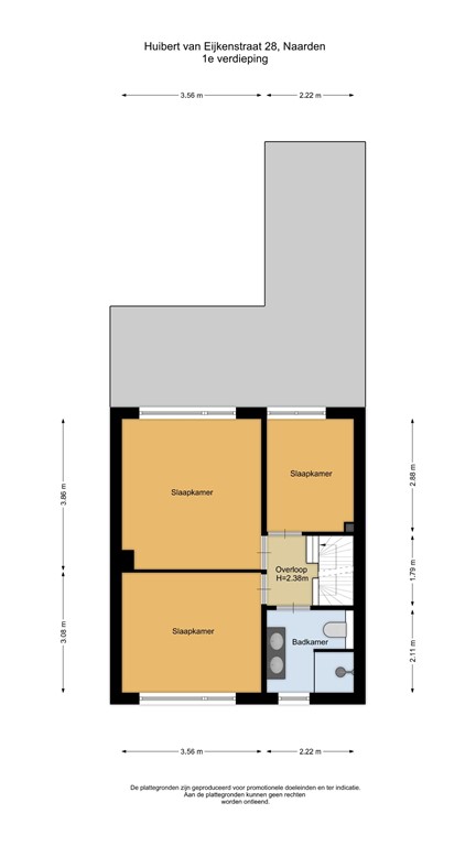
Eerste verdieping:
Overloop, eerste grote slaapkamer, tweede slaapkamer, prachtige nieuwe badkamer (2025) welke onder meer is voorzien van een fraaie inloopdouche, dubbele wastafelmeubel met design spiegel, zwevend toilet en elektrische vloerverwarming. Derde goed formaat slaapkamer.

Tweede verdieping:
Royale overloop met wastafel en veel bergruimte achter de knieschotten. Aparte ruimte waar zich thans de aansluitingen bevinden voor de wasmachine en (condens) droger. Tevens bevindt zich in deze ruimte de CV installatie (2022). Vierde grote slaapkamer met dakkapel aan de achterzijde.

De tuin:
De woning is gelegen op een perceel van 216m2 eigen grond. Aan de voorzijde is er een klein grasveld met een terras. De diepe achtertuin is uitstekend op de zon gelegen en is voorzien van diverse terrassen waar u gedurende de dag altijd een zon en schaduwplek kunt vinden. De achtertuin is middels de openslaande deuren bij de woonkeuken bereikbaar alsmede via een achterom. In de achtertuin staat een stenen schuur. 

Bijzonderheden:
* kindvriendelijke locatie nabij alle voorzieningen
* uitgebouwde woonkeuken met kookeiland
* openslaande deuren naar de zonnige achtertuin 
* 4 goed formaat slaapkamers
* moderne keuken en badkamer
* de woning is bouwkundig gekeurd. Het rapport is beschikbaar in het move account 
* oplevering in overleg
* voorbehoud gunning eigenaar

Kortom: bent u op zoek naar een heerlijk gezinshuis op een kindvriendelijke locatie? Dan maken wij graag een afspraak met u om deze woning met u te bezichtigen!

Kenmerken