Beschrijving

Gelegen in de meest kindvriendelijke straat van de gewilde villawijk "Het Rembrandtkwartier" ligt deze royale middenwoning met onder meer een ruime kamer en-suite, half openkeuken, 5 slaapkamers en 2 badkamers.

Het Rembrandtkwartier:
Deze groene, ruim opgezette, kinderrijke en kindvriendelijke villawijk dankt zijn populariteit aan de uitstekende centrale ligging. Op loopafstand zijn winkels, scholen, filmhuis, kinderdagverblijven en sportvelden en -accommodaties. Ook zijn het dorpscentrum, horeca, station Naarden-Bussum, uitvalswegen naar Amsterdam, Utrecht, Amersfoort en Hilversum en diverse natuurgebieden zoals de Limitische heide, de bossen en het Naardermeer vlakbij en goed bereikbaar.

Enkele maten:
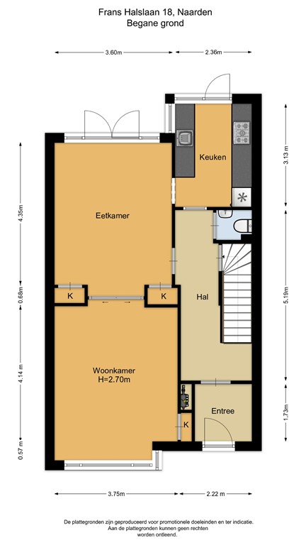
Woonoppervlakte ca. 155m2
Gebouw gebonden buitenruimte (balkon): ca. 4m2
Externe bergruimte (berging): ca. 13m2
Inhoud: ca. 535m3
Perceel: 221m2 

Indeling:
Entree, vestibule met garderobe en meterkast. Brede hal met trapkast, toilet met fontein. Royale kamer en-suite met openhaard, fraaie schuifdeuren en openslaande deuren naar de zonnige achtertuin. De keuken is half open en onder meer voorzien van het navolgende inbouwapparatuur: 5 pits gaskookplaat met oven, afzuigkap, koelkast, vriezer, en vaatwasser. De keuken is verder v.v. vloerverwarming.

Eerste verdieping:
Overloop met apart toilet, eerste slaapkamer, tweede goedformaat slaapkamer met vaste kast, derde slaapkamer met vaste kast en openslaande deuren naar het balkon. Badkamer met ligbad, douche en wastafel.

Tweede verdieping:
Ruime overloop met veluxraam en de aansluitingen voor de wasmachine en (condens) droger. Tevens is de vliering vanuit de overloop bereikbaar. Op de vliering bevindt zich de CV ketel en is verder prima geschikt voor opslag. Eerste slaapkamer met dakkapel en vaste kast, tweede tevens goedformaat slaapkamer welke ook voorzien is van een dakkapel en vaste kast. Vanuit beide slaapkamers is de badkamer bereikbaar welke onder meer is voorzien van een inloop douche, wastafel en zwevend toilet.

De tuin:
De villa is gelegen op een royaal perceel van 221m2 eigen grond. De woning is voorzien van een royale voortuin gelegen op het zonnige westen met een bankje waar u heerlijk kunt genieten van de middag en avond zon. Tevens is hier een trampoline en een grasveld aanwezig. De achtertuin is middels de openslaande deuren bereikbaar en is op het oosten gelegen waardoor u hier kunt genieten van de ochtend en middag zon. In de achtertuin staat een grote schuur welke is v.v. elektra. Middels een achterom is de achtertuin tevens bereikbaar.

Bijzonderheden:
* gelegen midden in het Rembrandtkwartier
* zeer kindvriendelijke autoluwe straat
* karakteristieke 30-er jaren bouw
* karakteristieke kamer- en suite met originele schuifdeuren 
* 5 goedformaat slaapkamers en 2 badkamers
* nagenoeg geheel voorzien van dubbelglas (op dakkapellen na)
* bouwkundige keuring op te vragen bij de makelaar
* oplevering in overleg 
* voorbehoud gunning eigenaar 

Kortom: een heerlijk gezinshuis op een uitstekende locatie!

Kenmerken