Beschrijving
Charmant en fris appartement aan de Nieuweweg 73H in Hoofddorp
Welkom in dit frisse en sfeervolle appartement aan de Nieuweweg 73H — een woning waar licht, ruimte en stijl perfect samenkomen. Zodra je binnenstapt, valt meteen de prachtige visgraatvloer op die door het hele appartement loopt. Deze vloer geeft de woning een moderne, maar tegelijkertijd warme uitstraling, en vormt de ideale basis voor elk interieur.
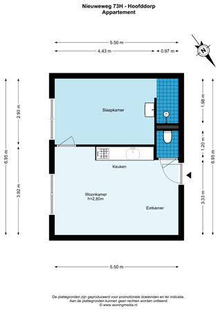
De woonkamer is een prettige, open ruimte met een plafondhoogte van maar liefst 2,80 meter, waardoor het gevoel van licht en lucht nog eens extra wordt versterkt. Hier is plek genoeg voor een gezellige zithoek, terwijl de aangrenzende eethoek uitnodigt tot lange avonden tafelen met vrienden of familie.
De keuken ligt centraal in de woning en is praktisch ingedeeld, met alles binnen handbereik. Of je nu snel een ontbijt maakt of uitgebreid kookt — deze keuken vormt het hart van het huis.
Aan de rustige achterzijde bevindt zich de slaapkamer, die dankzij de ligging en de frisse afwerking een heerlijke plek is om tot rust te komen en voorzien van een wastafel. Aansluitend vind je de badkamer, voorzien van een douche en heb je een separaat toilet, allemaal uitgevoerd in frisse, moderne tinten.
Met een goed doordachte indeling, een stijlvolle visgraatvloer en een lichte, uitnodigende sfeer is dit appartement een heerlijke plek om thuis te komen. Een woning die niet alleen praktisch is, maar vooral heel prettig aanvoelt — klaar om in te trekken!
Omgeving
De Nieuweweg 73H ligt op een ideale locatie, midden in het centrum van Hoofddorp. Hier woon je letterlijk op loopafstand van alle dagelijkse voorzieningen. In de directe omgeving vind je een ruime keuze aan winkels, supermarkten, cafés en restaurants. Het overdekte winkelcentrum Vier Meren ligt op slechts enkele minuten lopen en biedt een compleet aanbod aan winkels, eetgelegenheden en speciaalzaken.
Voor ontspanning en recreatie hoef je eveneens niet ver van huis. In de buurt liggen diverse sportscholen, parken en het Cultuurgebouw, waar je terecht kunt voor theater, film of muziek. Ook het populaire Haarlemmermeerse Bos ligt op korte afstand – ideaal voor een wandeling, hardlooprondje of picknick aan het water.
De bereikbaarheid is uitstekend: het station Hoofddorp ligt op fietsafstand en biedt directe treinverbindingen naar onder andere Amsterdam, Leiden en Schiphol. Met de auto zit je binnen enkele minuten op de A4 en A5, waardoor steden als Amsterdam, Haarlem en Den Haag snel bereikbaar zijn. Bovendien is er in de omgeving voldoende parkeergelegenheid.
HUURWONING
Het betreft een voormalige huurwoning, de woning is door verkoper nooit bewoond geweest. Derhalve wordt er in de koopovereenkomst een niet-zelfbewoningclausule en een "as is where is'' clausule opgenomen vanuit verkoper.
Algemene kenmerken:
- Eigen grond – geen erfpacht!;
- energiezuinig (label A);
- Woonoppervlak ca. 38m²;
- VVE met een maandelijkse bijdrage van € 149,14,- per maand. Dit is exclusief voorschotstookkosten van circa € 150,- euro per maand;
- Centrum, musea, en horecagelegenheden in nabije omgeving;
- Gelegen op de vierde verdieping;
- Vaste project notaris Buma Algera;
- Aanvaarding in overleg.
Deze informatie is door ons met de grootst mogelijke zorg samengesteld. Wij aanvaarden echter geen enkele aansprakelijkheid voor enige onvolledigheid, onjuistheid of anderszins, noch voor de gevolgen daarvan. Alle opgegeven maten en oppervlakten zijn indicatief. Koper heeft zijn eigen onderzoeksplicht naar alle zaken die voor hem of haar van belang zijn.
Ten aanzien van deze woning treedt de verkopende makelaar op als belangenbehartiger van de verkoper. Wij adviseren u een deskundige (NVM-)makelaar in te schakelen die u begeleidt bij het aankoopproces. Indien u specifieke wensen heeft met betrekking tot de woning, adviseren wij u deze tijdig kenbaar te maken aan uw aankopend makelaar en (of) hiernaar zelfstandig onderzoek te doen.
Indien u geen professionele vertegenwoordiger inschakelt, wordt u volgens de wet geacht voldoende deskundig te zijn om alle relevante zaken te kunnen overzien. De NVM-voorwaarden zijn van toepassing.
---------------------------------------------------------------------------------------------------------------------------------------------------------------------