Beschrijving

Op steenworp afstand van het centrum van Bussum staat deze uitgebouwde karakteristieke jaren ’30 helft van een dubbele villa welke is gelegen op een fraai perceel van 366m2 eigen grond. De villa is onder meer voorzien van een royale woon/eetkeuken met openslaande deuren naar de zonnige achtertuin, 5 slaapkamers, 2 badkamers en een garage.

OMGEVING
Het mooie groene Bilderdijkpark en 't Mouwtje liggen om de hoek. Het NS-treinstation en diverse basis- en middelbare scholen liggen in de directe omgeving, net als de uitvalswegen richting Amsterdam, Almere, Utrecht en Amersfoort.

Enkele maten:
Woonoppervlakte: ca. 141m2
Gebouw gebonden buitenruimte (balkon): ca. 3m2
Externe bergruimte (garage): ca. 19m2
Inhoud: ca. 515m3
Perceel: 366m2

Indeling:
Entree, vestibule met originele tegels en fraaie glas in lood raam, uitstekend geschikt voor de garderobe. Hal met trapkast waar zich de groepenkast bevindt. Zwevend toilet met fontein. In 2019 is de villa aan de achterzijde uitgebouwd waardoor er een royale woon/eetkeuken is ontstaan met openslaande deuren naar de zonnige achtertuin. De fraaie keuken (2019) is onder meer voorzien van een kookeiland met inductiekookplaat, geïntegreerde afzuigkap en wijn klimaatkast. Verder is er een koelkast, vriezer, stoomoven/magnetron, oven, vaatwasser en Quooker aanwezig. In de uitbouw is er een mooie lichtstraat gemaakt waardoor er een prachtige lichtinval is. De lichtstraat is voorzien van een elektrische screen. Vanuit de woon/eetkeuken is er middels de karakteristieke schuifdeuren met glas en lood de woonkamer bereikbaar. Deze is voorzien van een erker aan de voorzijde en een rookkanaal waar een allesbrander op aan te sluiten is. 

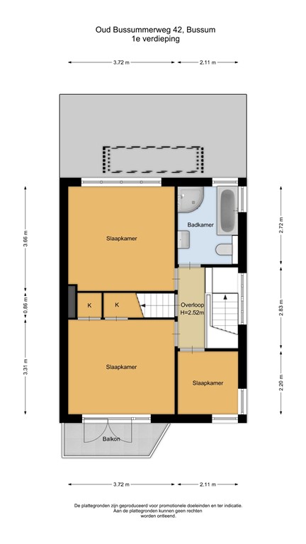
Eerste verdieping:
Middels het fraaie trappenhuis wederom met glas in lood is de overloop van de eerste verdieping bereikbaar. Eerste grote slaapkamer met vaste kastenwand en balkon aan de voorzijde. Badkamer met ligbad, douche, zwevend toilet, wastafelmeubel, designradiator en vloerverwarming. Tweede grote slaapkamer en een derde kleinere slaapkamer. 

Tweede verdieping:
Overloop met vaste kast, eerste slaapkamer met dakkapel, Veluxraam en airconditioning, tweede slaapkamer met dakkapel en Veluxraam. Tevens is in deze slaapkamer in een vaste kast de CV ketel netjes weggewerkt (ca. 2019). In 2023 is er een 2e badkamer gecreëerd welke vanuit beide slaapkamers bereikbaar is en is voorzien van een zwevend toilet, douche, wastafelmeubel en designradiator. 

De tuin:
De 2-onder-1 kap woning is gelegen op een kavel van 366 m2 eigen grond waarbij aan de voorzijde 3 parkeerplaatsen zijn op eigen terrein alsmede een trampoline voor de kids. Aan de achterzijde bevindt zich de garage met vliering thans berging en een achteruitgang naar de Simon Stevinweg waar de kinderen heerlijk op het pleintje kunnen spelen. De achtertuin is gelegen op het zuidoosten waarbij men op drie terrassen, waarvan een bij de keuken, praktisch de hele dag van de zon kan genieten.

Bijzonderheden:
* karakteristieke jaren 30 bouw met veel stijlkenmerken 
* uitgebouwde woon/eetkeuken
* fraaie keuken met veel inbouwapparatuur
* vanuit de woon/eetkeuken openslaande deuren naar de heerlijke achtertuin
* 5 slaapkamers en 2 moderne badkamers
* buitenschilderwerk 2024
* parkeergelegenheid voor meerdere auto's op eigen terrein
* meerdere terrassen in de achter en zijtuin waar u nagenoeg de hele dag kunt genieten van de zon 
* grote garage met vliering
* beschermd stads-dorpsgezicht 
* de villa is bouwkundig gekeurd, op de website van de woning kunt u het rapport lezen 
* voorbehoud gunning eigenaar
* oplevering in overleg 

Kortom: een heerlijk gezinshuis op een fantastische locatie nabij alle faciliteiten! Graag maken wij een afspraak met u voor een bezichtiging!

Kenmerken