Beschrijving

Charmante vrijstaande woning met veelzijdig souterrain – op loopafstand van het centrum van Bussum

In de geliefde, autoluwe Molenlaan mogen wij met trots deze sfeervolle vrijstaande woning presenteren. 
Hier woont u rustig en omgeven door groen, terwijl het levendige centrum van Bussum zich letterlijk om de hoek bevindt. Deze woning is bij uitstek geschikt voor jonge gezinnen dankzij de ideale combinatie van ruimte, kindvriendelijkheid en de gunstige ligging.

INDELING:
Begane grond
Entree, hal met toilet en garderobe, trap naar de kelder en eerste verdieping. De lichte moderne keuken is voorzien van diverse inbouwapparatuur. De lichte woonkamer is voorzien van een natuurstenen vloer (met vloer verwarming) en heeft openslaande deuren naar de achtertuin.

Souterrain
Het souterrain is een echte verrassing: een volwaardige woonlaag met meerdere gebruiksmogelijkheden. De 2 ruime kamers zijn perfect te gebruiken als speelkamer, werkkamer of logeerruimte.

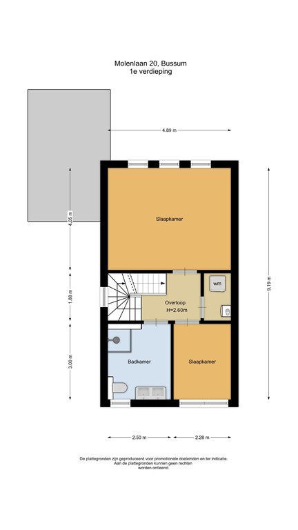
Eerste verdieping
Overloop met toegang tot 1 royale slaapkamer en een 2e slaap/werk kamer. Badkamer voorzien van inloopdouche, wastafelmeubel en toilet. Aparte berging met wasmachine aansluiting en CV-ketel.

Tweede verdieping
Overloop met pantry, 2 ruime slaapkamers voorzien van veluxramen en berging.

Buitenruimte
Aan de voorzijde een verzorgde voortuin met groen uitzicht over de rustige straat. Aan de zijkant een ruime inrit voor de auto met toegang tot garage/ chillruimte.

Bijzonderheden
- Sfeervolle vrijstaande! woning met veel lichtinval
- Verrassend souterrain met 2 ruime kamers
- Rustige, kindvriendelijke en autoluwe ligging
- Op loopafstand van winkels, horeca, scholen en station
- Parkeren op straat via vergunning (€ 41,30 per jaar – gemeente Gooise Meren)
- Alarminstallatie

Woonoppervlakte: 162 m2

De Molenlaan staat bekend om haar karakteristieke vooroorlogse woningen en haar kindvriendelijke, verkeersarme karakter – een heerlijke plek waar rust, sfeer en gezelligheid samenkomen.

U bent van harte welkom om deze woning te komen bezichtigen!

Kenmerken