Beschrijving

NIEUW IN DE VERKOOP – Zeeburgerkade 532 Amsterdam
Karakteristiek en royaal dubbel bovenhuis met fenomenaal uitzicht over de Entrepothaven, gelegen in een voormalig pakhuis uit circa 1898 dat rond 1990 volledig is vernieuwbouwd met behoud van monumentale details. De combinatie van historische elementen, hoge plafonds tot ca. 3 meter, grote raampartijen en een markante erker aan het water zorgt voor een unieke woonbeleving met veel licht en ruimte. De woning beschikt over een eigen parkeerplaats in de garage alsmede een externe berging in de onderbouw.

INDELING
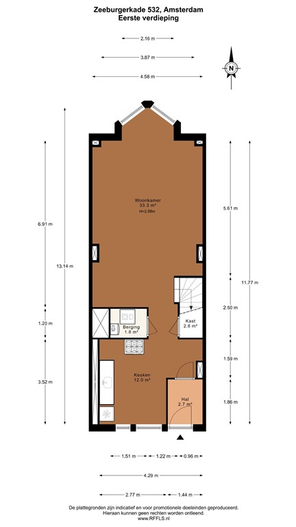
Eerste verdieping
Entree, hal met een ruime garderobe, berging met cv-ketel en wasmachineaansluiting, separate kast onder de trap. Half open keuken van ca. 12 m² met losse elementen en 6-pits gasfornuis. Aan de voorzijde ligt de indrukwekkende woonkamer van ca. 33 m² met prachtig zicht over het water en fraaie plafondhoogte.

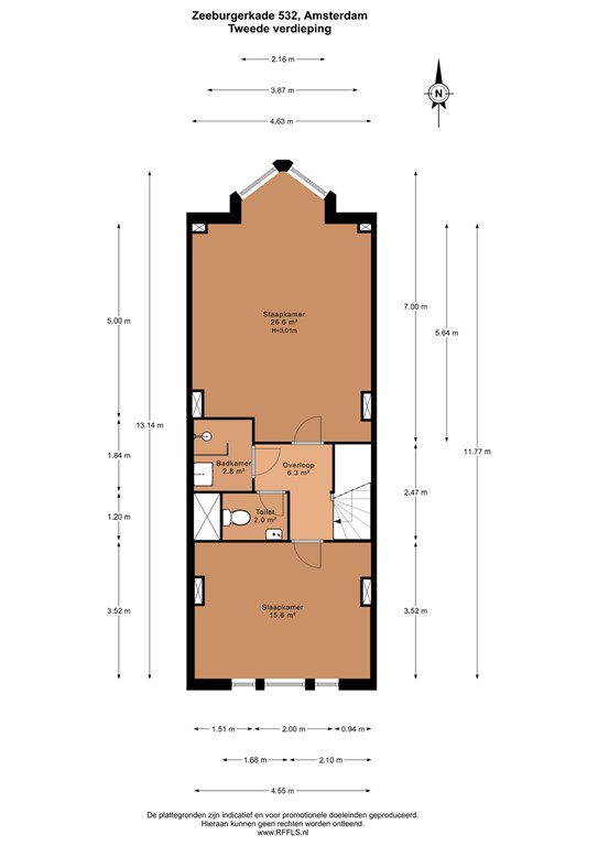
Tweede verdieping
Overloop, separaat toilet, badkamer met douche en wastafel. Zeer ruime slaapkamer aan de waterzijde van ca. 26,6 m² en tweede slaap/werkkamer van ca. 15,6 m² aan de atriumzijde.

Begane grond
Eigen parkeerplaats in de parkeerkelder en separate externe berging van ca. 5,1 m².

OMGEVING
Gelegen aan de geliefde Zeeburgerkade in het Oostelijk Havengebied, een rustige woonomgeving met een stoer industrieel karakter en veel water. Op loopafstand bevinden zich diverse voorzieningen zoals een Albert Heijn, sportscholen, The Harbour Club, verschillende restaurants en hotels. Sportfaciliteiten, scholen en kinderopvang liggen eveneens in de directe omgeving. Het centrum van Amsterdam is snel bereikbaar per fiets en met de auto ben je binnen enkele minuten op de ring A10. Openbaar vervoerverbindingen zijn op korte afstand aanwezig.

VVE
Het appartementsrecht maakt onderdeel uit van een professioneel beheerde VVE, de maandelijkse bijdrage bedraagt momenteel €340,-. De vereniging beschikt over een financiële begroting alsmede een MJOP.

ERFPACHT
De woning is gelegen op gemeentelijke erfpachtgrond, de canon is vooruitbetaald tot en met 28-02-2039. Er is reeds gebruik gemaakt van een overstap naar eeuwigdurende erfpacht onder de gunstige voorwaarden, de canon na einde tijdvak bedraagt momenteel € 567,61 per jaar maar is onderhevig aan jaarlijkse indexatie.

UITGANGSPUNTEN
- Vraagprijs: € 775.000,- kosten koper;
- Beschikbaar: per direct;
- Energielabel A;
- 110 m2 gemeten conform NEN2580;
- Eigen parkeerplaats in de garage;
- Externe bergruimte van 5 m2 gelegen op de begane grond;
- Complex beschikt over een lift;
- VVE bijdrage: € 340,- per maand;
- Niet-zelfbewoningsclausule is van toepassing op de koop;
- Notaris: keuze koper, binnen de ring van Amsterdam.

Voor inlichtingen of het maken van een afspraak voor een bezichtiging:

Visch & van Zeggelaar Amsterdam 020 - 20 91 911

Deze informatie is door ons met de nodige zorgvuldigheid samengesteld. Onzerzijds wordt echter geen enkele aansprakelijkheid aanvaard voor enige onvolledigheid, onjuistheid of anderszins, dan wel de gevolgen daarvan. Alle opgegeven maten en oppervlakten zijn indicatief. Koper heeft zijn eigen onderzoek plicht naar alle zaken die voor hem of haar van belang zijn. Met betrekking tot deze woning is de makelaar adviseur van verkoper. Wij adviseren u een deskundige (NVM-)makelaar in te schakelen die u begeleidt bij het aankoopproces. Indien u specifieke wensen heeft omtrent de woning, adviseren wij u deze tijdig kenbaar te maken aan uw aankopend makelaar en hiernaar zelfstandig onderzoek te (laten) doen. Indien u geen deskundige vertegenwoordiger inschakelt, acht u zich volgens de wet deskundige genoeg om alle zaken die van belang zijn te kunnen overzien. Van toepassing zijn de NVM voorwaarden.

------------------------------------------------------------

NEW FOR SALE – Zeeburgerkade 532 Amsterdam
Characteristic and spacious double upper apartment with phenomenal views over the Entrepothaven, located in a former warehouse dating from approximately 1898 that was completely redeveloped around 1990 while retaining its monumental details. The combination of historical elements, ceilings up to approx. 3 meters high, large windows, and a striking bay window facing the water creates a unique living experience with abundant light and space. Includes a private parking space and external storage in the basement.

LAYOUT
First floor
Entrance, hallway with a spacious wardrobe area, storage room with central heating boiler and washing machine connection, separate cupboard under the stairs. Semi-open kitchen of approx. 12 m² with freestanding elements and a 6-burner gas stove. At the front is the impressive living room of approx. 33 m² with beautiful water views and generous ceiling height.

Second floor
Landing, separate toilet, bathroom with shower and washbasin. Very spacious bedroom on the waterside of approx. 26.6 m² and a second bedroom/study of approx. 15.6 m² on the atrium side.

Ground floor
Private parking space in the parking garage and separate external storage room of approx. 5.1 m².

SURROUNDINGS
Located on the popular Zeeburgerkade in the Eastern Docklands, a quiet residential area with a rugged industrial character and plenty of water. Within walking distance are various amenities such as an Albert Heijn supermarket, gyms, The Harbour Club, several restaurants, and hotels. Sports facilities, schools, and childcare are also nearby. Amsterdam city center is easily reachable by bike, and by car you can access the A10 ring road within minutes. Public transport connections are available a short distance away.

HOMEOWNERS’ ASSOCIATION (VvE)
The apartment right is part of a professionally managed homeowners’ association. The current monthly contribution is €340. The association has a financial budget as well as a long-term maintenance plan (MJOP).

GROUND LEASE (ERFPACHT)
The property is situated on municipal leasehold land. The ground rent has been paid in advance until 28-02-2039. The transition to perpetual leasehold under favorable conditions has already been completed. The annual ground rent after the current period is €567.61 per year, subject to annual indexation.

KEY DETAILS
- Asking price: €775,000 buyer’s costs (kosten koper);
- Available: immediately;
- Energy label A;
- 110 m² measured in accordance with NEN2580;
- Private parking space in the garage;
- External storage of 5 m² located on the ground floor;
- Building equipped with an elevator;
- HOA contribution: €340 per month;
- Non-owner-occupancy clause applies to the purchase;
- Notary: buyer’s choice, within the Amsterdam ring road.

For further information or to schedule a viewing:

Visch & van Zeggelaar Amsterdam 020 - 20 91 911

This information has been compiled with due care. However, we accept no liability for any incompleteness, inaccuracies, or otherwise, nor for the consequences thereof. All stated measurements and surface areas are indicative. The buyer has their own duty to investigate all matters that are important to them. With regard to this property, the real estate agent acts as advisor to the seller. We recommend engaging a qualified (NVM) real estate agent to assist you during the purchase process. If you have specific requirements regarding the property, we advise you to communicate these in good time to your purchasing agent and to conduct (or have conducted) independent research. If you do not engage a professional representative, you declare yourself legally competent enough to oversee all relevant matters. NVM conditions apply.

Kenmerken