Beschrijving

NIEUW IN DE VERKOOP - Rustenburgerstraat 125-3: Sfeervol appartement in het hart van De Pijp

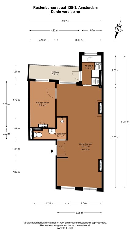
INDELING 
Aan de geliefde Rustenburgerstraat, midden in De Pijp, ligt dit charmante en sfeervolle appartement op de derde verdieping van een karakteristiek pand met een woonoppervlakte van circa 47 m².  Het goed ingedeelde appartement beschikt over een royale woonkamer met grote raampartijen aan de voorzijde, een separate slaapkamer en een nette keuken met toegang tot het balkon aan de achterzijde.
Prettig detail: de huidige indeling leent zich er heel eenvoudig voor om aan de voorzijde een extra slaapkamer te realiseren (bijvoorbeeld door een deel van de woonkamer af te scheiden), zonder dat het ruimtelijke gevoel verloren gaat.

AFWERKING
De woning is instapklaar en ademt rust: lichte wanden en plafonds, een warme houten vloer en veel daglicht door de hoge, brede ramen. De woonkamer biedt ruim plaats aan een comfortabele zithoek én een werk-/eethoek. Juist die flexibiliteit maakt het ook zo aantrekkelijk om hier een tweede slaapkamer te creëren.

De keuken is praktisch ingedeeld, met direct daarnaast de deur naar het balkon: ideaal voor een koffie in de ochtendzon of een borrel aan het einde van de dag. De badkamer is compact maar netjes uitgevoerd met douche, wastafel en toilet.

OMGEVING
Wonen aan de Rustenburgerstraat betekent wonen in één van de meest geliefde stukken van De Pijp: levendig, stedelijk en toch verrassend comfortabel. Op loopafstand vind je onder meer de Albert Cuypmarkt, het Sarphatipark en een enorme keuze aan fijne koffiezaken en restaurants. Denk aan hotspots in de buurt zoals Coffee & Coconuts, Bakers & Roasters, De Wasserette en de vele gezellige cafés en eettentjes rondom de Ferdinand Bolstraat en de Ceintuurbaan.

Qua bereikbaarheid zit je hier uitstekend: met metrostation De Pijp (Noord/Zuidlijn) in de buurt ben je snel in het centrum én op Station Zuid. Daarnaast zijn er diverse tram- en busverbindingen richting o.a. het Museumkwartier, Amstel en de Ring A10.

VVE
De woning maakt deel uit van een kleinschalige VvE, bestaande uit 5 appartementsrechten.  Er is geen professionele beheerder, het beheer wordt intern gedaan. Er is een collectieve opstalverzekering aanwezig. Er is geen MJOP.

EIGEN GROND
De woning is gelegen op EIGEN GROND. Er is dus geen erfpachtsituatie van toepassing.

BIJZONDERHEDEN
- Bouwjaar: 1908
- Eigen grond
- Met een eenvoudige tussenwand aan de voorzijde creëer je een tweede slaapkamer.
- VVE bestaande uit 5 appartementsrechten, gesplitst in 2006
- Woonoppervlakte: ca. 47 m²
- Ruim balkon van ca. 5 m² op het zuiden
- Gelegen in een gewilde en centrale buurt
- Geschikt voor starters, stellen of als pied-à-terre

DISCLAIMER Visch & Van Zeggelaar
Deze informatie is door Visch & Van Zeggelaar met zorg samengesteld. Desondanks aanvaarden wij geen aansprakelijkheid voor eventuele onjuistheden, onvolledigheden of gevolgen daarvan. Alle opgegeven maten en oppervlakten zijn indicatief; koper wordt uitdrukkelijk in de gelegenheid gesteld zelf (of via een deskundige) onderzoek te doen naar alle zaken die voor hem/haar van belang zijn. Aan deze presentatie kunnen geen rechten worden ontleend.

_________________


NEW TO THE MARKET – Rustenburgerstraat 125-3: Charming Apartment in the Heart of De Pijp

LAYOUT
On the much-loved Rustenburgerstraat, right in the centre of De Pijp, this charming and atmospheric apartment is located on the third floor of a characteristic building, offering approximately 47 m² of living space. The well-laid-out apartment features a spacious living room with large windows at the front, a separate bedroom, and a neat kitchen with access to the balcony at the rear.
A nice detail: the current layout makes it very easy to create an additional bedroom at the front (for example by separating part of the living room), without losing the sense of space.

FINISHING
The apartment is move-in ready and exudes calm: light walls and ceilings, a warm wooden floor, and plenty of natural daylight thanks to the high, wide windows. The living room offers ample space for a comfortable seating area as well as a work/dining area. This flexibility is exactly what makes it so attractive to create a second bedroom here.

The kitchen is laid out efficiently, with the door to the balcony directly next to it—ideal for a coffee in the morning sun or drinks at the end of the day. The bathroom is compact but neatly finished and includes a shower, washbasin, and toilet.

AREA
Living on Rustenburgerstraat means living in one of De Pijp’s most popular parts: lively, urban, yet surprisingly comfortable. Within walking distance you’ll find, among other things, the Albert Cuyp Market, Sarphatipark, and a huge selection of great coffee spots and restaurants. Think local favourites such as Coffee & Coconuts, Bakers & Roasters, De Wasserette, and the many cosy cafés and eateries around Ferdinand Bolstraat and Ceintuurbaan.

Accessibility is excellent: with De Pijp metro station (North/South line) nearby, you can reach the city centre and Station Zuid quickly. There are also various tram and bus connections towards, among others, the Museum Quarter, Amstel and the A10 ring road.

HOMEOWNERS’ ASSOCIATION (VvE)
The apartment is part of a small-scale owners’ association (VvE), consisting of 5 apartment rights. There is no professional manager; the association is managed internally. A collective building insurance policy is in place. There is no long-term maintenance plan (MJOP).

FREEHOLD
The apartment is situated on freehold land. Therefore, no leasehold (erfpacht) applies.

FEATURES
* Year of construction: 1908
* Freehold
* With a simple partition wall at the front, you can create a second bedroom
* VvE consists of 5 apartment rights, divided in 2006
* Living area: approx. 47 m²
* Spacious south-facing balcony of approx. 5 m²
* Located in a sought-after, central neighbourhood
* Suitable for first-time buyers, couples, or as a pied-à-terre

DISCLAIMER – Visch & Van Zeggelaar
This information has been compiled with due care by Visch & Van Zeggelaar. Nevertheless, we accept no liability for any inaccuracies, incompleteness, or consequences thereof. All stated measurements and surface areas are indicative; the buyer is expressly given the opportunity to investigate, personally (or through an expert), all matters of importance to them. No rights may be derived from this presentation.

Kenmerken