Beschrijving

Wil je deze woning bezichtigen? Klik op de knop ‘Neem contact op’ of ‘Vraag bezichtiging aan’. Na je aanvraag ontvang je direct een bericht en kies je zelf het tijdstip dat jou past.

Sfeervolle dubbele bovenwoning met drie slaapkamers en zonnig balkon in De Baarsjes

Ben je op zoek naar een goed ingedeelde en lichte bovenwoning in een van de leukste buurten van Amsterdam? Dan is deze charmante dubbele bovenwoning aan de Reinier Claeszenstraat 45-3 absoluut een bezichtiging waard! Gelegen in een karakteristiek pand uit de jaren ’20, biedt dit appartement op de derde en deels vierde verdieping maar liefst drie volwaardige slaapkamers, een ruime woonkamer met erker, een zonnig balkon op het westen en een nette afwerking met behoud van originele details.

Indeling – licht, ruimte en praktische luxe
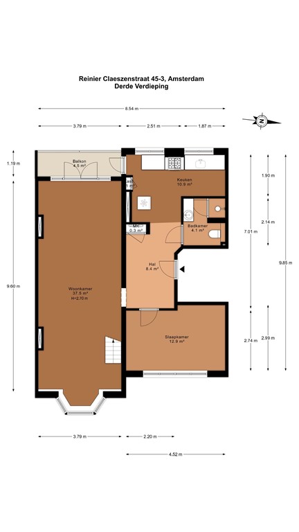
Via het gemeenschappelijke trappenhuis bereik je de eigen entree op de derde verdieping. De ruime hal geeft toegang tot alle vertrekken en beschikt over een handige bergkast. De badkamer is netjes betegeld en voorzien van douche, toilet en wastafel.
Aan de achterzijde ligt de keuken met een strak werkblad van Belgisch hardsteen, een 4-pits gasfornuis met heteluchtoven, een vaatwasser en aansluiting voor de wasmachine. Vanuit hier stap je zo het zonnige balkon op het westen op – perfect voor lange zomeravonden in de zon.
Aan de voorzijde bevindt zich een ruime slaapkamer, terwijl de royale woonkamer dankzij de charmante erker veel lichtinval en uitzicht over de straat biedt. Via openslaande deuren aan de achterzijde kom je ook vanuit de woonkamer op het balkon.
Een interne trap leidt naar de bovenverdieping, waar zich nog twee ruime slaapkamers bevinden. Deze zijn nu ingericht als kinderkamer en kantoor/logeerkamer. Maar kunnen natuurlijk ook dienstdoen als logeerkamer of walk-in closet. Op de overloop is bovendien een vaste kast aanwezig.

Afwerking & kenmerken
* Originele paneeldeuren
* Mooie houten vloer over de gehele woonverdieping
* Deels kunststof, deels hardhouten kozijnen, grotendeels voorzien van dubbel glas
* Goed onderhouden appartement
* Gelegen op eigen grond – géén erfpacht

VvE – kleinschalig en goed georganiseerd
De woning maakt deel uit van een kleine en actieve VvE, bestaande uit slechts vier leden. Het onderhoud wordt in gezamenlijk overleg uitgevoerd, wat zorgt voor korte lijnen en betrokken medebewoners.

De woning ligt in stadsdeel De Baarsjes, bekend van de Ten Katemarkt en De Hallen, in de buurt van diverse winkels
aan de Jan van Galenstraat, De Clercqstraat en Jan Evertsenstraat en een ruim aanbod aan restaurants, bars en
terrassen waaronder Le French, Volare, Faam, Kaufmann, Café Thuys en Hendrix. Er zijn voldoende scholen en kinderopvang in
de buurt, daarnaast zijn ook het Erasmuspark en Natuurspeeltuin Plan West niet ver. De Jordaan ligt op fietsafstand en met de auto zit je zo op de Ring-West. Voor de deur en in de directe omgeving is voldoende parkeergelegenheid.

Qua bereikbaarheid zit je hier uitstekend:
Met tram 7 en 13 brengen je snel naar het centrum en buslijnen 15, 18 en 247 stoppen op korte afstand

Bijzonderheden
* Dubbele bovenwoning van ca. 105 m²
* Zonnig balkon op het westen
* Drie ruime slaapkamers verdeeld over twee verdiepingen
* Eigen grond – geen erfpacht
* Originele jaren ’20 details gecombineerd met modern comfort
* Goed onderhouden en instapklaar
* Gezonde en kleinschalige VvE met vier leden
* Gedeeltelijk kunststof en hardhouten kozijnen, grotendeels dubbel glas

Kenmerken