Beschrijving
NIEUW IN DE VERKOOP - Pieter Aertszstraat 110- H - Luxe en sfeervol wonen in de Pijp – volledig gerenoveerd 3-kamer appartement met een ruimte tuin en energielabel A+
In één van de mooiste en rustigere straten van De Pijp ligt dit prachtige, hoogwaardig gerenoveerde appartement aan de Pieter Aertszstraat 110-H. De woning bevindt zich op de begane grond en is instap klaar. Een doordachte indeling, luxe afwerking, moderne installaties én heerlijk veel licht. Met energielabel A+ is dit een uitzonderlijk duurzame woning in een karakteristiek stukje Amsterdam.
Indeling
Via de entree bereikt u de hal, die toegang biedt tot alle vertrekken van de woning. Aan de voorzijde bevindt zich de lichte woonkamer met een plafondhoogte van circa 3,04 meter, wat zorgt voor een ruimtelijk en aangenaam gevoel. Aangrenzend ligt de keuken, praktisch ingedeeld en voorzien van moderne inbouwapparatuur.
De woning beschikt over twee comfortabele slaapkamers, beide gelegen aan de rustige achterzijde. Vanuit de slaapkamers is er direct toegang tot de royale achtertuin. Deze fraai gevormde tuin biedt volop privacy en ruimte om meerdere zitplekken te creëren, ideaal om te ontspannen.
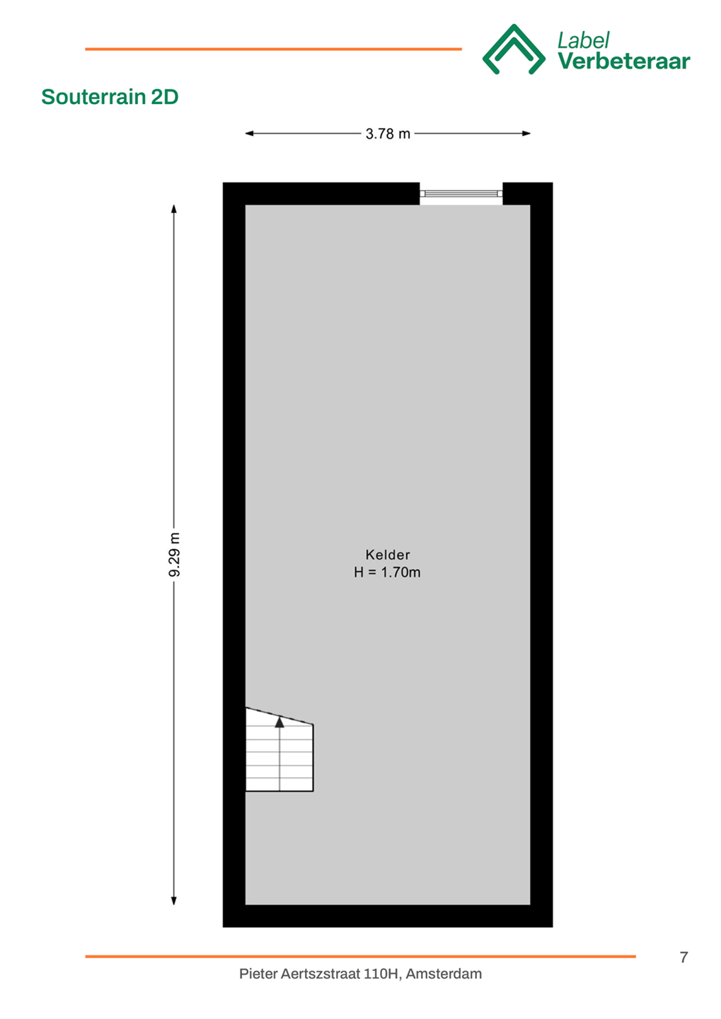
Centraal in de woning bevindt zich de badkamer, uitgerust met een inloopdouche en wastafel met meubel. Daarnaast is er een separaat toilet en een handige kast voor extra bergruimte. Via een interne trap is het souterrain bereikbaar. Hier bevindt zich een ruime kelder. Deze ruimte is uitermate geschikt als berging, wasruimte of hobbyruimte en biedt veel praktische opslagmogelijkheden.
Dankzij de efficiënte indeling, de hoge plafonds op de woonverdieping en de combinatie met zowel een tuin als extra bergruimte in het souterrain, is dit een bijzonder prettige woning met veel mogelijkheden.
Locatie
Dit is wonen in De Pijp op z’n best: een rustige straat met het bruisende stadsleven om de hoek. De Van Woustraat, Ceintuurbaan en de gezellige Ferdinand Bolstraat liggen op loopafstand. Hier vindt u een groot aanbod aan cafés, restaurants en boetieks, zoals Café Caron, Brasserie Lolita, Pekelhaaring, Wijnbar Paskamer, Rayleigh & Ramsay, Brouwerij Troost, en nog veel meer. De Albert Cuypmarkt ligt om de hoek voor uw dagelijkse boodschappen en verse producten.
Voor ontspanning en groen wandelt u zo naar het Sarphatipark. Openbaar vervoer is uitstekend met de Noord/Zuidlijn op enkele minuten afstand, en met de fiets bent u in no time in het centrum, het Museumplein of het Amstelstation.
VvE
Het appartementsrecht maakt onderdeel uit van een kleinschalige vereniging van eigenaars bestaande uit 5 leden. De VvE is recentelijk opgestart en wordt professioneel beheerd door DK VvE beheer. De maandelijkse bijdrage bedraagt momenteel € 109,82 per maand.
Erfpacht
De woning is gelegen op gemeentelijk erfpachtgrond, de huidige canon bedraagt momenteel € 75,02 huidige tijdvak loopt tot en met 31-10-2029. Verkoper heeft reeds gebruikt gemaakt van de overstap naar eeuwigdurend erfpacht AB2016, waarbij het jaarlijkse canon is vastgeklikt op € 1.653,48 op basis van jaarlijkse indexatie.
Uitgangspunten:
- Vraagprijs: € 660.000,- kosten koper;
- Appartementsrecht, gelegen op erfpachtgrond;
- VVE bijdrage € 109,82,- per maand;
- Woonoppervlakte 63 m² conform NEN 2580 meetrapport;
- Volledig gerenoveerd;
- Ruime kelder van 35 m²;
- Levering onder voorbehoud passeren splitsingsakte;
- Energielabel A+;
- Oplevering: in overleg;
- Project notaris: Buma Algera notariaat.
Voor inlichtingen of het maken van een afspraak voor een bezichtiging:
Visch & van Zeggelaar Amsterdam 020 - 20 91 911
Deze informatie is door ons met de nodige zorgvuldigheid samengesteld. Onzerzijds wordt echter geen enkele aansprakelijkheid aanvaard voor enige onvolledigheid, onjuistheid of anderszins, dan wel de gevolgen daarvan. Alle opgegeven maten en oppervlakten zijn indicatief. Koper heeft zijn eigen onderzoek plicht naar alle zaken die voor hem of haar van belang zijn. Met betrekking tot deze woning is de makelaar adviseur van verkoper. Wij adviseren u een deskundige (NVM-)makelaar in te schakelen die u begeleidt bij het aankoopproces. Indien u specifieke wensen heeft omtrent de woning, adviseren wij u deze tijdig kenbaar te maken aan uw aankopend makelaar en hiernaar zelfstandig onderzoek te (laten) doen. Indien u geen deskundige vertegenwoordiger inschakelt, acht u zich volgens de wet deskundige genoeg om alle zaken die van belang zijn te kunnen overzien. Van toepassing zijn de NVM voorwaarden.
---------------------------------------------------------------------
NEW ON THE MARKET – Pieter Aertszstraat 110-H – Luxury and character in De Pijp – Fully renovated 3-Room apartment with a spacious garden and energy label A+
Located on one of the most charming and quiet streets of De Pijp, this beautifully renovated apartment on Pieter Aertszstraat 110-H offers a perfect blend of modern comfort and authentic Amsterdam character. Situated on the second floor, the apartment is move-in ready, featuring a smart layout, high-end finishes, modern installations, and an abundance of natural light. With energy label A+, this is an exceptionally sustainable home in one of the city’s most sought-after neighborhoods.
Layout
The entrance hall provides access to all rooms in the apartment. At the front of the property you will find the bright living room with a ceiling height of approximately 3.04 metres, creating a spacious and pleasant atmosphere. Adjacent to the living room is the kitchen, which is practically laid out and offers ample workspace and storage.
The apartment features two comfortable bedrooms, both located at the quiet rear side. From the bedrooms there is direct access to the generous private garden. This uniquely shaped garden offers plenty of privacy and space for multiple seating areas, making it an ideal place to relax, garden or enjoy long summer evenings.
Centrally located in the apartment is the bathroom, fitted with a shower and washbasin. In addition, there is a separate toilet and a convenient storage cupboard.
The basement level can be accessed via an internal staircase. Here you will find a spacious storage cellar. This area is ideal for storage, a laundry space or hobby room and provides ample practical storage options.
Thanks to the efficient layout, the high ceilings on the main living level and the combination of a private garden and additional storage space in the basement, this is a particularly comfortable home with many possibilities.
The bathroom has been stylishly renovated and includes a walk-in shower and washbasin cabinet. There is also a separate toilet and convenient storage space.
Location
This is De Pijp living at its finest: a quiet street with the vibrant city life just around the corner. The Van Woustraat, Ceintuurbaan, and the lively Ferdinand Bolstraat are all within walking distance. Here you’ll find a wide variety of cafés, restaurants, and boutique shops, such as Café Caron, Brasserie Lolita, Pekelhaaring, Wijnbar Paskamer, Rayleigh & Ramsay, Brouwerij Troost, and many more. The famous Albert Cuyp Market is just around the corner for your daily groceries and fresh produce.
For daily groceries and fresh produce, the famous Albert Cuyp Market is right around the corner. Green space and relaxation can be found at Sarphatipark, just a few minutes’ walk away. Public transport connections are excellent, with the North/South metro line close by, and you can reach the city centre, Museumplein, or Amstel Station in just minutes by bike.
Homeowners’ Association (VvE)
The apartment right is part of a small-scale homeowners’ association consisting of five members. The VvE has been recently established and is professionally managed by DK VvE Beheer. The current monthly service charge is € 109.82.
Ground Lease (Erfpacht)
The property is located on municipal leasehold land. The current annual ground rent is € 75.02, valid until 31 October 2029. The seller has already opted for the transition to perpetual leasehold (AB2016), with the annual ground rent fixed at €1,653.48, subject to yearly indexation.
Key Details:
- Asking price: €660,000, buyer’s costs;
- Apartment right, located on leasehold land;
- VvE contribution: € 109.82 per month;
- Living area: 63 m² (in accordance with NEN 2580 measurement report);
- Fully renovated;
- Royal basement of 35 m²
- Transfer subject to finalization of the subdivision deed;
- Energy label A+;
- Delivery: in consultation;
- Project notary: Buma Algera Notariaat;
For more information or to schedule a viewing, please contact:
Visch & van Zeggelaar Amsterdam 020 - 20 91 911
This information has been compiled by us with due care. However, we accept no liability whatsoever for any incompleteness, inaccuracies, or otherwise, nor for the consequences thereof. All stated measurements and surface areas are indicative. The buyer has a duty to conduct their own investigation into all matters that are of importance to him or her. With regard to this property, the real estate agent acts as advisor to the seller. We advise you to engage a qualified (NVM-)real estate agent who will guide you through the purchasing process. If you have specific requirements regarding the property, we recommend that you communicate these in a timely manner to your purchasing agent and independently conduct (or have conducted) further investigations. If you do not engage a qualified representative, you are deemed by law to be sufficiently knowledgeable to assess all matters of importance. The NVM terms and conditions apply.