Beschrijving
        
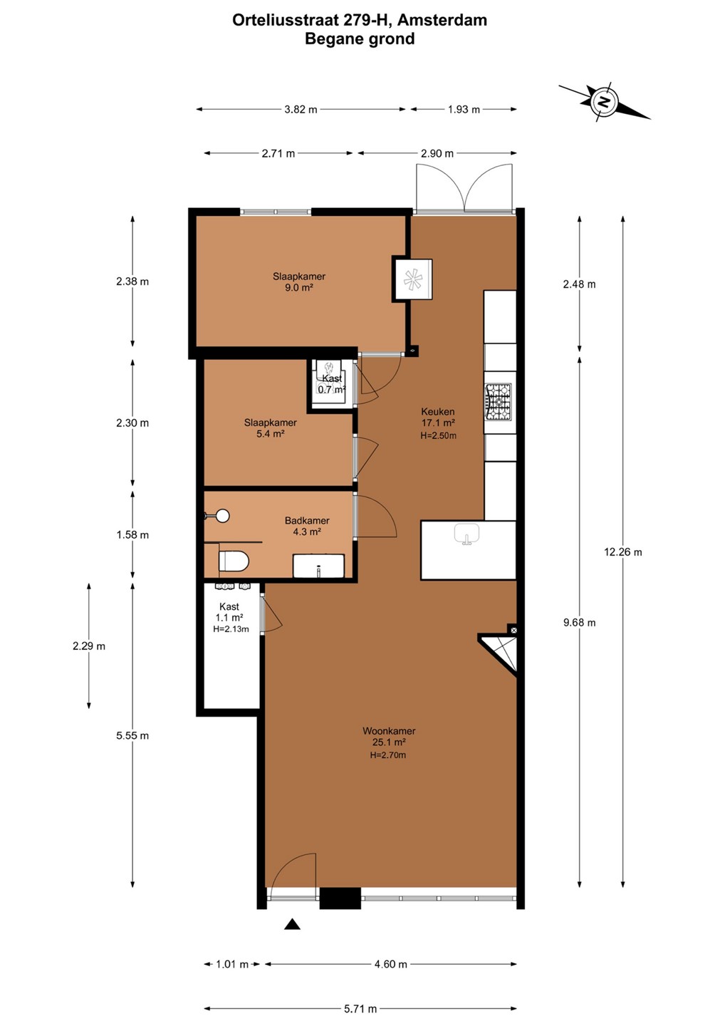
            Instapklare benedenwoning met een woonoppervlakte van circa 66 m² - royale zonnige tuin op het westen en gelegen op eigen grond. 
Wonen in alle rust, maar toch dichtbij het bruisende stadsleven? Deze smaakvolle benedenwoning van circa 66 m² in Amsterdam West biedt het beste van beide werelden. Gelegen op eigen grond (dus géén erfpacht!) en voorzien van een zonnige, ruime tuin op het westen en een royale, lichte leefruimte met luxe open keuken. Instapklaar en met veel extra’s.
In 2013 is de woning uitgebouwd, wat heeft geresulteerd in een riante leefruimte met directe verbinding naar de tuin via openslaande deuren. De tuin is een waar verlengstuk van je woonkamer – zon tot in de avond, een kleine berging én al voorbereid met water- en rioleringsaansluiting voor toekomstige plannen zoals een buitenkeuken of extra voorzieningen.
Indeling
Je komt binnen in de ruime, lichte woonkamer, afgewerkt met strak gestucte wanden en een sfeervolle houten lamelparketvloer. De royale leefruimte loopt naadloos over in de luxe open keuken met natuurstenen werkblad, 5-pits gasfornuis met wasemkap, twee combi-ovens, vaatwasser, vrijstaande koel-vriescombinatie én een gezellige bar – ideaal voor borrels of ontbijt.
Er zijn twee slaapkamers: één royale kamer aan de achterzijde en een tweede, momenteel in gebruik als kastenkamer, maar ook perfect als werkkamer. De badkamer is modern en voorzien van een ruime inloopdouche, wastafelmeubel met opberglades, hangend toilet, vloerverwarming en mechanische ventilatie. Daarnaast beschikt de woning over een handige bergkast met witgoedaansluiting.
Buitenleven
De tuin (circa 40 m2) is een absolute eyecatcher: zeer ruim, zonnig en gelegen op het zuid-westen – hier geniet je van de middag- en avondzon. Met water- en afvoeraansluitingen, riolering en een berging, zijn de mogelijkheden eindeloos.
Locatie
Gelegen in het populaire Amsterdam West, om de hoek van het Rembrandtpark en het Erasmuspark – ideaal voor een wandeling, een picknick of een rondje hardlopen. In de buurt zijn gezellige horecazaken zoals Fort Negen, Neef van Fred, De Biertuin en Terrasmus. Voor boodschappen ben je zo op het Mercatorplein, met een breed aanbod aan supermarkten en winkels.
Bereikbaarheid is uitstekend: binnen 2 minuten zit je op de ring A10. OV-opties zoals tram, metro en trein (Station Lelylaan en Sloterdijk) zijn dichtbij. Fiets je liever? In 15 minuten ben je in het centrum, Oud-West, de Jordaan of Zuid.
En voor de sportievelingen: het Mercatorbad, Het Gymlokaal en diverse sportclubs zijn allemaal op loopafstand.
Algemene informatie:
- Woonoppervlakte circa 66 m2 meetrapport aanwezig;
- Gelegen op eigen grond';
- Actieve en kleinschalige VVE in eigen beheer met een maandelijkse bijdrage van € 100,-;
- Energielabel C;
- In 2021 zijn de vloerbalken vervangen en is er vloerisolatie aangebracht;
- Voorzien van HR+ en HR++ beglazing;
- Woning is gerenoveerd en uitgebouwd in 2013, ook de uitbouw is gefundeerd;
- Zeer aangename tuin van circa 40 m2 gelegen op het zuid-westen;
- Centrale ligging in het populaire Amsterdam West nabij diverse stadsparken;
- Aanvaarding in overleg
Voor inlichtingen of het maken van een afspraak voor een bezichtiging:
Visch & van Zeggelaar Amsterdam 020 - 20 91 911
Deze informatie is door ons met de nodige zorgvuldigheid samengesteld. Onzerzijds wordt echter geen enkele aansprakelijkheid aanvaard voor enige onvolledigheid, onjuistheid of anderszins, dan wel de gevolgen daarvan. Alle opgegeven maten en oppervlakten zijn indicatief. Koper heeft zijn eigen onderzoek plicht naar alle zaken die voor hem of haar van belang zijn. Met betrekking tot deze woning is de makelaar adviseur van verkoper. Wij adviseren u een deskundige (NVM-)makelaar in te schakelen die u begeleidt bij het aankoopproces. Indien u specifieke wensen heeft omtrent de woning, adviseren wij u deze tijdig kenbaar te maken aan uw aankopend makelaar en hiernaar zelfstandig onderzoek te (laten) doen. Indien u geen deskundige vertegenwoordiger inschakelt, acht u zich volgens de wet deskundige genoeg om alle zaken die van belang zijn te kunnen overzien. Van toepassing zijn de NVM voorwaarden.
-------------------------------------------------------------------------------------------------------------------------------------------------------------------
Move-in ready ground floor apartment with a living area of approximately 66 m² – spacious, sunny west-facing garden and located on freehold land.
Looking for a peaceful home close to the vibrant city life? This stylish ground floor apartment of approximately 66 m² in Amsterdam West offers the best of both worlds. Situated on freehold land (so no leasehold!) and featuring a sunny, spacious west-facing garden,  and a generous, bright living area with a luxurious open kitchen. Move-in ready and packed with extras.
The property was extended in 2013, resulting in a spacious living area with direct access to the garden through French doors. The garden is truly an extension of your living room – with sun well into the evening, a small storage unit, and pre-installed water and drainage connections for future additions like an outdoor kitchen or other amenities.
Layout
You enter into the spacious, bright living room, finished with sleek plastered walls and an attractive wooden parquet floor. The generous living area flows seamlessly into the luxurious open kitchen, which features a natural stone countertop, a 5-burner gas stove with extractor hood, two combination ovens, a dishwasher, a freestanding fridge-freezer, and a cozy bar – perfect for drinks or breakfast.
There are two bedrooms: one spacious room at the rear and a second currently used as a walk-in closet, but also ideal as a home office. The modern bathroom is equipped with a large walk-in shower, a vanity unit with storage drawers, wall-mounted toilet, underfloor heating, and mechanical ventilation. Additionally, the apartment has a convenient storage closet with washing machine connection.
Outdoor living
The garden (approximately 40 m²) is a true highlight: very spacious, sunny, and facing southwest – enjoy the afternoon and evening sun. With water and drainage connections, sewage system, and a storage unit, the possibilities are endless.
Location
Situated in the popular Amsterdam West, just around the corner from Rembrandtpark and Erasmuspark – perfect for a walk, a picnic, or a jog. Nearby you'll find trendy spots like Fort Negen, Neef van Fred, De Biertuin, and Terrasmus. For daily shopping, the Mercatorplein offers a wide range of supermarkets and stores.
Accessibility is excellent: you're on the A10 ring road within 2 minutes. Public transport options such as tram, metro, and train (Lelylaan and Sloterdijk stations) are close by. Prefer cycling? You’re only 15 minutes from the city center, Oud-West, the Jordaan, or Zuid.
And for the fitness enthusiasts: Mercatorbad, Het Gymlokaal, and various sports clubs are all within walking distance.
Key features:
- Living area of approximately 66 m² (measurement report available);
- Located on freehold land;
- Active and small-scale HOA (self-managed) with a monthly contribution of €100;
- Energy label C;
- Floor beams replaced and insulation installed in 2021;
- Equipped with HR+ and HR++ glazing;
- Renovated and extended in 2013, including a properly founded extension;
- Very pleasant garden of approximately 40 m², facing southwest;
- Centrally located in popular Amsterdam West near various city parks;
- Handover in consultation.
Visch & van Zeggelaar Amsterdam
020 - 20 91 911
This information has been compiled by us with due care. However, we do not accept any liability for any incompleteness, inaccuracies, or otherwise, nor for the consequences thereof. All stated measurements and surface areas are indicative. The buyer is responsible for conducting their own investigation into all matters that are important to them. With regard to this property, the real estate agent acts as an advisor to the seller. We recommend that you engage a qualified (NVM) real estate agent to guide you through the purchasing process. If you have specific wishes regarding the property, we advise you to communicate these in a timely manner to your purchasing agent and to conduct (or have conducted) independent research. If you choose not to engage a professional representative, you are, according to the law, deemed sufficiently knowledgeable to oversee all relevant matters. The NVM terms and conditions apply.