Beschrijving
Licht, luxe en duurzaam wonen aan het water – met uitzicht op de iconische Pontsteiger
In het geliefde en moderne Houthavens komt dit prachtige appartement beschikbaar op het Narva-eiland. Het betreft een nieuwbouwappartement uit 2021, verdeeld over drie woonlagen, uitstekend geïsoleerd (energielabel A++), voorzien van vier eigen zonnepanelen en stadsverwarming. De woning biedt ultiem wooncomfort met vloerverwarming, luxe afwerking en een zonnig terras met uitzicht op het IJ en de Pontsteiger.
Indeling
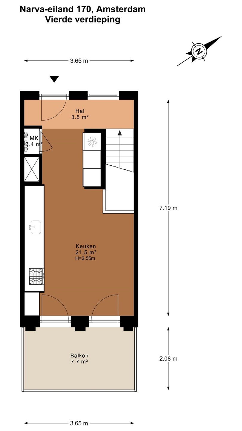
Vierde verdieping – de entree en woonkeuken
Met de lift bereik je de galerij op de vierde verdieping, waar je de woning binnenstapt in de ruime, lichte woonkeuken. De hoogwaardige keuken van Zampieri is voorzien van topklasse inbouwapparatuur: een Bora inductiekookplaat met geïntegreerde afzuiging, Quooker-kraan, vaatwasser, Bosch stoom-combi oven, koelkast en vriezer. Dankzij de grote raampartijen is deze etage heerlijk licht en biedt ruimte aan een royale eettafel. Via de keuken is het zonnige terras aan de achterzijde bereikbaar. Hier geniet je van een fraai uitzicht over het water richting het IJ en de iconische Pontsteiger. De gehele woning is afgewerkt met een eikenlook PVC visgraatvloer met vloerverwarming.
Derde verdieping – woonkamer en werkkamer
Via de interne trap bereik je de sfeervolle woonkamer – een ideale plek om te ontspannen. Er is ruimte voor een royale zithoek en een stijlvolle (elektrische of bio-ethanol) haard zorgt voor extra sfeer. Open de deuren en geniet van de omgeving! Aan de overloop grenzen een separaat toilet met fontein, een ruime bergkast en een van de drie slaapkamers, momenteel ingericht als werkkamer.
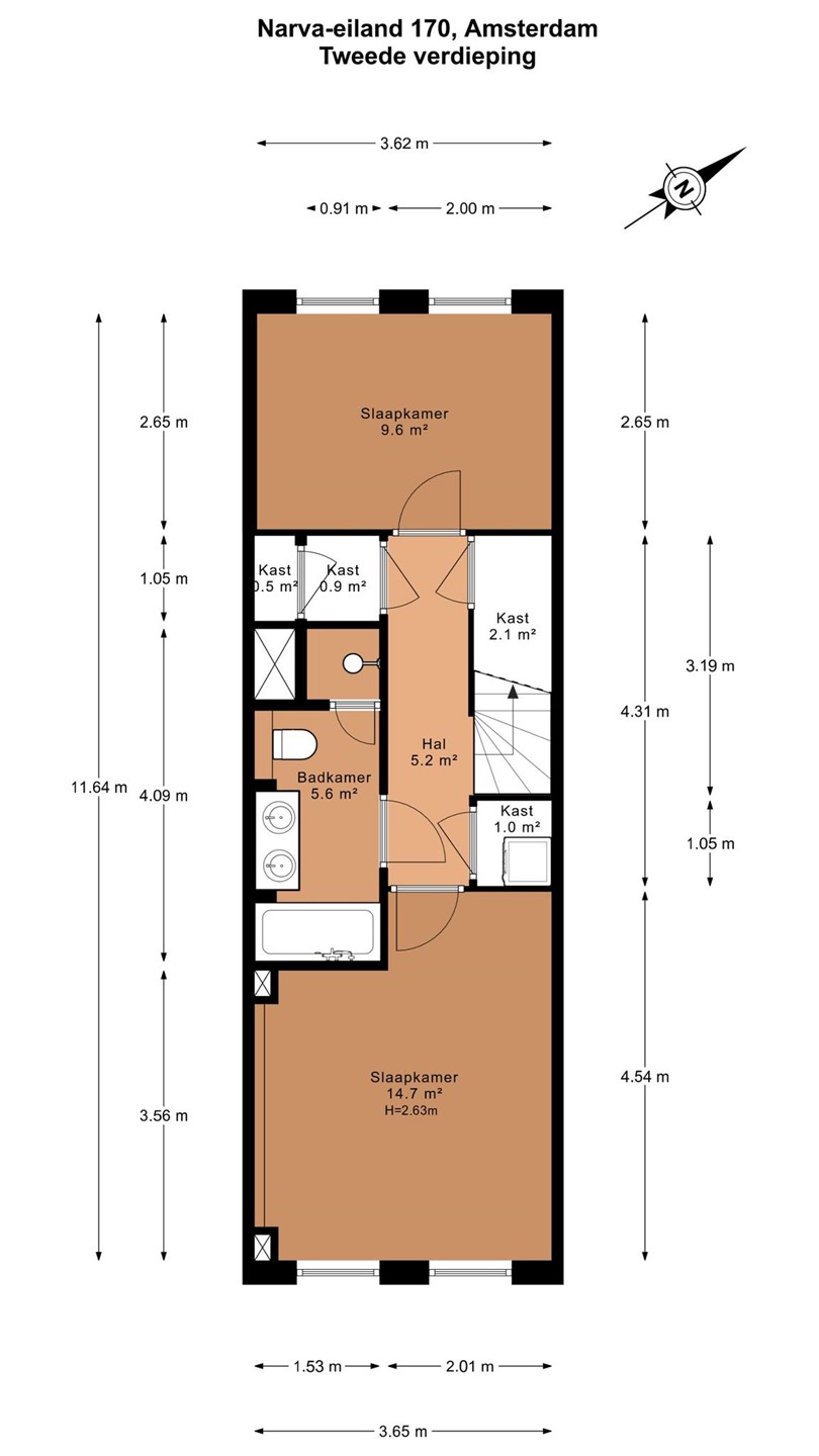
Tweede verdieping – de slaapverdieping
Op deze verdieping bevinden zich twee comfortabele slaapkamers en meerdere praktische bergingen, waaronder een kast met aansluitingen voor wasmachine en droger. De luxe badkamer is compleet uitgerust met een ligbad, dubbele wastafel met geïntegreerde kranen, een zwevend toilet en een royale inloopdouche met stortdouche.
Duurzaamheid en comfort
De woning is optimaal geïsoleerd en voorzien van een WTW-ventilatiesysteem, stadsverwarming en vier zonnepanelen op het platte dak. Met energielabel A++ woon je hier niet alleen comfortabel, maar ook energiezuinig. Laat je hypotheekadviseur de voordelen van dit label uitleggen!
Extra’s
In het souterrain beschik je over een eigen berging met elektra. Daarnaast bieden wij optioneel een parkeerplaats aan in de ondergelegen parkeergarage.
Omgeving
Dit appartement is gelegen in de Houthavens, een van de nieuwste en meest gewilde woongebieden in de Amsterdamse. Deze wijk combineert een moderne stedelijke sfeer met rust en water, wat zorgt voor een unieke woonbeleving. Op loopafstand vindt u diverse horecagelegenheden, supermarkten, sportscholen en winkels. De Spaarndammerbuurt en de bruisende Jordaan liggen op korte fietsafstand, waar u kunt genieten van gezellige cafés, restaurants en cultuur.
De bereikbaarheid is uitstekend, met goede openbaarvervoersverbindingen en snelle toegang tot de ring A10. Ook met de fiets bent u binnen enkele minuten in het centrum van Amsterdam.
Eigendomssituatie
De woning is gelegen op gemeentelijke erfpacht. Algemene bepalingen 2016 zijn van toepassing. Het tijdvak loopt tot 31-08-2068. De jaarlijkse canon bedraagt € 7.428,67 en wordt jaarlijks geïndexeerd. Verkopers zijn reeds overgestapt naar eeuwigdurende erfpacht onder de gunstige voorwaarden.
Uitgangspunten
- Energielabel A++, daardoor heb je de mogelijkheid om een hogere hypotheek te krijgen;
- Gelegen op gemeentelijke erfpacht;
- Ruim en licht appartement met prachtig uitzicht over het water en verdeeld over 3 verdiepingen;
- Optioneel een parkeerplaats te koop in de ondergelegen parkeergarage (eventueel met laadpaal, vraagprijs € 70.000,-);
- Moderne Zampieri woonkeuken met hoogwaardige inbouwapparatuur;
- 3 slaapkamer;
- Zonnig terras gelegen op het zuid-oosten;
- Professioneel beheerde Vereniging van Eigenaren met een maandelijkse bijdrage van € 219,76,-
- Externe berging in de kelder;
- Duurzaam en energiezuinig wonen;
Voor inlichtingen of het maken van een afspraak voor een bezichtiging:
Visch & van Zeggelaar Amsterdam 020 - 20 91 911
Deze informatie is door ons met de nodige zorgvuldigheid samengesteld. Onzerzijds wordt echter geen enkele aansprakelijkheid aanvaard voor enige onvolledigheid, onjuistheid of anderszins, dan wel de gevolgen daarvan. Alle opgegeven maten en oppervlakten zijn indicatief. Koper heeft zijn eigen onderzoek plicht naar alle zaken die voor hem of haar van belang zijn. Met betrekking tot deze woning is de makelaar adviseur van verkoper. Wij adviseren u een deskundige (NVM-)makelaar in te schakelen die u begeleidt bij het aankoopproces. Indien u specifieke wensen heeft omtrent de woning, adviseren wij u deze tijdig kenbaar te maken aan uw aankopend makelaar en hiernaar zelfstandig onderzoek te (laten) doen. Indien u geen deskundige vertegenwoordiger inschakelt, acht u zich volgens de wet deskundige genoeg om alle zaken die van belang zijn te kunnen overzien. Van toepassing zijn de NVM voorwaarden.
--------------------------------------------
Light, luxury, and sustainable waterfront living – with a view of the iconic Pontsteiger
Located in the beloved and modern Houthavens, this stunning apartment on Narva Island is now available. Built in 2021, this newly constructed apartment spans three floors, is excellently insulated (energy label A++), and comes equipped with four private solar panels and district heating. The home offers ultimate living comfort with underfloor heating, luxurious finishes, and a sunny terrace overlooking the IJ river and the iconic Pontsteiger.
Layout
Fourth floor – Entrance and kitchen/living area
Take the elevator to the fourth-floor gallery, where you enter the spacious and bright kitchen/living area. The high-end Zampieri kitchen is fitted with top-of-the-line built-in appliances: a Bora induction cooktop with integrated extractor, Quooker tap, dishwasher, Bosch steam-combi oven, refrigerator, and freezer. Thanks to the large windows, this floor is wonderfully bright and offers space for a generous dining table. From the kitchen, you can access the sunny terrace at the rear, where you can enjoy stunning views over the water towards the IJ and Pontsteiger. The entire home features oak-look herringbone PVC flooring with underfloor heating.
Third floor – Living room and study
An internal staircase leads to the cozy living room – a perfect place to relax. There's room for a spacious seating area, and a stylish (electric or bio-ethanol) fireplace adds extra ambiance. Open the doors and enjoy the surroundings! Off the landing, you'll find a separate toilet with a small sink, a large storage closet, and one of the three bedrooms, currently set up as a home office.
Second floor – Bedroom level
This floor houses two comfortable bedrooms and several practical storage areas, including a utility closet with connections for a washing machine and dryer. The luxurious bathroom is fully equipped with a bathtub, double sink with integrated taps, a floating toilet, and a spacious walk-in rain shower.
Sustainability and Comfort
The home is optimally insulated and features a heat recovery ventilation system, district heating, and four solar panels on the flat roof. With energy label A++, you will live not only in comfort but also in an energy-efficient manner. Let your mortgage advisor explain the benefits of this label!
Extras
In the basement, you have your own storage unit with electricity. Additionally, a parking space in the underground garage is offered as an option.
Surroundings
This apartment is located in the Houthavens, one of Amsterdam’s newest and most sought-after residential areas. The neighborhood combines a modern urban feel with tranquility and water, creating a unique living experience. Within walking distance, you’ll find various restaurants, supermarkets, gyms, and shops. The nearby Spaarndammerbuurt and the lively Jordaan are just a short bike ride away, offering cozy cafés, restaurants, and cultural attractions.
The accessibility is excellent, with good public transport connections and quick access to the A10 ring road. By bike, you can reach the center of Amsterdam within minutes.
Ownership situation
The property is located on municipal leasehold land. The General Provisions of 2016 apply. The current lease term runs until August 31, 2068. The annual ground rent is €7,428.67 and is indexed annually. The sellers have already transitioned to perpetual leasehold under favorable conditions.
Key Features
- Energy label A++, allowing for a potentially higher mortgage;
- Located on municipal leasehold land;
- Spacious and bright apartment with stunning water views, spread over three floors;
- Optional parking space in the underground garage (with EV charging station possible, asking price €70,000);
- Modern Zampieri kitchen with high-quality built-in appliances;
- Three bedrooms;
- Sunny southeast-facing terrace;
- Professionally managed Homeowners’ Association with a monthly contribution of €219.76;
- External storage unit in the basement;
- Sustainable and energy-efficient living.
For more information or to schedule a viewing:
Visch & van Zeggelaar Amsterdam
020 - 20 91 911
This information has been compiled by us with due care. However, we accept no liability for any incompleteness, inaccuracy, or otherwise, nor for the consequences thereof. All stated dimensions and surfaces are indicative. The buyer is responsible for conducting their own due diligence regarding all matters of importance to them. The real estate agent represents the seller in this property transaction. We advise you to engage a professional (NVM) agent to assist you with the purchase process. If you have specific wishes regarding the property, we advise you to communicate them in a timely manner to your purchasing agent and to carry out (or have carried out) independent investigations. If you do not engage a professional representative, you are deemed by law to be sufficiently knowledgeable to oversee all relevant matters. The NVM terms and conditions apply.