Beschrijving

Licht appartement op de 15e verdieping met prachtig uitzicht, balkon, parkeerplaats en toplocatie naast het Rembrandtpark

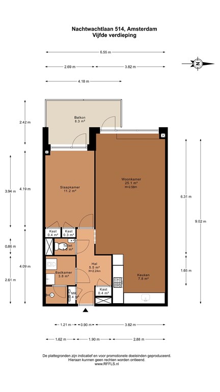
Wonen op grote hoogte met rust, licht en een panoramisch uitzicht—dit instapklare 2-kamerappartement (ca. 58 m²) op de 15e verdieping biedt de perfecte combinatie van comfort en gemak, direct naast het Rembrandtpark.

De ruime woonkamer is heerlijk licht dankzij de grote raampartijen en biedt een prachtig, vrij uitzicht over Amsterdam. Vanuit hier stap je zo het zonnige balkon op het westen op—ideaal om te genieten van de middag- en avondzon.

De moderne open keuken (vernieuwd in 2024) is voorzien van diverse inbouwapparatuur, waaronder een koel-/vriescombinatie, vaatwasser, kookplaat en oven. Dankzij de slimme indeling en strakke afwerking is de keuken zowel praktisch als stijlvol.

Het appartement is in 2024 grotendeels vernieuwd, waaronder een nieuwe laminaatvloer in de gehele woning, wat zorgt voor een frisse en instapklare uitstraling. De slaapkamer is ruim van formaat en rustig gelegen. De badkamer beschikt over een inloopdouche en wastafelmeubel, daarnaast is er een separaat toilet aanwezig.

Extra comfort: parkeren & bergruimte
Eigen parkeerplaats in een afgesloten parkeergarage
Berging op dezelfde verdieping (naast de lift)
Extra ruime berging op de eerste verdieping (ideaal voor fietsen)
Wonen in het groen, dichtbij alles

Gelegen aan de Nachtwachtlaan, direct naast het Rembrandtpark—een groene oase waar je kunt hardlopen, ontspannen of genieten van lange zomeravonden.

Tegelijkertijd ligt alles binnen handbereik:

Winkels op loopafstand
- Station Lelylaan in de buurt
- Binnen circa 10 minuten fietsen in het centrum
- Snelle aansluiting op de Ring A10
- Schiphol en de Zuidas uitstekend bereikbaar

Kenmerken
- Woonoppervlakte ca. 58 m²
- Gelegen op de 15e verdieping met vrij uitzicht
- Zonnig balkon op het westen
- Gerenoveerd in 2024 (keuken, vloer, afwerking)
- Energielabel B
- Twee bergingen
- Eigen parkeerplaats in afgesloten garage
- Erfpacht afgekocht tot en met 22 maart 2097
- Actieve VvE (€231 per maand incl. parkeerplaats)
- Verwarming via blokverwarming
- Oplevering in overleg, kan snel

Voor inlichtingen of het maken van een afspraak voor een bezichtiging:

Visch & van Zeggelaar Amsterdam 020 - 20 91 911

Deze informatie is door ons met de nodige zorgvuldigheid samengesteld. Onzerzijds wordt echter geen enkele aansprakelijkheid aanvaard voor enige onvolledigheid, onjuistheid of anderszins, dan wel de gevolgen daarvan. Alle opgegeven maten en oppervlakten zijn indicatief. Koper heeft zijn eigen onderzoek plicht naar alle zaken die voor hem of haar van belang zijn. Met betrekking tot deze woning is de makelaar adviseur van verkoper. Wij adviseren u een deskundige (NVM-)makelaar in te schakelen die u begeleidt bij het aankoopproces. Indien u specifieke wensen heeft omtrent de woning, adviseren wij u deze tijdig kenbaar te maken aan uw aankopend makelaar en hiernaar zelfstandig onderzoek te (laten) doen. Indien u geen deskundige vertegenwoordiger inschakelt, acht u zich volgens de wet deskundige genoeg om alle zaken die van belang zijn te kunnen overzien. Van toepassing zijn de NVM voorwaarden.
-------------------------------------------------------------------------------------------------------------------------------------------------------------------

Bright 15th-floor apartment with stunning views, balcony, parking & prime location next to Rembrandtpark

Living high above the city with peace, light, and panoramic views—this move-in ready 1-bedroom apartment (approx. 58 m²) on the 15th floor offers the perfect combination of comfort and convenience, right next to the Rembrandtpark.

The spacious living room is filled with natural light thanks to large windows and offers beautiful, unobstructed views over Amsterdam. From here, you step onto the sunny west-facing balcony—ideal for enjoying afternoon and evening sun.

The modern open kitchen (renovated in 2024) features built-in appliances including a fridge-freezer, dishwasher, cooktop, and oven. With smart storage and a clean design, it’s both practical and stylish.
The apartment has been extensively updated in 2024, including a new laminate floor throughout, giving it a fresh, move-in ready feel. The bedroom is generously sized and quietly positioned. The bathroom includes a walk-in shower and vanity, plus a separate toilet.

Extra comfort: parking & storage
- Private parking space in a secure underground garage
- Storage unit on the same floor (next to the elevator)
- Additional spacious storage on the first floor (ideal for bikes)

Living next to nature, close to everything
Located on Nachtwachtlaan, directly next to the Rembrandtpark—a green oasis perfect for running, relaxing, or summer evenings outdoors.
At the same time, everything is within easy reach:
- Shops within walking distance
- Station Lelylaan nearby
- City center reachable in ±10 minutes by bike
- Quick access to the A10 ring road
- Schiphol and Zuidas easily accessible

Key features
- Living area approx. 58 m²
- Located on the 15th floor with unobstructed views
- Sunny west-facing balcony
- Renovated in 2024 (kitchen, flooring, finishes)
- Energy label B
- Two storage units
- Private parking space in secure garage
- Ground lease prepaid until March 22, 2097
- Active HOA (€231/month incl. parking)
- Heating via block system
- Transfer date in consultation, could be quick!

For more information or to schedule a viewing:
Visch & van Zeggelaar Amsterdam
+31 (0)20 - 20 91 911

This information has been compiled with due care. However, no liability is accepted for any inaccuracies, omissions or consequences thereof. All stated measurements and surfaces are indicative. Buyers are responsible for conducting their own due diligence on all matters that may be of importance to them. With regard to this property, the real estate agent represents the seller. We recommend engaging a professional (NVM) real estate agent to assist you in the purchasing process. If you have specific requirements regarding the property, we advise you to communicate these in a timely manner to your purchasing agent and conduct independent investigations. If you do not engage a professional representative, you declare yourself sufficiently knowledgeable to oversee all relevant matters. The NVM conditions apply.

Kenmerken