Beschrijving

NIEUW IN DE VERKOOP-

Aan de John Franklinstraat bevindt zich deze volledig in 2023 gerenoveerde  woning op de begane grond van 68m²( NEN 2580 ingemeten), mét royale achtertuin en eigen berging. Hier combineert u het comfort van modern wonen met het gemak van gelijkvloers leven én het genot van buitenruimte in de stad. 

De woning beschikt over twee comfortabele slaapkamers, een prettige indeling en een energielabel C. Bovendien is de woning gelegen op eigen grond – dus géén erfpacht. Een instapklaar appartement op een toplocatie, ideaal voor wie comfortabel en duurzaam wil wonen met alle voorzieningen binnen handbereik. 

INDELING 
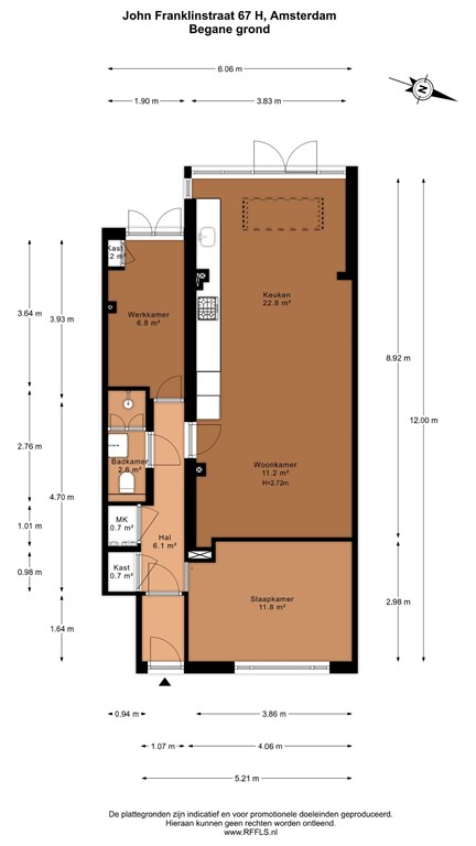
Via de eigen entree op de begane grond betreedt u de woning in de hal, die toegang geeft tot de verschillende vertrekken. Aan de voorzijde bevindt zich de ruime slaapkamer. Aan de achterzijde ligt de tweede slaapkamer, ideaal te gebruiken als kinder-, werk- of logeerkamer. 

Centraal in de woning ligt de moderne badkamer, voorzien van een douche, toilet en wastafel. Vanuit de hal zijn tevens de meterkast met ruimte voor de wasmachine en droger en praktische bergruimte bereikbaar. 

De royale leefruimte met open keuken vormt het hart van de woning. De woonkamer en keuken bieden een prettigeroyale, open indeling met veel lichtinval en directe toegang tot de achtertuin via openslaande deuren. Bovendien is in de woonkamer een lichtstraat in het plafond gerealiseerd, wat zorgt voor een prachtige extra daglichttoetreding en een ruimtelijk gevoel. 

De moderne keuken is in 2023 geplaatst en voorzien van diverse inbouwapparatuur, waaronder een vaatwasser, Bora-inductiekookplaat, Quooker, oven en koelkast. Dankzij de slimme opstelling is er volop werk- en bergruimte, ideaal voor kookliefhebbers. 

De woning is in 2023 volledig gerenoveerd en verkeert daardoor in uitstekende staat van onderhoud. De afwerking is modern en strak, waardoor u hier direct kunt intrekken. 
Aan de achterzijde bevindt zich de ruime tuin gelegen op het zuidwesten van ca. 41 m², een heerlijke plek om te ontspannen of gezellig te dineren met vrienden en familie. Achterin de tuin staat een praktische berging, ideaal voor fietsen en extra opslag. 

OMGEVING 
Gelegen aan het rustige gedeelte van de John Franklinstraat in de populaire wijk De Baarsjes (stadsdeel West), woont u hier in een levendige en dynamische omgeving wijk met alles binnen handbereik, terwijl u thuis geniet van rust, ruimte en comfort. 

De buurt staat bekend om haar gezellige sfeer en gevarieerde aanbod aan winkels, horeca en groen. Voor uw dagelijkse boodschappen kunt u terecht bij diverse supermarkten op loopafstand, evenals bij de ambachtelijke winkels aan de populaire Jan Evertsenstraat – door buurtbewoners liefkozend “Jan Eef” genoemd. Daarnaast vindt u hier een breed scala aan speciaalzaken en hippe koffiebars zoals Local Hero en White Label Coffee. 

Op culinair gebied is er volop keuze. Op loopafstand liggen geliefde horecazaken zoals De Neef van Fred, Terrasmus, Fort Negen, café Cook, café Thuys en De Biertuin West. Ook de hotspots van Oud-West, waaronder De Hallen, de Foodhallen, de Ten Katemarkt en de Jan Pieter Heijestraat, zijn snel en eenvoudig bereikbaar. Of u nu zin heeft in een ontspannen koffiemoment, een uitgebreide lunch of een avond uit – alles is dichtbij. 

Groenliefhebbers kunnen hun hart ophalen: het Erasmuspark, Rembrandtpark en Vondelpark liggen op slechts enkele minuten loop- of fietsafstand. Ideaal voor een wandeling, sportmoment of picknick in het park. Bovendien bent u binnen tien minuten fietsen in het centrum van Amsterdam of in de sfeervolle Jordaan. 

De bereikbaarheid is uitstekend. Diverse tram- en buslijnen (waaronder tram 7, 13 en 19 en bus 15) bevinden zich op loopafstand en bieden directe verbindingen naar onder andere station Lelylaan, Sloterdijk, Zuid en Amsterdam Centraal. Met de fiets staat u binnen tien minuten op de grachten of bij station Lelylaan, met een snelle treinverbinding naar Schiphol. Met de auto bereikt u binnen enkele minuten de Ring A10 via de S105. 

Kortom, een unieke kans om stijlvol te wonen op een toplocatie in Amsterdam West, in een bruisende buurt met alle comfort, voorzieningen en uitvalswegen binnen handbereik. 

ERFPACHT 
De woning is gelegen op eigen grond, er is dus geen erfpacht van toepassing! 

VERENIGING VAN EIGENAREN 
De Vereniging van Eigenaren is actief en wordt professioneel beheerd door Iris VvE beheer. Er is een reservefonds aanwezig en er wordt gewerkt met een meerjarenonderhoudsplan (MJOP), wat bijdraagt aan een goed en toekomstbestendig onderhoud van het gebouw. De servicekosten bedragen € 139,- per maand. 

UITGANGSPUNTEN 
- Vraagprijs €625.000 kosten koper; 
- Oppervlakte 68 m2 (NEN 2580 ingemeten); 
- Tuin van 41 m2; 
- Eigen grond; 
- Energielabel C; 
- Professionele vereniging van eigenaren; - Servicekosten €139,- per maand; 
- Oplevering, in overleg;
- Notaris keuze koper, graag  in Amsterdam of omstreken.

Deze informatie is door ons met de nodige zorgvuldigheid samengesteld. Onzerzijds wordt echter geen enkele aansprakelijkheid aanvaard voor enige onvolledigheid, onjuistheid of anderszins, dan wel de gevolgen daarvan. Alle opgegeven maten en oppervlakten zijn indicatief. Koper heeft zijn eigen onderzoek plicht naar alle zaken die voor hem of haar van belang zijn. Met betrekking tot deze woning is de makelaar adviseur van verkoper. Wij adviseren u een deskundige (NVM-)makelaar in te schakelen die u begeleidt bij het aankoopproces. Indien u specifieke wensen heeft omtrent de woning, adviseren wij u deze tijdig kenbaar te maken aan uw aankopend makelaar en hiernaar zelfstandig onderzoek te (laten) doen. Indien u geen deskundige vertegenwoordiger inschakelt, acht u zich volgens de wet deskundige genoeg om alle zaken die van belang zijn te kunnen overzien. Van toepassing zijn de NVM voorwaarden.

------------------------------------------------------------------------------------------------------------------------------------------


NEW FOR SALE

Located on John Franklinstraat, this fully renovated (2023) ground-floor apartment of 68 m² (measured in accordance with NEN 2580) features a spacious rear garden and a private storage unit. Here, you combine the comfort of modern living with the convenience of single-level living and the enjoyment of outdoor space in the city.

The property offers two comfortable bedrooms, a practical layout, and an energy label C. Moreover, the apartment is situated on freehold land – so no ground lease. A move-in-ready home in a prime location, ideal for those seeking comfortable and sustainable living with all amenities within easy reach.

LAYOUT

Through the private entrance on the ground floor, you enter the home into the hallway, which provides access to the various rooms. At the front of the property is the spacious primary bedroom. At the rear is the second bedroom, ideal for use as a child’s room, home office, or guest room.

The modern bathroom is centrally located and equipped with a shower, toilet, and washbasin. From the hallway, you can also access the utility cupboard with space for a washing machine and dryer, as well as practical storage space.

The generous living area with open-plan kitchen forms the heart of the home. The living room and kitchen offer a pleasant, spacious open layout with plenty of natural light and direct access to the rear garden through French doors. Additionally, a skylight has been installed in the living room ceiling, providing beautiful extra daylight and enhancing the sense of space.

The modern kitchen was installed in 2023 and is equipped with various built-in appliances, including a dishwasher, Bora induction cooktop, Quooker tap, oven, and refrigerator. Thanks to its smart layout, there is ample workspace and storage, ideal for cooking enthusiasts.

The property was fully renovated in 2023 and is therefore in excellent condition. The finish is modern and sleek, allowing you to move in immediately.

At the rear, you will find the spacious southwest-facing garden of approximately 41 m² — a wonderful place to relax or enjoy outdoor dining with friends and family. At the back of the garden, there is a practical storage shed, ideal for bicycles and additional storage.

AREA

Located on the quieter part of John Franklinstraat in the popular De Baarsjes neighborhood (Amsterdam West), you will enjoy a lively and dynamic area with everything within easy reach, while at home benefiting from peace, space, and comfort.

The neighborhood is known for its cozy atmosphere and diverse selection of shops, restaurants, and green spaces. For daily groceries, several supermarkets are within walking distance, as well as the artisanal shops along the popular Jan Evertsenstraat — affectionately called “Jan Eef” by locals. You will also find a wide range of specialty stores and trendy coffee bars such as Local Hero and White Label Coffee.

Culinary options abound. Within walking distance are popular venues such as De Neef van Fred, Terrasmus, Fort Negen, Café Cook, Café Thuys, and De Biertuin West. The hotspots of Oud-West, including De Hallen, the Foodhallen, the Ten Katemarkt, and Jan Pieter Heijestraat, are also easily accessible. Whether you’re in the mood for a relaxed coffee, an extensive lunch, or a night out — everything is nearby.

Green lovers will feel right at home: Erasmuspark, Rembrandtpark, and Vondelpark are just a few minutes away by foot or bicycle. Ideal for a walk, exercise, or a picnic. Moreover, you can reach Amsterdam’s city center or the charming Jordaan within ten minutes by bike.

Accessibility is excellent. Various tram and bus lines (including tram 7, 13, and 19 and bus 15) are within walking distance and provide direct connections to stations such as Lelylaan, Sloterdijk, Zuid, and Amsterdam Central. By bike, you can reach the canals or Lelylaan station within ten minutes, offering a fast train connection to Schiphol Airport. By car, you can access the A10 Ring Road within minutes via the S105.

In short, a unique opportunity to live stylishly in a prime location in Amsterdam West, in a vibrant neighborhood with all comfort, amenities, and transport connections within easy reach.

GROUND LEASE

The property is situated on freehold land; therefore, no ground lease applies.

HOMEOWNERS’ ASSOCIATION (VvE)

The Homeowners’ Association is active and professionally managed by Iris VvE Beheer. A reserve fund is in place, and a multi-year maintenance plan (MJOP) is available, contributing to proper and future-proof maintenance of the building. The service charges amount to €139 per month.

KEY FEATURES

- Asking price: €625,000 costs for buyer (k.k.);
- Living area: 68 m² (measured in accordance with NEN 2580);
- Garden of 41 m²;
- Freehold property (no ground lease);
- Energy label C;
- Professionally managed Homeowners’ Association;
- Service charges: €139 per month;
- Transfer date: in consultation;
- Notary: buyer’s choice, preferably in Amsterdam or surrounding area.

Deze informatie is door ons met de nodige zorgvuldigheid samengesteld. Onzerzijds wordt echter geen enkele aansprakelijkheid aanvaard voor enige onvolledigheid, onjuistheid of anderszins, dan wel de gevolgen daarvan. Alle opgegeven maten en oppervlakten zijn indicatief. Koper heeft zijn eigen onderzoek plicht naar alle zaken die voor hem of haar van belang zijn. Met betrekking tot deze woning is de makelaar adviseur van verkoper. Wij adviseren u een deskundige (NVM-)makelaar in te schakelen die u begeleidt bij het aankoopproces. Indien u specifieke wensen heeft omtrent de woning, adviseren wij u deze tijdig kenbaar te maken aan uw aankopend makelaar en hiernaar zelfstandig onderzoek te (laten) doen. Indien u geen deskundige vertegenwoordiger inschakelt, acht u zich volgens de wet deskundige genoeg om alle zaken die van belang zijn te kunnen overzien. Van toepassing zijn de NVM voorwaarden.

Kenmerken