Beschrijving
NIEUW IN DE VERKOOP – Hillegomstraat 40H – Amsterdam
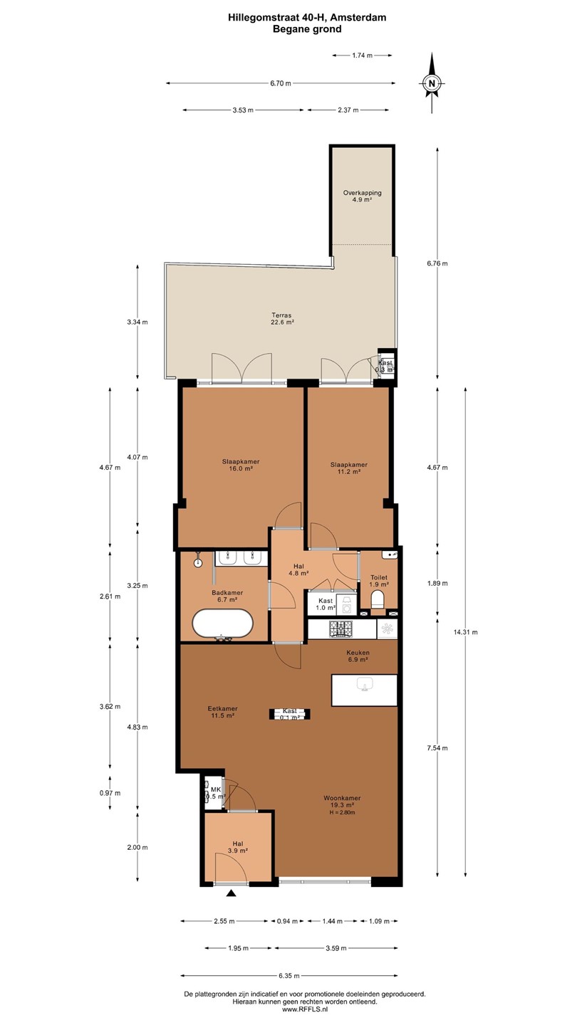
Sfeervolle benedenwoning met tuin in de geliefde Hoofddorppleinbuurt, gelegen op eigen grond
Aan de Hillegomstraat, op de rand van Oud-Zuid, ligt dit instapklare jaren ’30 appartement van circa 88 m². De woning is in 2021 compleet gerenoveerd en beschikt over twee ruime slaapkamers, een luxe keuken met kookeiland en een fraaie tuin met overkapping. Dankzij de combinatie van karakteristieke details en hedendaags wooncomfort is dit een unieke kans in een van de populairste buurten van Amsterdam.
INDELING
Via de eigen entree kom je in de hal die toegang geeft tot de lichte woonkamer aan de straatzijde. Aansluitend bevindt zich de eetkamer met open keuken. De keuken is voorzien van een kookeiland en inbouwapparatuur, waaronder een vaatwasser, combi-magnetron, oven, koelkast, vriezer, Quooker en inductiekookplaat.
Vanuit de centrale hal bereik je de slaapkamers, badkamer en het separate toilet. Beide slaapkamers zijn royaal en bieden via openslaande deuren toegang tot de tuin. De badkamer is luxe afgewerkt en beschikt over een vrijstaand ligbad, dubbele wastafel met meubel en een inloopdouche. Tevens is er een praktische bergruimte met aansluitingen voor wasmachine en droger.
De tuin is gericht op het noordoosten en beschikt over een terras en overkapping. Een beschutte plek met veel privacy, bereikbaar vanuit beide slaapkamers.
OMGEVING
De Hillegomstraat ligt midden in de levendige Hoofddorppleinbuurt. Op loopafstand bevinden zich de Zeilstraat, Amstelveenseweg en het Hoofddorpplein met een divers aanbod aan winkels, boetieks, delicatessenzaken, koffiebars en restaurants. Voor ontspanning zijn het Vondelpark en het Rembrandtpark vlakbij.
De bereikbaarheid is uitstekend: openbaar vervoer (tram en bus) ligt om de hoek en via de uitvalswegen ben je in enkele minuten op de Ring A10. Parkeren kan via het gemeentelijke vergunningsstelsel.
VVE
Het appartementsrecht maakt onderdeel uit van een professioneel beheerde vereniging van eigenaars. De VVE beschikt over een actieve boekhouding met een onderhoudsbegroting en MJOP. De VVE bijdrage bedraagt momenteel € 190,- per maand.
UITGANGSPUNTEN
- Vraagprijs: € 875.000,- kosten koper;
- Beschikbaar: per direct;
- Gelegen op eigen grond;
- Energielabel: A
- VVE bijdrag: € 190,- per maand;
- 88 m2 woonoppervlak, gemeten conform NEN 2580;
- 2 ruime slaapkamers;
- Notaris: keuze koper.
- In 2021 compleet gerenoveerd
- Schilderwerk uitgevoerd
Aanvaarding: in overleg
Voor inlichtingen of het maken van een afspraak voor een bezichtiging:
Visch & van Zeggelaar Amsterdam 020 - 20 91 911
Deze informatie is door ons met de nodige zorgvuldigheid samengesteld. Onzerzijds wordt echter geen enkele aansprakelijkheid aanvaard voor enige onvolledigheid, onjuistheid of anderszins, dan wel de gevolgen daarvan. Alle opgegeven maten en oppervlakten zijn indicatief. Koper heeft zijn eigen onderzoek plicht naar alle zaken die voor hem of haar van belang zijn. Met betrekking tot deze woning is de makelaar adviseur van verkoper. Wij adviseren u een deskundige (NVM-)makelaar in te schakelen die u begeleidt bij het aankoopproces. Indien u specifieke wensen heeft omtrent de woning, adviseren wij u deze tijdig kenbaar te maken aan uw aankopend makelaar en hiernaar zelfstandig onderzoek te (laten) doen. Indien u geen deskundige vertegenwoordiger inschakelt, acht u zich volgens de wet deskundige genoeg om alle zaken die van belang zijn te kunnen overzien. Van toepassing zijn de NVM voorwaarden.
----------------------------------------------------------------------------------------------------------------------------------------------
NEW ON THE MARKET – Hillegomstraat 40H – Amsterdam
Charming ground-floor apartment with garden in the popular Hoofddorppleinbuurt, located on freehold land
On Hillegomstraat, at the edge of Oud-Zuid, you will find this recently renovated 1930s apartment of approximately 88 m². The home offers two spacious bedrooms, a modern kitchen with cooking island, and an attractive garden with covered terrace. The combination of original details and contemporary comfort makes this a unique opportunity in one of Amsterdam’s most sought-after neighbourhoods.
LAYOUT
Through the private entrance you enter the hall, which provides access to the bright living room at the street side. Adjacent are the dining area and open kitchen. The kitchen features a cooking island and built-in appliances including a dishwasher, combination microwave/oven, oven, refrigerator, freezer, Quooker and induction hob.
From the central hall you reach the bedrooms, bathroom and separate toilet. Both bedrooms are generously sized and offer French doors to the garden. The bathroom is finished to a high standard and includes a freestanding bathtub, double washbasin with cabinet and a walk-in shower. There is also a practical storage space with connections for a washing machine and dryer.
The garden faces northeast and includes a terrace and covered section. A sheltered spot with plenty of privacy, accessible from both bedrooms.
SURROUNDINGS
Hillegomstraat is located in the lively Hoofddorppleinbuurt. Within walking distance are the Zeilstraat, Amstelveenseweg and Hoofddorpplein with a wide range of shops, boutiques, delicatessens, coffee bars and restaurants. For relaxation, the Vondelpark and Rembrandtpark are close by.
Accessibility is excellent: public transport (tram and bus) is around the corner and major roads provide quick access to the A10 ring road. Parking is available through the municipal permit system.
OWNERS’ ASSOCIATION (VVE)
The apartment right is part of a professionally managed owners’ association. The VVE maintains an active administration with a maintenance budget and long-term maintenance plan. The current monthly contribution is €190.
KEY POINTS
- Asking price: € 875,000, buyer’s costs;
- Available: immediately;
- Freehold land (no ground lease);
- Energy label: A
- VVE contribution: €190 per month;
- Living area: 88 m² (measured in accordance with NEN 2580);
- Two spacious bedrooms;
- Notary: buyer’s choice.
Acceptance: in consultation
For information or to schedule a viewing:
Visch & van Zeggelaar Amsterdam
020 – 20 91 911
This information has been compiled by us with due care. However, we do not accept any liability for any incompleteness, inaccuracies, or otherwise, or the consequences thereof. All specified sizes and surfaces are indicative. The buyer has their own duty to investigate all matters that are important to them. The broker is an advisor to the seller regarding this property. We recommend that you engage an expert (NVM) broker to assist you in the purchasing process. If you have specific wishes regarding the property, we advise you to communicate these in a timely manner to your purchasing broker and to conduct (or have conducted) independent research. If you do not engage an expert representative, you consider yourself competent enough to oversee all matters of importance. NVM conditions apply.