Beschrijving

Licht, sfeer en ruimte in een van de mooiste straten van Bos en Lommer – Griseldestraat 11, Amsterdam. Een woning die je écht zelf moet bekijken, kom snel langs en plan een bezichtiging in. 

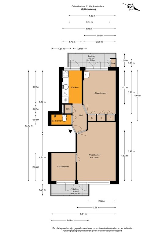
Op zoek naar een instapklaar appartement op een toplocatie in Amsterdam-West? Dit charmante en lichte 2-kamer appartement aan de geliefde Griseldestraat biedt een zeer ruime living, veel sfeer, een zonnig balkon op het westen én een royale berging van circa 12 m². Bovendien is er de mogelijkheid om eenvoudig een tweede (slaap)kamer te realiseren.

Indeling
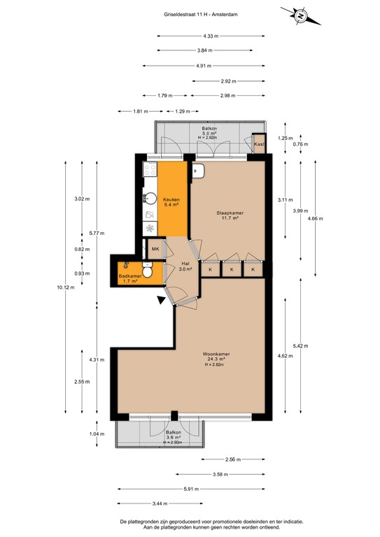
Via de gemeenschappelijke entree bereik je de woning op de eerste verdieping. De hal geeft toegang tot de lichte, royale woonkamer aan de voorzijde. Dankzij de grote raampartijen komt hier veel natuurlijk licht binnen. De houten kozijnen met glas-in-looddetails geven de ruimte een karakteristieke uitstraling. Aan de voorzijde bevindt zich een balkon op het oosten – een fijne plek voor de ochtendzon met uitzicht richting het Erasmuspark.

De woonkamer is afgewerkt met een laminaatvloer voorzien van extra geluidsisolatie. Door de prettige breedte en diepte van de ruimte is er volop plek voor zowel een comfortabele zithoek als een gezellige eethoek – ideaal voor wie houdt van stijlvol én praktisch wonen. Daarnaast is er de mogelijkheid om eenvoudig een tweede slaapkamer of werkkamer te creëren, zonder in te leveren op leefruimte.

De badkamer is compact maar functioneel, voorzien van een douche en toilet. Aan de achterzijde ligt de dichte keuken, uitgerust met een inductiekookplaat, wasemkap, vaatwasser, magnetron en een losse koel-vriescombinatie. Vanuit de keuken is er toegang tot het zonnige balkon op het westen – perfect om te ontspannen met uitzicht op de groene binnentuin.

De ruime slaapkamer van ca. 12 m² beschikt over een ingebouwde kastenwand en is extra geïsoleerd (vloer en plafond), wat zorgt voor extra comfort en rust.

Zonnig balkon en royale berging
Aan de achterzijde bevindt zich het westelijk gelegen balkon, waar je de hele middag en avond kunt genieten van de zon en het uitzicht op de rustige, groene binnentuin. Uniek is ook de ruime berging van ca. 12 m² op de begane grond, direct onder de woning. Deze is voorzien van verwarming, water en een afvoer, en biedt talloze gebruiksmogelijkheden of als een extra (werk)kamer. Het biedt meer dan voldoende ruimte voor opslag en het stallen van je fiets. 

Locatie – Groen, rustig en centraal
De Griseldestraat is zonder twijfel een van de meest geliefde straten in Bos en Lommer. De ligging aan de Erasmusgracht en op steenworp afstand van het Erasmuspark maakt dit een heerlijke plek om te wonen. In het Erasmuspark vind je volop groen om te wandelen, sporten of ontspannen, en gezellige horeca zoals Terrasmus en Podium Mozaïek zorgen voor levendigheid en sfeer.

De buurt biedt een fijne mix van rust en stadse voorzieningen. Binnen enkele minuten lopen bereik je diverse supermarkten (Albert Heijn, Lidl), speciaalzaken en buurtwinkels. Openbaar vervoer is uitstekend geregeld: bus- en tramhaltes liggen op loopafstand en station Sloterdijk is snel bereikbaar. Met de auto ben je binnen 5 minuten op de Ring A10.

Algemene informatie:
- Woonoppervlakte 50 m2;
- Mogelijkheid voor het creëren van een 2e (slaap)kamer;
- Energielabel C;
- Glas-in-lood details;
- Balkon aan voorzijde en aan de achterzijde;
- Ruime berging van circa 12 m2, direct gelegen onder de woning voorzien van water, afvoer en electra;
- Het appartement is voorzien van extra geluidsisolatie;
- Het appartement is gelegen op erfpacht en het huidige tijdvak loopt tot en met 31-07-2064 en heeft jaarlijkse canon van € 870,59 en wordt jaarlijkse geïndexeerd. Verkoopster is reeds overgestapt op eeuwigdurende erfpacht onder de gunstige voorwaarden;
- Gemeenschappelijke waterontharder aanwezig;
- Actieve VVE in eigen beheer met 4 leden. De maandelijkse bijdrage is € 100,-;
- Aanvaarding zo spoedig mogelijk

Voor inlichtingen of het maken van een afspraak voor een bezichtiging:

Visch & van Zeggelaar Amsterdam 020 - 20 91 911

Deze informatie is door ons met de nodige zorgvuldigheid samengesteld. Onzerzijds wordt echter geen enkele aansprakelijkheid aanvaard voor enige onvolledigheid, onjuistheid of anderszins, dan wel de gevolgen daarvan. Alle opgegeven maten en oppervlakten zijn indicatief. Koper heeft zijn eigen onderzoek plicht naar alle zaken die voor hem of haar van belang zijn. Met betrekking tot deze woning is de makelaar adviseur van verkoper. Wij adviseren u een deskundige (NVM-)makelaar in te schakelen die u begeleidt bij het aankoopproces. Indien u specifieke wensen heeft omtrent de woning, adviseren wij u deze tijdig kenbaar te maken aan uw aankopend makelaar en hiernaar zelfstandig onderzoek te (laten) doen. Indien u geen deskundige vertegenwoordiger inschakelt, acht u zich volgens de wet deskundige genoeg om alle zaken die van belang zijn te kunnen overzien. Van toepassing zijn de NVM voorwaarden.
--------------------------------------------

Light, ambiance, and space in one of the most beautiful streets in Bos en Lommer – Griseldestraat 11, Amsterdam. A home you really must see for yourself, so come visit soon and schedule a viewing.

Looking for a move-in-ready apartment in a prime location in Amsterdam-West? This charming and bright 1-bedroom apartment on the beloved Griseldestraat offers a very spacious living area, lots of character, a sunny west-facing balcony, and a generous storage space of approximately 12 m². Additionally, there is the option to easily create a second (bed)room.

Layout
The apartment is located on the first floor, accessible via the shared entrance. The hallway leads into the bright and spacious living room at the front. Large windows allow plenty of natural light to pour in. The wooden window frames with stained glass details add a distinctive, classic touch. At the front, there is an east-facing balcony – a lovely spot for morning sun with a view towards Erasmuspark.

The living room features a laminate floor with extra sound insulation. Thanks to the generous width and depth of the space, there's plenty of room for both a comfortable seating area and a cozy dining area – ideal for those who enjoy stylish yet practical living. There is also the possibility to easily add a second bedroom or home office without compromising on living space.

The bathroom is compact but functional, equipped with a shower and toilet. At the rear of the apartment is the closed kitchen, fitted with an induction cooktop, extractor hood, dishwasher, microwave, and a freestanding fridge-freezer. From the kitchen, you have access to the sunny west-facing balcony – perfect for relaxing with a view of the green courtyard garden.

The spacious bedroom of approx. 12 m² features a built-in wardrobe and has been additionally insulated (floor and ceiling), offering extra comfort and peace.

Sunny balcony and spacious storage room
At the rear is the west-facing balcony, where you can enjoy the sun all afternoon and evening and the view of the peaceful, green courtyard. Another unique feature is the spacious storage room of approximately 12 m² on the ground floor, directly beneath the house. Equipped with heating, water, and drainage, it offers numerous possibilities for use, including as an additional (study) room. It offers ample space for storage and bicycle parking.

Location – Green, quiet, and central
Griseldestraat is without a doubt one of the most popular streets in Bos en Lommer. Located along the Erasmusgracht and just a stone’s throw from Erasmuspark, this is a wonderful place to live. Erasmuspark offers plenty of greenery for walking, exercising, or relaxing, and vibrant cafés like Terrasmus and Podium Mozaïek add atmosphere and liveliness to the area.

The neighborhood offers a pleasant mix of tranquility and urban convenience. Within walking distance, you'll find various supermarkets (Albert Heijn, Lidl), specialty shops, and local stores. Public transport is excellent, with bus and tram stops nearby and Sloterdijk Station easily accessible. By car, you can reach the A10 Ring Road within 5 minutes.

General information:
- Living area: 50 m²;
- Option to create a second (bed)room;
- Energy label C;
- Stained glass window details;
- Balconies at both the front and rear;
- Spacious storage room of approx. 12 m² directly beneath the apartment, equipped with water, drainage, and electricity;
- Apartment has extra sound insulation;
- The property is leasehold, with the current period running until 31-07-2064. The annual ground rent is €870.59 and    is indexed yearly. The seller has already transitioned to perpetual leasehold under favorable conditions;
- Communal water softener present;
- Active, self-managed HOA with 4 members. Monthly contribution is €100;
- Transfer available as soon as possible

For more information or to schedule a viewing:
Visch & van Zeggelaar Amsterdam
020 - 20 91 911

This information has been compiled by us with due care. However, we accept no liability for any incompleteness, inaccuracy, or otherwise, nor for the consequences thereof. All stated dimensions and surfaces are indicative. The buyer is responsible for conducting their own due diligence regarding all matters of importance to them. The real estate agent represents the seller in this property transaction. We advise you to engage a professional (NVM) agent to assist you with the purchase process. If you have specific wishes regarding the property, we advise you to communicate them in a timely manner to your purchasing agent and to carry out (or have carried out) independent investigations. If you do not engage a professional representative, you are deemed by law to be sufficiently knowledgeable to oversee all relevant matters. The NVM terms and conditions apply.

Kenmerken