Beschrijving

NIEUW IN DE VERKOOP - Govert Flinckstraat 321, Amsterdam

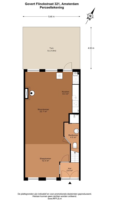
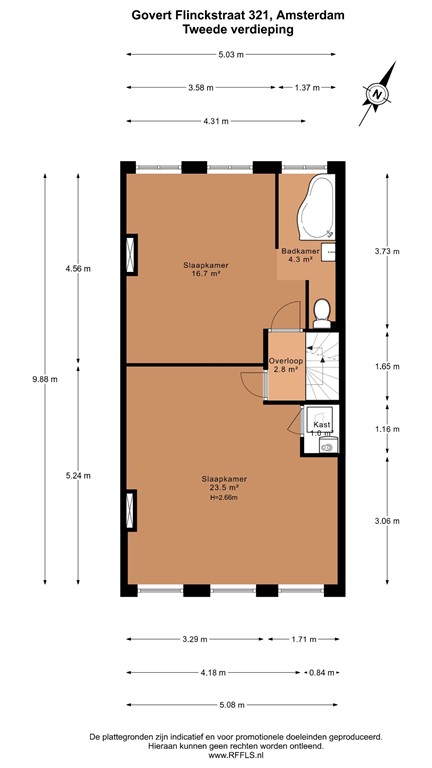
Karakteristiek en volledig pand van circa 196 m² gelegen op eigen grond in de geliefde buurt De Pijp. Het pand bestaat momenteel uit twee woningen met ieder een eigen huisnummer en biedt uitstekende mogelijkheden voor herontwikkeling en splitsing of in zijn geheel voor eigen gebruik. Een unieke kans voor beleggers, ontwikkelaars of particulieren die een pand geheel naar eigen wens willen renoveren.

Het pand is thans ingedeeld als een dubbel benedenhuis met tuin, verdeeld over de begane grond en eerste verdieping, en een ruim dubbel bovenhuis. Het geheel verkeert in een staat waarbij volledige renovatie en verduurzaming noodzakelijk is. Daarmee biedt het pand de mogelijkheid om het geheel opnieuw in te delen en af te werken naar de eisen van deze tijd.

Het gebouw is momenteel niet gesplitst en bestaat uit één eigendomsrecht. In potentie kan het pand, afhankelijk van de benodigde vergunningen, worden gesplitst in twee, drie of mogelijk vier zelfstandige woningen. Dit maakt het object bijzonder interessant voor partijen die waarde willen creëren door herontwikkeling. Het pand kan in september 2026 geheel leeg en vrij van huur worden opgeleverd.

Met een totaal gebruiksoppervlak van circa 196 m² (gemeten conform NEN2580) en een ligging op eigen grond, zonder erfpachtverplichtingen, vormt dit pand een zeldzame kans in een van de meest gewilde delen van Amsterdam.

OMGEVING
De Govert Flinckstraat ligt midden in De Pijp, een levendige en populaire buurt met een grote diversiteit aan winkels, cafés en restaurants. Op loopafstand bevinden zich onder meer de Albert Cuypmarkt, het Sarphatipark en diverse speciaalzaken en horecagelegenheden. De bereikbaarheid is uitstekend met meerdere tram- en metroverbindingen in de directe omgeving, waaronder metrostation De Pijp van de Noord/Zuidlijn. Ook met de auto is de woning goed bereikbaar via de Ring A10.

UITAGNSPUNTEN
- Vraagprijs: € 1.500.000,- kosten koper;
- Beschikbaar: per direct;
- Huursituatie: het gehele pand kan per september 2026 leeg en vrij van huur zijn;
- Totaal 196 m² conform (NEN2580);
- Gelegen op EIGEN GROND;
- Ouderdoms- en niet-zelfbewoningsclausule van toepassing;
- Notaris: keuze koper.

Voor inlichtingen of het maken van een afspraak voor een bezichtiging:

Visch & van Zeggelaar Amsterdam 020 - 20 91 911

Deze informatie is door ons met de nodige zorgvuldigheid samengesteld. Onzerzijds wordt echter geen enkele aansprakelijkheid aanvaard voor enige onvolledigheid, onjuistheid of anderszins, dan wel de gevolgen daarvan. Alle opgegeven maten en oppervlakten zijn indicatief. Koper heeft zijn eigen onderzoek plicht naar alle zaken die voor hem of haar van belang zijn. Met betrekking tot deze woning is de makelaar adviseur van verkoper. Wij adviseren u een deskundige (NVM-)makelaar in te schakelen die u begeleidt bij het aankoopproces. Indien u specifieke wensen heeft omtrent de woning, adviseren wij u deze tijdig kenbaar te maken aan uw aankopend makelaar en hiernaar zelfstandig onderzoek te (laten) doen. Indien u geen deskundige vertegenwoordiger inschakelt, acht u zich volgens de wet deskundige genoeg om alle zaken die van belang zijn te kunnen overzien. Van toepassing zijn de NVM voorwaarden.

Kenmerken