Beschrijving

NIEUW IN DE VERKOOP - Gijsbrecht van Aemstelstraat 19-3 te Amsterdam - Licht en ruim dubbel bovenhuis van ca. 105 m² met drie slaapkamers en een ruim, zonnig balkon van 13 m2. Gelegen op eigen grond in de geliefde Weesperzijdebuurt aan de Amstel.

Indeling
Via het gemeenschappelijke trappenhuis bereik je de entree op de tweede verdieping. Hier bevindt zich een eigen garderoberuimte achter de entree. Vanuit de hal heb je toegang tot de woning en via de interne trap bereik je de derde verdieping. 

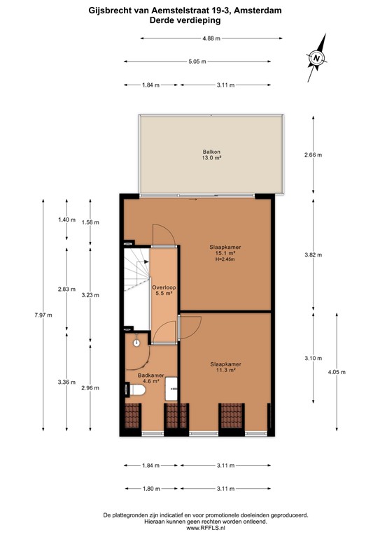
Derde verdieping
Overloop met separaat toilet en toegang tot de ruime woonkamer. De woonkamer is opvallend licht dankzij de brede raampartijen en heeft zowel aan de voor- als achterzijde vrij uitzicht wat voor een ruimtelijk en open gevoel zorgt. Er is voldoende ruimte voor een comfortabele eet- en zithoek. Aan de achterzijde bevindt zich de open keuken, voorzien van diverse inbouwapparatuur. Op deze verdieping is tevens een extra kamer aanwezig, ideaal als werk-, kinder- of logeerkamer. Daarnaast is er een aparte wasruimte met cv-ketel.

Vierde verdieping
Overloop met toegang tot twee ruime slaapkamers. De hoofdslaapkamer aan de achterzijde biedt direct toegang tot het ruime balkon van ca. 13 m², een heerlijke plek om in alle rust van de middag- en avondzon te genieten. De tweede slaapkamer bevindt zich aan de voorzijde. De badkamer is voorzien van een douche, wastafel en toilet.

Omgeving
De woning is gelegen in de Weesperzijdebuurt, op loopafstand van de Amstel. Hier woon je rustig, met water en groen om de hoek, terwijl het bruisende stadsleven altijd dichtbij is. In de directe omgeving vind je diverse supermarkten, cafés en restaurants zoals het Volkshotel, Rijsel, Hesp en De Ijsbreker. Het Oosterpark, De Pijp en het centrum liggen op een paar minuten fietsafstand. Voor sport zijn er volop mogelijkheden in de buurt zoals de VondelGym en SwimGym.

Bereikbaarheid
De woning is goed bereikbaar met zowel de auto als het openbaar vervoer. Station Amsterdam Amstel en metrohalte Wibautstraat liggen op loopafstand. Met de auto ben je snel op de A2 of A10 en binnen 15 minuten op Schiphol.

Vereniging van eigenaars
Het appartementsrecht maakt deel uit van een kleinschalige VVE, bestaande uit 3 appartementsrechten. De VVE beschikt over een MJOP alsmede een gezonde onderhoudsreserve. In 2025 is de woning aan de buitenzijde geschilderd. De maandelijkse bijdrage bedraagt momenteel € 170,-. 

Bijzonderheden
•	Vraagprijs € 970.000,- kosten koper; 
•	Woonoppervlakte ca. 105 m² (NEN2580); 
•	Gelegen op eigen grond; 
•	Beschikbaar op korte termijn;
•	Dubbel bovenhuis verdeeld over twee woonlagen; 
•	Drie slaapkamers; 
•	Ruim balkon van 13 m²; 
•	Kleine VvE bestaande uit 3 appartementsrechten; 
•	VvE beschikt over een MJOP; 
•	Maandelijkse bijdrage € 170,-; 
•	Energielabel C;
•	Notaris: keuze koper.

Voor inlichtingen of het maken van een afspraak voor een bezichtiging:

Visch & van Zeggelaar Amsterdam 020 - 20 91 911

Deze informatie is door ons met de nodige zorgvuldigheid samengesteld. Onzerzijds wordt echter geen enkele aansprakelijkheid aanvaard voor enige onvolledigheid, onjuistheid of anderszins, dan wel de gevolgen daarvan. Alle opgegeven maten en oppervlakten zijn indicatief. Koper heeft zijn eigen onderzoek plicht naar alle zaken die voor hem of haar van belang zijn. Met betrekking tot deze woning is de makelaar adviseur van verkoper. Wij adviseren u een deskundige (NVM-)makelaar in te schakelen die u begeleidt bij het aankoopproces. Indien u specifieke wensen heeft omtrent de woning, adviseren wij u deze tijdig kenbaar te maken aan uw aankopend makelaar en hiernaar zelfstandig onderzoek te (laten) doen. Indien u geen deskundige vertegenwoordiger inschakelt, acht u zich volgens de wet deskundige genoeg om alle zaken die van belang zijn te kunnen overzien. Van toepassing zijn de NVM voorwaarden.


----------------------------------------------------------------



NEW FOR SALE - Gijsbrecht van Aemstelstraat 19-3, Amsterdam - Bright and spacious double upper apartment of approx. 105 m², featuring three bedrooms and a generous sunny balcony of 13 m². Situated on freehold land in the highly desirable Weesperzijde neighbourhood, near the Amstel river.

Layout
Via the communal staircase, you reach the entrance on the second floor. Here you will find a private wardrobe/storage area behind the entrance. From the hallway, you enter the apartment and access the third floor via an internal staircase.

Third floor
Landing with separate toilet and access to the spacious living room. The living area is filled with natural light thanks to the wide windows and offers unobstructed views at both the front and rear, creating a bright and open atmosphere. There is ample space for both a comfortable seating and dining area. At the rear, you will find the open kitchen, equipped with various built-in appliances. This floor also features an additional room, ideal as a home office, nursery, or guest room. Furthermore, there is a separate laundry room with central heating system.

Fourth floor
Landing with access to two generously sized bedrooms. The master bedroom at the rear provides direct access to the spacious balcony of approx. 13 m², a wonderful spot to enjoy the afternoon and evening sun in peace. The second bedroom is located at the front. The bathroom is equipped with a shower, washbasin, and toilet.

Surroundings
The property is located in the Weesperzijde neighbourhood, within walking distance of the Amstel river. Here you enjoy a peaceful residential setting with water and greenery nearby, while the vibrant city life is always close at hand. In the immediate vicinity, you will find various supermarkets, cafés, and restaurants such as Volkshotel, Rijsel, Hesp, and De IJsbreker. Oosterpark, De Pijp, and the city centre are just a few minutes away by bike. There are also plenty of sports facilities nearby, including VondelGym and SwimGym.

Accessibility
The property is easily accessible by both car and public transport. Amsterdam Amstel Station and Wibautstraat metro station are within walking distance. By car, you can quickly reach the A2 or A10 motorways, and Schiphol Airport is within 15 minutes.

Homeowners Association (VvE)
The apartment is part of a small-scale homeowners association consisting of 3 apartment rights. The VvE has a long-term maintenance plan (MJOP) and a healthy reserve fund. The exterior of the building was painted in 2025. The current monthly contribution is €170.

Key features
•	Asking price € 970.000,- costs for buyer (k.k.)r; 
•	Living area approx. 105 m² (NEN2580); 
•	Freehold property (no ground lease); 
•	Available on short notice;
•	Double upper apartment spread over two floors; 
•	Three bedrooms; 
•	Spacious balcony of approx. 13 m²; 
•	Small-scale VvE (3 members); 
•	VvE with long-term maintenance plan (MJOP); 
•	Monthly service charges € 170,-; 
•	Energy label C;
•	Notary: buyer's choice.


For information or to schedule a viewing:

Visch & van Zeggelaar Amsterdam  020 - 20 91 911

This information has been compiled by us with due care. However, we accept no liability for any incompleteness, inaccuracies, or the consequences thereof. All stated dimensions and surfaces are indicative. The buyer has their own duty to investigate all matters that are important to him or her. With regard to this property, the estate agent acts as advisor to the seller. We advise you to engage a qualified (NVM) estate agent to guide you through the purchasing process. If you have specific wishes regarding the property, we advise you to communicate these in a timely manner to your purchasing agent and to (have them) conduct independent research. If you do not engage a qualified representative, you are considered by law to be sufficiently knowledgeable to oversee all matters of importance. The NVM conditions apply.

Kenmerken