Beschrijving
        
            NIEUW IN DE VERKOOP - DE RIJPGRACHT 12-A
Welkom bij De Rijpgracht 12 A! Dit lichte en smaakvol afgewerkte appartement van ca. 44 m² ligt op de eerste verdieping van een karakteristiek Amsterdams gebouw. Dankzij de grote ramen aan de voorzijde en de hoekligging geniet je van een prachtig vrij uitzicht over de bomen en de rustige gracht. Een ideale plek voor wie het bruisende stadsleven wil combineren met het comfort van een moderne, energiezuinige woning.
Afwerking
Het appartement is in uitstekende staat en direct te betrekken. De woonkamer met open keuken heeft een moderne uitstraling met een fraaie visgraatvloer, strak gestucte wanden en grote ramen die zorgen voor veel licht. De keuken is stijlvol uitgevoerd in een donkere, matte tint en voorzien van moderne inbouwapparatuur. De badkamer is eigentijds, met een inloopdouche met industriële zwartstalen douchewand en een strak wastafelmeubel. De woning beschikt over energielabel A (geldig tot 28-02-2029) met HR-glas en circa 12 cm gevelisolatie wat bijdraagt aan een lage energierekening.
Locatie
De woning ligt in het geliefde Stadsdeel Bos en Lommer, op een steenworp afstand van het populaire Westerpark en het gezellige Erasmuspark. Op loopafstand vind je tal van leuke horecagelegenheden, zoals Bar Baarsch, Café Thuys en Frits. Ook de hippe Jan Evertsenstraat en de Foodhallen liggen dichtbij. Voor de dagelijkse boodschappen zijn supermarkten en speciaalzaken om de hoek. Met tram- en busverbindingen richting Centraal Station, Zuid en Sloterdijk is het openbaar vervoer uitstekend geregeld, en via de S105 en A10 ben je snel de stad uit.
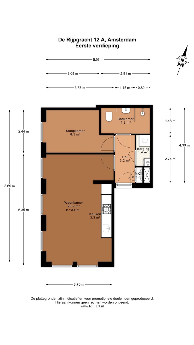
Indeling
Via het gezamenlijke trappenhuis kom je in de hal met toegang tot alle vertrekken. De ruime woonkamer met open keuken (ca. 20,9 m²) ligt aan de voorzijde en heeft een prachtig uitzicht over de gracht. Aan de achterzijde bevindt zich de slaapkamer (ca. 8,5 m²), grenzend aan de moderne badkamer met inloopdouche en wastafel. Verder is er een handige berging (ca. 1,4 m²) en een aparte wasmachine-opstelling. De indeling is efficiënt en maakt optimaal gebruik van de beschikbare 44 m².
VvE
De woning maakt deel uit van de actieve Vereniging van Eigenaars “Bloom IV” (complex Willem de Zwijgerlaan 223-261, De Rijpgracht 2-12 en Jan den Haenstraat 6-44). Het  appartementsrecht heeft een breukdeel van 53/15.123e. De VvE wordt professioneel beheerd door Minerva Vastgoedbeheer en beschikt over een gezonde financiële positie, met een ruime onderhoudsreserve en jaarlijks goedgekeurde begrotingen.
Erfpacht
Het appartement is gelegen op erfpacht van de gemeente Amsterdam. De overstap van voortdurende naar eeuwigdurende erfpacht is in juli 2023 notarieel vastgelegd. De canon is voor het huidige tijdvak vooruitbetaald tot 30 april 2067. Vanaf deze datum is er een jaarlijkse canon vastgeklikt op basis van de gunstige condities.
Bijzonderheden
- Inpandige fietsenkelder
- Woonoppervlak ca. 44 m² (NEN2580)
- Energielabel A 
- Moderne open keuken en luxe badkamer
- Fraaie visgraatvloer en veel lichtinval
- Actieve en financieel gezonde VvE “Bloom IV”
- Erfpachtcanon afgekocht tot 2067
- Centrale locatie nabij Westerpark en Erasmuspark
- Uitstekende OV-verbindingen en nabij A10
Disclaimer
Deze verkoopinformatie is met de grootste zorg samengesteld. Desondanks kunnen aan de inhoud geen rechten worden ontleend. De maatvoeringen zijn indicatief. Koper wordt geacht de opgegeven oppervlakten te (laten) controleren. De meetclausule is van toepassing zoals gebruikelijk in de makelaardij. Visch & Van Zeggelaar Makelaars aanvaardt geen aansprakelijkheid voor onvolledigheden of onjuistheden in deze presentatie.