Beschrijving
Instapklaar wonen met uitzicht
Welkom in deze woning van 43,4 m², uitgevoerd met een moderne industriële feel en hoge plafonds van circa 3 meter. Het appartement is volledig instapklaar, voorzien van energielabel A en kijkt uit over de Sloterplas en het Sloterpark. Dankzij de eeuwigdurend afgekochte erfpacht koop je hier met een gerust hart een woning die klaar is voor de toekomst. Ideaal voor starters die stijlvol en zorgeloos willen wonen.
Een rondleiding door de woning
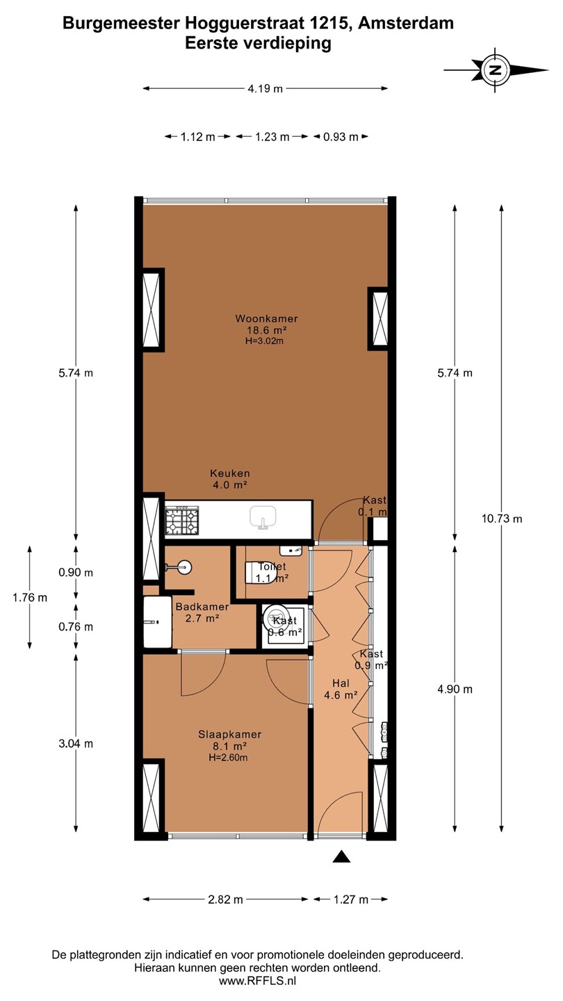
Bij binnenkomst valt direct de ruime hal op met een prachtige, lange ingebouwde kastenwand – ideaal om al je kleding en spullen netjes in op te bergen. Vanuit de hal bereik je het separate toilet en loop je door naar de woonkamer. De woonkamer is licht en ruimtelijk dankzij de grote raampartijen en door middel van een schuifdeur open je de deuren en je geniet van het uitzicht op groen en water. De gehele woning is voorzien van een strakke gietvloer, wat zorgt voor een moderne en onderhoudsvriendelijke basis. De open keuken is modern en luxe uitgevoerd met alle gemakken: een inbouwkoelkast, combi-oven, inductiekookplaat en vaatwasser. De combinatie van warme houttinten in de keuken en de kastenwand geeft het appartement een stijlvol geheel met een industriële maar warme uitstraling. Aan de achterzijde van de woning bevindt zich de ruime slaapkamer. Hier is voldoende plek voor een tweepersoonsbed en een royale kastenwand, zodat ook deze ruimte praktisch én comfortabel kan worden ingericht. Dankzij de rustige ligging is het de ideale plek om je terug te trekken na een drukke dag. De slaapkamer grenst direct aan de badkamer, die modern is afgewerkt met een inloopdouche, grote verwarmde spiegel en een strak wastafelmeubel. Dankzij de doordachte indeling en hoogwaardige afwerking is de woning direct bewoonbaar, zonder dat er nog iets hoeft te gebeuren.
Comfortabel en energiezuinig
Dit appartement is niet alleen instapklaar, maar ook zeer energiezuinig. Dankzij de warmtepomp, vloerverwarming door de gehele woning en de goede isolatie geniet je van lage energielasten.
Geen zorgen over erfpacht
Een belangrijk pluspunt: de erfpacht is eeuwigdurend afgekocht. Dit betekent dat je nooit meer te maken hebt met jaarlijkse erfpachtkosten – een zorg minder, en een waardevolle zekerheid voor de toekomst.
Ligging en omgeving
De ligging van deze woning is perfect voor wie de stadse dynamiek wil combineren met rust en natuur. Direct naast de woning liggen de Sloterplas en het Sloterpark, waar je heerlijk kunt wandelen, sporten of genieten op het strand. Voor de dagelijkse boodschappen en bereikbaarheid zit je ook goed: met de metrohaltes Postjesweg, Jan van Galenstraat en station Lelylaan op korte afstand, sta je binnen no-time in het centrum of op de Zuid As. Met de fiets ben je binnen 5 minuten op het Mercatorplein en binnen 15 minuten in de Jordaan.
Highlights:
- Instapklaar appartement (43,4 m²)
- Energielabel A, gasloos en zeer energiezuinig;
- Luxe keuken met inbouwkoelkast, combi-oven, inductiekookplaat & vaatwasser;
- Uitzicht over de Sloterplas & Sloterpark;
- Vloerverwarming door de gehele woning;
- Moderne badkamer met inloopdouche;
- Erfpacht eeuwigdurend afgekocht;
- Actieve VVE met een maandelijkse bijdrage van € 178,- per maand inclusief € 75,- voorschot stookkosten;
- Nabij metro (Postjesweg, Jan van Galenstraat en station Lelylaan), Mercatorplein (5 min) en Jordaan (15 min)
- Aanvaarding in overleg.
Waarom kiezen voor deze woning?
Een ideale starterswoning: stijlvol afgewerkt, duurzaam en zonder zorgen over erfpachtkosten. Je hoeft alleen nog maar je spullen neer te zetten en te genieten van het uitzicht en de fijne locatie.
Voor inlichtingen of het maken van een afspraak voor een bezichtiging:
Visch & van Zeggelaar Amsterdam 020 - 20 91 911
Deze informatie is door ons met de nodige zorgvuldigheid samengesteld. Onzerzijds wordt echter geen enkele aansprakelijkheid aanvaard voor enige onvolledigheid, onjuistheid of anderszins, dan wel de gevolgen daarvan. Alle opgegeven maten en oppervlakten zijn indicatief. Koper heeft zijn eigen onderzoek plicht naar alle zaken die voor hem of haar van belang zijn. Met betrekking tot deze woning is de makelaar adviseur van verkoper. Wij adviseren u een deskundige (NVM-)makelaar in te schakelen die u begeleidt bij het aankoopproces. Indien u specifieke wensen heeft omtrent de woning, adviseren wij u deze tijdig kenbaar te maken aan uw aankopend makelaar en hiernaar zelfstandig onderzoek te (laten) doen. Indien u geen deskundige vertegenwoordiger inschakelt, acht u zich volgens de wet deskundige genoeg om alle zaken die van belang zijn te kunnen overzien. Van toepassing zijn de NVM voorwaarden.
----------------------------------------------------------------------------------------------------------------------------------------------------------------------------------------------------------------------------------------------------------------------------------------------------------------------------------------------------------------------------------------------------
Move-in Ready Living with a View
Welcome to this 43.4 m² apartment, designed with a modern industrial feel and high ceilings of approximately 3 meters. The apartment is completely move-in ready, comes with an energy label A, and offers stunning views over the Sloterplas lake and Sloterpark. With the leasehold (erfpacht) perpetually bought off, you can purchase this home with peace of mind, knowing it’s ready for the future. An ideal starter home for those who want to live stylishly and carefree.
A Tour of the Apartment
Upon entering, you are welcomed by a spacious hallway featuring a beautiful, long built-in wardrobe – perfect for neatly storing all your clothes and belongings. From the hallway you access the separate toilet and continue into the living room.
The living room is bright and airy thanks to the large windows, and with sliding doors you open up to a French balcony, where you can enjoy the greenery and water views. The entire apartment is fitted with a sleek poured floor, creating a modern and low-maintenance base.
The open kitchen is modern and luxurious, equipped with all conveniences: a built-in refrigerator, combi-oven, induction cooktop, and dishwasher. The warm wood tones in both the kitchen and the wardrobe combine beautifully with the industrial design, giving the home a unique and inviting character.
At the rear of the apartment, you’ll find the spacious bedroom, large enough for a double bed and a generous wardrobe. Thanks to its quiet location, it’s the ideal space to retreat after a busy day. The bedroom has direct access to the modern bathroom, finished with a walk-in shower, a large heated mirror, and a sleek vanity. With its thoughtful layout and high-quality finishes, this apartment is ready to move into immediately, without any work required.
Comfortable and Energy Efficient
This apartment is not only move-in ready but also highly energy efficient. With a heat pump, underfloor heating throughout the home, and excellent insulation, you will enjoy low energy costs and a comfortable indoor climate year-round.
No Leasehold Concerns
Another key advantage: the leasehold (erfpacht) has been bought off in perpetuity. This means you will never face annual leasehold payments again – a valuable certainty for the future.
Location and Surroundings
The location of this apartment is perfect for those who want to combine the energy of the city with peace and nature. Right next to the property are the Sloterplas lake and Sloterpark, where you can enjoy walking, sports, or relaxing at the beach. For daily shopping and accessibility, the area is excellent: with metro stations Postjesweg, Jan van Galenstraat, and Lelylaan nearby, you can reach the city center or the Zuidas business district in no time. By bike, you can be at Mercatorplein within 5 minutes and in the Jordaan within 15 minutes.
Highlights
- Move-in ready apartment (43.4 m²)
- Energy label A, gas-free and highly energy-efficient
- Luxury kitchen with built-in refrigerator, combi-oven, induction cooktop & dishwasher
- Views over Sloterplas lake & Sloterpark
- Underfloor heating throughout the apartment
- Modern bathroom with walk-in shower
- Leasehold (erfpacht) perpetually bought off
- Active homeowners association (VvE) with a monthly fee of €178, including €75 advance heating costs
- Close to metro stations (Postjesweg, Jan van Galenstraat, and Lelylaan), Mercatorplein (5 min), and the Jordaan (15 min)
- Transfer by mutual agreement
Why Choose This Apartment?
An ideal starter home: stylishly finished, sustainable, and without the worry of leasehold costs. All you need to do is move in, unpack, and enjoy the view and the great location.
For more information or to schedule a viewing:
Visch & van Zeggelaar Amsterdam
?? 020 - 20 91 911
This information has been compiled with due care. However, no liability is accepted for any incompleteness, inaccuracies, or otherwise, nor for the consequences thereof. All stated sizes and surfaces are indicative. The buyer has their own duty to investigate all matters that are important to them. Regarding this property, the broker acts as the seller’s advisor. We recommend you engage an expert (NVM) broker to guide you through the purchase process. If you have specific wishes concerning the property, we advise you to make these known in time to your purchasing broker and to conduct (or have conducted) independent research. If you do not engage an expert representative, you are legally deemed sufficiently knowledgeable to oversee all relevant matters. NVM conditions apply.