Beschrijving

NIEUW IN DE VERKOOP – Dit betreft een ruim klus appartement in Amsterdam west met maar liefst 3 slaapkamers.
Het appartement ligt op een goede locatie, met diverse scholen, winkels, restaurants en Sloterplas en Rembrandtpark in de buurt. 

LET OP, het appartement is in sterk verouderde staat en dient VOLLEDIG gemoderniseerd te worden inclusief nieuwe badkamer en keuken.

LIGGING
De Burgemeester Cramergracht ligt praktisch naast De Sloterplas en met 5 minuten ben je in het Rembrandtpark of Erasmuspark.
Met de auto ben je binnen 2 minuten op de snelweg. Het openbaar vervoer is ook zeer goed geregeld in de omgeving. De metrohalte Jan van Galenstraat ligt op 2 minuten lopen en tram 13 rijdt om de hoek langs.

Parkeren:
Middels een bewonersvergunning is het mogelijk om voor de deur van het appartementencomplex te parkeren. Bezoekers kunnen kosteloos in de blauwe zone parkeren.

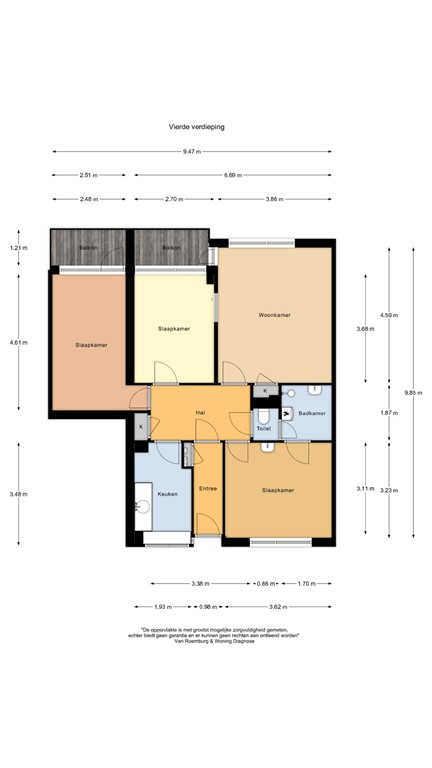
INDELING
Je komt binnen in het goed onderhouden en afgesloten appartementencomplex met afgesloten deuren, een lift en een nette trap.
Wanneer je binnen komt in het appartement stap je de ruime hal binnen welke je toegang geeft tot alle vertrekken, de twee slaapkamers, badkamer, keuken en de woonkamer. De ruimste slaapkamer is gelegen aan de achterkant van het appartementencomplex en geeft direct toegang tot het balkon. De wasmachine kan bijvoorbeeld in de badkamer worden geplaatst.
De woonkamer geeft een mooi uitzicht over de groene omgeving. Er is een mogelijkheid om de woonkamer te vergroten door een tussenmuur te verwijderen, dit is geen draagmuur. De keuken is sterk verouderd en dient gemoderniseerd te worden. Dit geldt ook voor de badkamer.

VERENIGING VAN EIGENAARS
De vereniging wordt actief beheerd door Newomij. Het betreft het gehele complex waarbij de laatste vergadering dateert van 22 mei dit jaar. Er wordt actief meerdere keren per jaar vergaderd.

UITGANGSPUNTEN
- Een 4-kamer appartement;
- Actieve VvE beheerd door NEWOMIJ;
- Dubbele beglazing;
- Blokverwarming;
- Balkon op het westen;
- Eigen box op begane grond;
- De erfpacht is voortdurend en bedraagt € 56,72 per jaar tot 31 maart 2030. Er is geen overstap aangevraagd voor eeuwigdurende erfpacht.
- Bijdrage VvE € 289,87 inclusief € 55,- voorschot stookkosten.

Voor inlichtingen of het maken van een afspraak voor een bezichtiging:

Visch & van Zeggelaar Amsterdam 020 - 20 91 911

Deze informatie is door ons met de nodige zorgvuldigheid samengesteld. Onzerzijds wordt echter geen enkele aansprakelijkheid aanvaard voor enige onvolledigheid, onjuistheid of anderszins, dan wel de gevolgen daarvan. Alle opgegeven maten en oppervlakten zijn indicatief. Koper heeft zijn eigen onderzoek plicht naar alle zaken die voor hem of haar van belang zijn. Met betrekking tot deze woning is de makelaar adviseur van verkoper. Wij adviseren u een deskundige (NVM-)makelaar in te schakelen die u begeleidt bij het aankoopproces. Indien u specifieke wensen heeft omtrent de woning, adviseren wij u deze tijdig kenbaar te maken aan uw aankopend makelaar en hiernaar zelfstandig onderzoek te (laten) doen. Indien u geen deskundige vertegenwoordiger inschakelt, acht u zich volgens de wet deskundige genoeg om alle zaken die van belang zijn te kunnen overzien. Van toepassing zijn de NVM voorwaarden.

Kenmerken