Beschrijving
NIEUW IN DE VERKOOP - Sfeervol en modern appartement met tuin in hartje Oud-Zuid - Bronckhorststraat 30-H
In één van de mooiste en rustigste straatjes van Oud-Zuid, op loopafstand van het Museumplein, de Beethovenstraat en het Vondelpark, ligt dit charmante en perfect afgewerkte benedenhuis met een heerlijke tuin. Een woning waar karakter, comfort en sfeer samenkomen. Ideaal voor wie op zoek is naar rust, stijl en de bruisende stad binnen handbereik.
Indeling
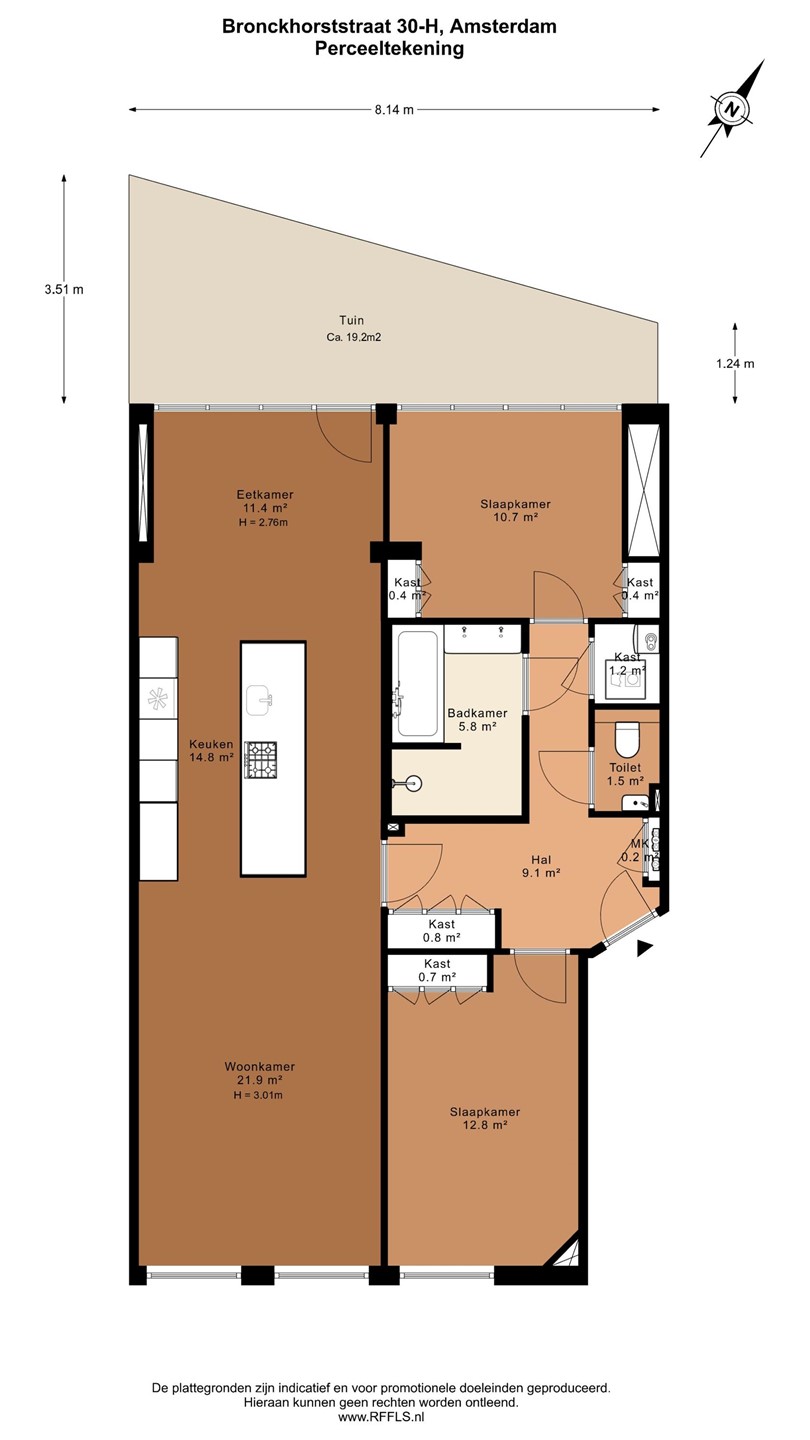
Bij binnenkomst via de eigen entree valt direct de ruime hal op, met meerdere inbouwkasten en een apart toilet met fontein. De hal biedt toegang tot alle vertrekken en vormt het hart van de woning.
Aan de voorzijde bevindt zich de lichte woonkamer met hoge plafonds en grote ramen die zorgen voor een prachtige lichtinval. De moderne open keuken is een echte eyecatcher, voorzien van een royaal kookeiland, hoogwaardige inbouwapparatuur van het merk Miele en voldoende kastruimte. De aangrenzende eetkamer biedt een sfeervolle plek voor lange diners met vrienden en familie en heeft via openslaande deuren directe toegang tot de tuin.
De woning beschikt over twee comfortabele slaapkamers. De hoofdslaapkamer grenst aan de tuin en is een rustige plek om te ontspannen, terwijl de tweede slaapkamer zich aan de voorzijde bevindt en uitstekend dienst kan doen als logeer-, werk- of kinderkamer. De luxe badkamer is voorzien van een ligbad, inloopdouche en dubbele wastafel.
De zonnige tuin aan de achterzijde biedt volop privacy en is een fijne plek om te genieten van het buitenleven. Dankzij de ligging en de directe verbinding met de eetkamer en slaapkamer vormt de tuin een natuurlijk verlengstuk van de woning.
Het appartement is volledig voorzien van vloerverwarming, wat zorgt voor optimaal comfort en een strak, modern woonklimaat.
Omgeving
De Bronckhorststraat is een charmante, rustige straat met veel karakteristieke panden, midden in het geliefde Oud-Zuid. Op loopafstand vind je gezellige cafés zoals Wildschut, restaurants zoals The Marlin Bar en L'Entrecôte et les Dames, boetieks en dagelijkse voorzieningen. Zo haal je de lekkerste broodjes bij Simon Meijssen of loop je voor een koffietje naar Cafecito. Ook het Museumplein, het Concertgebouw en het Vondelpark liggen om de hoek. Openbaar vervoer en uitvalswegen zijn uitstekend bereikbaar, waardoor je binnen korte tijd zowel het centrum als de ring A10 bereikt.
VvE
Het appartementsrecht maakt onderdeel uit van een kleinschalige vereniging van eigenaars bestaande uit 16 leden. De VvE is actief en beschikt over een MJOP. De bijdrage bedraagt momenteel € 220,- per maand.
Erfpacht
De woning is gelegen op gemeentelijk erfpachtgrond, de huidige canon bedraagt momenteel € 898,11,- huidige tijdvak loopt tot en met 31-07-2044. Verkoper heeft reeds gebruikt gemaakt van de overstap naar eeuwigdurend erfpacht AB2016, waarbij het jaarlijkse canon is vastgeklikt op € 2.704,41, op basis van jaarlijkse indexatie.
Uitgangspunten:
- Vraagprijs: € 1.075.000,- kosten koper;
- Appartementsrecht, gelegen op erfpachtgrond;
- VVE bijdrage € 220,- per maand;
- Woonoppervlakte 96 m² conform NEN 2580 meetrapport;
- Hoogwaardige afwerking;
- Ruime zonnige tuin;
- Gelegen in de populaire buurt Oud-Zuid;
- Energielabel A;
- Oplevering: in overleg;
- Notaris: keuze koper.
Voor inlichtingen of het maken van een afspraak voor een bezichtiging:
Visch & van Zeggelaar Amsterdam 020 - 20 91 911
Deze informatie is door ons met de nodige zorgvuldigheid samengesteld. Onzerzijds wordt echter geen enkele aansprakelijkheid aanvaard voor enige onvolledigheid, onjuistheid of anderszins, dan wel de gevolgen daarvan. Alle opgegeven maten en oppervlakten zijn indicatief. Koper heeft zijn eigen onderzoek plicht naar alle zaken die voor hem of haar van belang zijn. Met betrekking tot deze woning is de makelaar adviseur van verkoper. Wij adviseren u een deskundige (NVM-)makelaar in te schakelen die u begeleidt bij het aankoopproces. Indien u specifieke wensen heeft omtrent de woning, adviseren wij u deze tijdig kenbaar te maken aan uw aankopend makelaar en hiernaar zelfstandig onderzoek te (laten) doen. Indien u geen deskundige vertegenwoordiger inschakelt, acht u zich volgens de wet deskundige genoeg om alle zaken die van belang zijn te kunnen overzien. Van toepassing zijn de NVM voorwaarden.
------------------------------------------------
NEW ON THE MARKET – Stylish and modern apartment with garden in the heart of Oud-Zuid – Bronckhorststraat 30-H
In one of the most beautiful and quiet streets of Oud-Zuid, within walking distance of Museumplein, Beethovenstraat, and Vondelpark, lies this charming and perfectly finished ground-floor apartment with a lovely garden. A home where character, comfort, and atmosphere come together – ideal for those seeking tranquility and style with the vibrant city just steps away.
Layout
Upon entering through your private entrance, the spacious hallway immediately stands out, featuring multiple built-in closets and a separate toilet with wash basin. The hallway connects to all rooms and forms the heart of the home.
At the front of the apartment is the bright living room with high ceilings and large windows that allow in plenty of natural light. The modern open-plan kitchen is a real eye-catcher, equipped with a generous cooking island, high-end built-in Miele appliances, and ample storage space. The adjoining dining area offers a cozy setting for long dinners with family and friends and provides direct access to the garden through French doors.
The apartment has two comfortable bedrooms. The master bedroom faces the garden and offers a peaceful retreat, while the second bedroom at the front is ideal as a guest room, office, or children’s room. The luxurious bathroom features a bathtub, walk-in shower, and double washbasin.
The sunny rear garden offers plenty of privacy and is a delightful place to enjoy outdoor living. Thanks to its layout and direct connection to the dining area and bedroom, the garden feels like a natural extension of the home.
The apartment is fully equipped with underfloor heating, providing optimal comfort and a sleek, modern living climate.
Location
Bronckhorststraat is a charming and quiet street full of character, right in the heart of the sought-after Oud-Zuid district. Within walking distance, you’ll find cozy cafés such as Wildschut, restaurants like The Marlin Bar and L’Entrecôte et les Dames, boutique shops, and all daily amenities. Enjoy the best sandwiches from Simon Meijssen or grab a coffee at Cafecito. Museumplein, the Concertgebouw, and Vondelpark are all just around the corner. Public transport and main roads are easily accessible, ensuring quick connections to both the city center and the A10 ring road.
Homeowners’ Association (VvE)
The apartment right is part of a small-scale owners’ association consisting of 16 members. The association is active and has a long-term maintenance plan (MJOP). The current monthly contribution is €220,-
Ground Lease
The property is situated on municipal leasehold land. The current annual ground rent is €898.11, with the current period running until July 31, 2044. The seller has already opted for conversion to perpetual leasehold (AB2016), with the annual canon fixed at €2,704.41, indexed annually.
Key Details
- Asking price: €1,075,000, buyer’s costs excluded;
- Leasehold property;
- VvE contribution: €220 per month;
- Living area: 96 m² (in accordance with NEN 2580 measurement report);
- High-quality finishes throughout;
- Spacious, sunny garden;
- Located in the popular Oud-Zuid district;
- Energy label A;
- Delivery: in consultation;
- Notary: buyer’s choice.
For more information or to schedule a viewing:
Visch & van Zeggelaar Amsterdam 020 – 20 91 911
This information has been compiled with the utmost care. However, we accept no liability for any inaccuracies or omissions, nor for the consequences thereof. All measurements and surface areas are indicative. Buyers are advised to conduct their own due diligence regarding all matters of importance to them. The selling agent represents the seller. We recommend engaging a qualified (NVM) real estate agent to assist you in the purchasing process. If you have specific requirements regarding the property, please communicate these in time and conduct (or have conducted) your own investigation accordingly. If you choose not to engage a professional representative, the law assumes that you are sufficiently knowledgeable to assess all relevant aspects yourself. The NVM terms and conditions apply.