Beschrijving
Op zoek naar dat ene familiehuis waar charme, comfort en een uitzonderlijke ligging samenkomen? Waar u vrij uitkijkt aan de voorzijde én kunt genieten van een diepe, groene achtertuin zonder directe achterburen? Deze sfeervolle jaren ’30 woning aan de Ouderkerkerlaan biedt precies dat – en meer. Een huis dat warmte uitstraalt, ruimte biedt voor het hele gezin en tegelijk ideaal gelegen is in het hart van Amstelveen.
Een huis met karakter en comfort
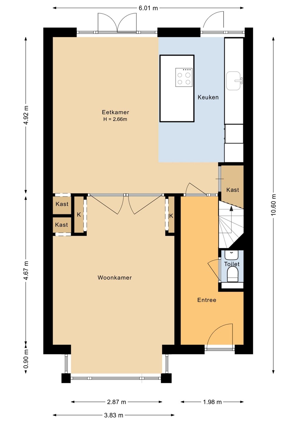
Achter de groene haag in de voortuin ligt een slim verzonken fietsenhok – praktisch én uit het zicht. Door de charmante ronde voordeur stap je binnen in een lichte hal waar de houten visgraatvloer en stijlvolle paneeldeuren direct sfeer geven.
De open leefkeuken aan de achterzijde vormt het hart van het huis. Een plek om te koken, borrelen, eten en samen te zijn. De keuken is voorzien van moderne inbouwapparatuur (o.a. inductiekookplaat, Quooker) en heeft veel werk- en kastruimte. Een mooie vondst zijn de ingebouwde kastdeuren die openklappen tot klassieke en-suite deuren, waarmee je de eetkamer kunt verbinden met – of juist afsluiten van – de gezellige zitkamer aan de voorzijde.
Vanuit zowel de keuken als de eetkamer loop je zo de verrassend diepe achtertuin in: zo’n 120 m² met meerdere terrassen, een overdekte loungehoek achterin en volop zon en groen. Hier vind je altijd een plek om te ontspannen, van het vroege voorjaar tot laat in de zomeravond.
Ruimte voor het hele gezin
Op de eerste verdieping vind je drie slaapkamers. De ruime master bedroom aan de achterzijde strekt zich uit over de volle breedte van het huis en kijkt uit over de tuin. Aan de voorzijde liggen een middelgrote slaapkamer en een kleinere kamer met handige inbouwkast.
De badkamer is royaal opgezet, praktisch én sfeervol: voorzien van een ligbad, inloopdouche, dubbele wastafel, toilet én vloerverwarming. Ook tijdens de drukste ochtenden is hier genoeg plek voor iedereen.
De tweede verdieping is heerlijk licht en veelzijdig in te richten. Aan de voorzijde ligt een ruime werk of slaapkamer met openslaande deuren en mooie lichtinval. Aan de achterzijde een vijfde slaapkamer met vrij uitzicht op het groen. Hier is ook volop bergruimte én plek voor de wasmachine en droger. Er zijn mogelijkheden om op de tweede verdieping een tweede badkamer te realiseren.
Goed om te weten;
- Achtertuin van ca. 20 meter diep, met berging, overkapping met meerdere zitplekken en wateraansluiting;
- Verzorgde voortuin;
- Heerlijk tuinhuis met elektriciteit;
- Elektrapunten en buitenkraan in zowel voor- als achtertuin;
- 8 zonnepanelen pal op het zuiden;
- Visgraatvloer op de begane grond, veel licht en originele details;
- Mogelijkheden voor uitbouw of een extra badkamer.
Locatie;
- Ligging groen, centraal en alles dichtbij winkels en horeca van het Stadshart op loopafstand;
- Openbaar vervoer op 5 minuten lopen: tram 5 en 25, bus naar Schiphol en Bijlmer Arena;
- Diverse basisscholen, middelbare scholen én internationale scholen in de buurt;
- Het Amsterdamse Bos, De Poel, de Amstel en de polders vlakbij;
- Gunstig gelegen ten opzichte van de A9 (verdiept aangelegd), A1 en Beneluxbaan;
- Nabij het toekomstige Meanderpark: een groen stadspark op de overkapping van de A9.
Samengevat;
- Charmante jaren ’30 huis met veel karakter en comfort;
- Ca. 155 m² woonoppervlakte, 7 kamers (5 slaapkamers + woonkamer + badkamer)
- Riante, zonnige tuin met veel privacy;
- Royale leefkeuken, sfeervolle zitkamer en luxe badkamer;
- Zonnepanelen, dubbel glas, praktische bergruimte en tuinhuis;
- Centrale ligging met winkels, natuur, scholen en OV om de hoek.
Wilt u dit fantastisch gezinshuis met eigen ogen zien? Neem dan snel contact met ons op en ontdek of dit uw nieuwe thuis wordt!
Voor inlichtingen of het maken van een afspraak voor een bezichtiging:
Visch & van Zeggelaar Amsterdam 020 - 20 91 911
Deze informatie is door ons met de nodige zorgvuldigheid samengesteld. Onzerzijds wordt echter geen enkele aansprakelijkheid aanvaard voor enige onvolledigheid, onjuistheid of anderszins, dan wel de gevolgen daarvan. Alle opgegeven maten en oppervlakten zijn indicatief. Koper heeft zijn eigen onderzoek plicht naar alle zaken die voor hem of haar van belang zijn. Met betrekking tot deze woning is de makelaar adviseur van verkoper. Wij adviseren u een deskundige (NVM-)makelaar in te schakelen die u begeleidt bij het aankoopproces. Indien u specifieke wensen heeft omtrent de woning, adviseren wij u deze tijdig kenbaar te maken aan uw aankopend makelaar en hiernaar zelfstandig onderzoek te (laten) doen. Indien u geen deskundige vertegenwoordiger inschakelt, acht u zich volgens de wet deskundige genoeg om alle zaken die van belang zijn te kunnen overzien. Van toepassing zijn de NVM voorwaarden.
Looking for that perfect family home where charm, comfort, and an exceptional location come together?**
Where you have an unobstructed view at the front **and** can enjoy a deep, green backyard with no direct rear neighbors? This charming 1930s home on Ouderkerkerlaan offers exactly that—and more. A house that radiates warmth, offers space for the whole family, and is ideally located in the heart of Amstelveen.
A home with character and comfort
Behind the green hedge in the front garden is a cleverly sunken bike shed—practical **and** out of sight. Enter through the charming rounded front door into a bright hallway where the herringbone wooden floor and stylish panel doors instantly set the tone.
The open-plan kitchen at the rear forms the heart of the home—a place to cook, share drinks, dine, and spend time together. The kitchen features modern built-in appliances (including an induction cooktop and Quooker) and offers plenty of counter and storage space. A beautiful touch: the built-in cupboard doors that open up as classic en-suite doors, allowing you to connect—or close off—the dining area from the cozy sitting room at the front.
From both the kitchen and the dining room, you step into the surprisingly deep backyard: around 120 m² with multiple terraces, a covered lounge area at the back, and plenty of sun and greenery. There’s always a spot to relax, from early spring to late summer evenings.
Room for the whole family
On the first floor, you’ll find three bedrooms. The spacious master bedroom at the rear spans the full width of the house and overlooks the garden. At the front are a medium-sized bedroom and a smaller room with a built-in wardrobe.
The bathroom is generously sized, practical, and atmospheric: equipped with a bathtub, walk-in shower, double sink, toilet, and underfloor heating. Even on the busiest mornings, there’s enough space for everyone.
The second floor is beautifully bright and offers flexible layout options. At the front is a spacious office or bedroom with French doors and plenty of natural light. At the rear, a fifth bedroom with an open view of greenery. There’s also ample storage space here, as well as room for a washing machine and dryer. There is potential to create a second bathroom on this floor.
Good to know:
* Backyard approx. 20 meters deep, with storage shed, covered lounge with multiple seating areas, and water connection
* Well-maintained front garden
* Lovely garden house with electricity
* Electrical outlets and water taps in both front and back gardens
* 8 south-facing solar panels
* Herringbone floor on the ground floor, lots of natural light, and original details
* Expansion or second bathroom possibel
Location:
* Green and central location, within walking distance of shops and restaurants in Stadshart
* Public transport just 5 minutes’ walk: trams 5 and 25, and buses to Schiphol and Bijlmer Arena
* Various primary, secondary, and international schools nearby
* Close to Amsterdamse Bos, De Poel, the Amstel River, and open countryside
* Conveniently located near the A9 (now tunneled), A1, and Beneluxbaan
* Near the future Meanderpark: a green city park to be built over the A9
In summary:
* Charming 1930s house full of character and comfort
* Approx. 155 m² living space, 7 rooms (5 bedrooms + living room + bathroom)
* Spacious, sunny garden with lots of privacy
* Large open-plan kitchen, cozy living room, and luxurious bathroom
* Solar panels, double glazing, practical storage, and garden house
* Centrally located with nature, shops, schools, and public transport around the corner
**Want to see this fantastic family home for yourself?**
Contact us soon to find out if this could be your new home!
For inquiries or to schedule a viewing:
Visch & van Zeggelaar Amsterdam – 020 - 20 91 911
This information has been compiled with the utmost care. However, we accept no liability for any inaccuracies, incompleteness, or consequences thereof. All measurements and areas are indicative. The buyer has a duty to investigate all matters that may be relevant to them. With regard to this property, the real estate agent represents the seller. We recommend engaging a qualified (NVM) agent to guide you through the purchase process. If you have specific requirements regarding the property, be sure to communicate these in time and conduct your own (or have conducted) independent research. If you do not engage a professional representative, the law assumes you are sufficiently knowledgeable to oversee all relevant matters. NVM conditions apply.*