Beschrijving

NIEUW IN DE VERKOOP - Jan Benninghstraat 27 – Amstelveen

Charmant en instapklaar gezinshuis met zonnige tuin op het westen

In de geliefde wijk Elsrijk staat dit onder architectuur gebouwde en volledig gerenoveerde gezinshuis van 128 m². Een sfeervolle woning waar stijl en comfort samenkomen: drie ruime slaapkamers, twee badkamers, vloerverwarming, airconditioning en een diepe tuin op het westen. Extra pluspunten zijn de solide betonnen begane grond vloer met nieuwe fundering, een zeldzaamheid in Elsrijk waar veengrond en hoog grondwater vaak een rol spelen, en de extra geluidsisolatie tussen de buren, wat zorgt voor een bijzonder rustig woonklimaat. Hier woon je zorgeloos, rustig en groen, op korte afstand van het Stadshart, het Amsterdamse Bos en uiteraard Amsterdam.

INDELING
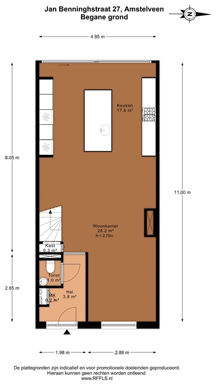
Begane grond
De voortuin met ochtendzon leidt naar de entree. De hal biedt toegang tot een separaat toilet en de lichte woonkamer. Aan de voorzijde een sfeervolle zithoek met gashaard, aan de tuinzijde de royale leefkeuken met kookeiland, Quooker en hoogwaardige inbouwapparatuur – inclusief wijnklimaatkast.

De begane grondvloer is uitgevoerd in een gestorte betonnen vloer met comfortabele vloerverwarming, wat zorgt voor een moderne uitstraling en een aangenaam binnenklimaat. De grote schuifpui opent naar de achtertuin, waardoor binnen en buiten naadloos in elkaar overlopen.

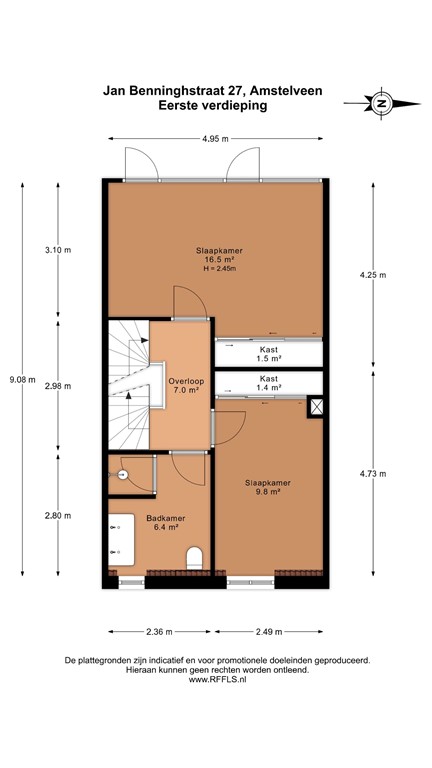
Eerste verdieping
Hier bevindt zich de master bedroom aan de achterzijde, voorzien van een royale kastenwand en airconditioning. Aan de voorzijde ligt een tweede slaapkamer, momenteel ingericht als kinderkamer. De moderne badkamer op deze verdieping beschikt over een inloopdouche, wastafelmeubel en toilet. Alle slaapkamers in het huis zijn voorzien van horren, wat extra wooncomfort biedt in de zomer.

Tweede verdieping
De derde slaapkamer, eveneens voorzien van airconditioning, is ruim opgezet en geschikt als gastenkamer of werkruimte. Daarnaast ligt de tweede badkamer met ligbad, aparte douche, wastafelmeubel en toilet. Een praktische wasruimte met aansluitingen voor wasmachine en droger completeert deze verdieping.

Buitenruimte
De diepe achtertuin op het westen is een oase van rust en zon. Met een loungehoek, eethoek en een uitzonderlijk ruime vrijstaande schuur van circa 15 m² – een formaat dat in Elsrijk nauwelijks voorkomt – is dit de ideale plek voor lange avonden met familie en vrienden.

LOCATIE
De Jan Benninghstraat is een rustige en groene straat in Elsrijk. Op loopafstand liggen het Amsterdamse Bos en diverse sportfaciliteiten (hockey, tennis, voetbal, roeien). Voor de dagelijkse boodschappen zijn supermarkten dichtbij, terwijl het Stadshart Amstelveen een breed aanbod aan winkels, restaurants en cultuur biedt. Scholen en kinderopvang liggen om de hoek en met de nabijgelegen uitvalswegen (A9, A10) en openbaar vervoer ben je snel in Amsterdam.

UITGANGSPUNTEN
- Vraagprijs: € 1.200.000,- kosten koper
- Beschikbaar: per direct
- Onder architectuur gebouwd gezinshuis
- 128 m² woonoppervlak
- Volledig gerenoveerd
- Drie slaapkamers, twee badkamers
- Begane grond voorzien van gestorte betonnen vloer met vloerverwarming
- Voorzien van vloerverwarming en airconditioning
- Diepe achtertuin op het westen met uitzonderlijk ruime schuur (ca. 15 m²) en achterom
- Gelegen op eigen grond
- Notaris: keuze koper

Voor inlichtingen of het maken van een afspraak voor een bezichtiging:

Visch & van Zeggelaar Amsterdam 020 - 20 91 911

Deze informatie is door ons met de nodige zorgvuldigheid samengesteld. Onzerzijds wordt echter geen enkele aansprakelijkheid aanvaard voor enige onvolledigheid, onjuistheid of anderszins, dan wel de gevolgen daarvan. Alle opgegeven maten en oppervlakten zijn indicatief. Koper heeft zijn eigen onderzoek plicht naar alle zaken die voor hem of haar van belang zijn. Met betrekking tot deze woning is de makelaar adviseur van verkoper. Wij adviseren u een deskundige (NVM-)makelaar in te schakelen die u begeleidt bij het aankoopproces. Indien u specifieke wensen heeft omtrent de woning, adviseren wij u deze tijdig kenbaar te maken aan uw aankopend makelaar en hiernaar zelfstandig onderzoek te (laten) doen. Indien u geen deskundige vertegenwoordiger inschakelt, acht u zich volgens de wet deskundige genoeg om alle zaken die van belang zijn te kunnen overzien. Van toepassing zijn de NVM voorwaarden.

-------------------------------------------------------------------------------------------------

NEW FOR SALE – Jan Benninghstraat 27 – Amstelveen

Charming and move-in ready family home with sunny west-facing garden

In the sought-after Elsrijk neighborhood stands this architect-designed and fully renovated family home of 128 m². A stylish residence where comfort and design come together: three spacious bedrooms, two bathrooms, underfloor heating, air conditioning, and a deep west-facing garden. Additional highlights include the solid concrete ground floor with new foundation – a rarity in Elsrijk, where peat soil and high groundwater often play a role – and the extra sound insulation between neighbors, creating an exceptionally quiet living environment. A worry-free, green and peaceful location, just minutes from Stadshart Amstelveen, the Amsterdamse Bos and of course Amsterdam itself.

LAYOUT
Ground floor
The front garden with morning sun leads to the entrance. The hall provides access to a separate toilet and the bright living room. At the front, a cozy sitting area with gas fireplace; at the garden side, the spacious open kitchen with cooking island, Quooker and high-end built-in appliances – including a wine climate cabinet.

The ground floor is finished with a cast concrete floor including underfloor heating, providing a modern look and a pleasant indoor climate. The large sliding doors open directly to the garden, creating a seamless transition between indoors and outdoors.

First floor
Here you will find the master bedroom at the rear, equipped with a generous wardrobe wall and air conditioning. At the front, a second bedroom currently used as a child’s room. The modern bathroom on this level features a walk-in shower, washbasin cabinet and toilet. All bedrooms in the house are fitted with insect screens, providing extra comfort in the summer months.

Second floor
The third bedroom, also with air conditioning, is spacious and suitable as a guest room or home office. In addition, there is a second bathroom with bathtub, separate shower, washbasin cabinet and toilet. A practical laundry room with connections for washing machine and dryer completes this floor.

Outdoor space
The deep west-facing garden is a true oasis of peace and sunshine. With a lounge area, dining area and an exceptionally large detached shed of approx. 15 m² – a size rarely found in Elsrijk – this is the ideal spot for long evenings with family and friends.

LOCATION
Jan Benninghstraat is a quiet, green street in Elsrijk. Within walking distance you’ll find the Amsterdamse Bos and various sports facilities (hockey, tennis, football, rowing). Supermarkets are close by for daily groceries, while Stadshart Amstelveen offers a wide range of shops, restaurants and cultural venues. Schools and childcare are around the corner, and with nearby motorways (A9, A10) and public transport you are quickly in Amsterdam.

KEY DETAILS
- Asking price: € 1,200,000, buyer’s costs
- Available: immediately
- Architect-designed family home
- 128 m² living space
- Fully renovated
- Three bedrooms, two bathrooms
- Ground floor with cast concrete floor and underfloor heating
- Equipped with underfloor heating and air conditioning
- Deep west-facing garden with exceptionally large shed (approx. 15 m²) and rear access
- Freehold property (no leasehold)
- Notary: buyer’s choice

For more information or to schedule a viewing:

Visch & van Zeggelaar Amsterdam
020 – 20 91 911

This information has been compiled with the utmost care. However, no liability is accepted for any incompleteness, inaccuracies or otherwise, nor for the consequences thereof. All measurements and surfaces are indicative. Buyers are responsible for carrying out their own investigations into all matters that are important to them. With regard to this property, the broker acts as the seller’s advisor. We recommend that you engage a qualified (NVM) purchasing agent to guide you through the process. If you have specific wishes regarding the property, we advise you to make these known in good time to your purchasing agent and to conduct (or have conducted) independent research. If you do not engage a professional representative, you consider yourself sufficiently expert by law to be able to oversee all matters of importance. The NVM conditions apply.

Kenmerken