Beschrijving
NIEUW IN DE VERKOOP – Machineweg 302-A, Aalsmeer
Vrijstaand landhuis met guesthouse, zwembad en jacuzzi, ruim perceel en energielabel A
Op een vrije en groene locatie tussen Amstelveen en Aalsmeer staat dit onder architectuur gebouwde landhuis uit 1995. Een woning die recent volledig is gemoderniseerd en vandaag de dag alle comfort biedt: energielabel A, 33 zonnepanelen, een perceel van bijna 1.300 m², een verwarmd zwembad met jacuzzi en een luxe bijgebouw dat gebruikt kan worden als kantoor of gastenverblijf. Hier woon je vrijstaand, met water en groen rondom, maar toch dichtbij Amstelveen, Amsterdam en Schiphol.
INDELING
Begane grond
De ruime entree met vide en eiken trap vormt een uitnodigende binnenkomst. Vanuit de hal zijn de belangrijkste vertrekken bereikbaar: een lichte woonkamer met open haard, een royale leefkeuken met openslaande deuren naar de tuin, een slaapkamer, wasruimte en een apart toilet. De keuken (2021) is voorzien van hoogwaardige inbouwapparatuur en een 90 cm fornuis, ontworpen als centrale plek in huis. Aan de tuinzijde bevindt zich een multifunctionele aanbouw, nu in gebruik als garage maar eenvoudig te benutten als kantoor of speelkamer.
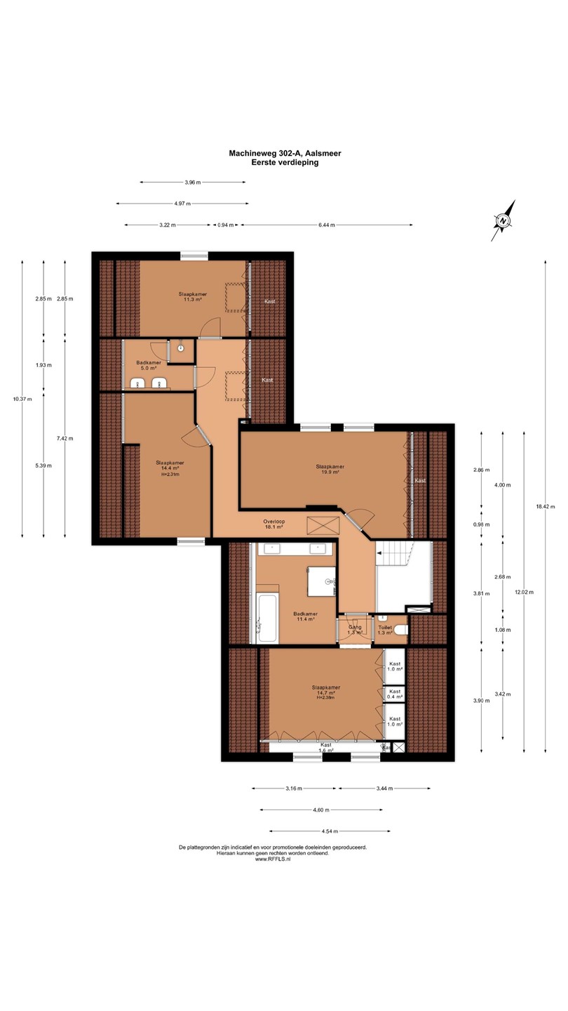
Eerste verdieping
De hoofdslaapkamer heeft een vaste kastenwand en een luxe badkamer ensuite met ligbad, inloopdouche, dubbele wastafel en toilet. Daarnaast zijn er drie slaapkamers van goed formaat en een tweede badkamer met douche, dubbele wastafel en separaat toilet.
Tweede verdieping
Via een vlizotrap is een ruime bergzolder bereikbaar.
Guesthouse / bijgebouw
In de achtertuin staat een vrijstaand bijgebouw van circa 36 m², gebouwd in 2021 met natuurlijke materialen zoals Franse eiken balken en een rieten dak. De ruimte beschikt over een woonkamer met houtkachel, open keuken, slaapvide en een overdekt terras. Geschikt als gastenverblijf, atelier of werkruimte.
BUITEN
De tuin is ontworpen door een tuinarchitect en biedt verschillende terrassen en zitplekken, altijd met zon en uitzicht op het sierwater. Blikvanger is het verwarmde buitenzwembad met aangrenzende jacuzzi, een plek die in elk seizoen uitnodigt tot ontspanning. Het perceel is volledig vrij gelegen en wordt ontsloten via een eigen oprit met elektrisch hekwerk en intercom. Parkeren kan royaal op eigen terrein, hier is plek voor circa 4-5 auto's.
UITGANGSPUNTEN
- Woonoppervlakte circa 326 m²
- Perceel circa 1.295 m²
- Bouwjaar 1995, gerenoveerd in 2021
- Energielabel A, voorzien van 33 zonnepanelen
- Verwarmd zwembad en jacuzzi in de tuin
- Luxe guesthouse / bijgebouw uit 2021
- Alarm- en camerasysteem aanwezig
- Centrale ligging nabij Amstelveen, Amsterdam en Schiphol
- Beschikbaar: in overleg
- Notaris: keuze koper.
Voor inlichtingen of het maken van een afspraak voor een bezichtiging:
Visch & van Zeggelaar Amsterdam 020 - 20 91 911
Deze informatie is door ons met de nodige zorgvuldigheid samengesteld. Onzerzijds wordt echter geen enkele aansprakelijkheid aanvaard voor enige onvolledigheid, onjuistheid of anderszins, dan wel de gevolgen daarvan. Alle opgegeven maten en oppervlakten zijn indicatief. Koper heeft zijn eigen onderzoek plicht naar alle zaken die voor hem of haar van belang zijn. Met betrekking tot deze woning is de makelaar adviseur van verkoper. Wij adviseren u een deskundige (NVM-)makelaar in te schakelen die u begeleidt bij het aankoopproces. Indien u specifieke wensen heeft omtrent de woning, adviseren wij u deze tijdig kenbaar te maken aan uw aankopend makelaar en hiernaar zelfstandig onderzoek te (laten) doen. Indien u geen deskundige vertegenwoordiger inschakelt, acht u zich volgens de wet deskundige genoeg om alle zaken die van belang zijn te kunnen overzien. Van toepassing zijn de NVM voorwaarden.
-------------------------------------------------------------------------------------------------
FOR SALE – Machineweg 302-A, Aalsmeer
Detached country house with guesthouse, swimming pool and jacuzzi, spacious plot and energy label A
In a green and open location between Amstelveen and Aalsmeer stands this architect-designed country house, built in 1995. A home that has been recently modernized and now offers every comfort: energy label A, 33 solar panels, a plot of almost 1,300 m², a heated swimming pool with jacuzzi, and a luxury outbuilding that can be used as an office or guesthouse. Here you live detached, surrounded by water and greenery, yet close to Amstelveen, Amsterdam and Schiphol.
LAYOUT
Ground floor
The spacious entrance with void and oak staircase forms an inviting arrival. From the hall, the main rooms are accessible: a bright living room with fireplace, a generous kitchen with French doors to the garden, a bedroom, utility room and separate toilet. The kitchen (2021) is equipped with high-quality built-in appliances and a 90 cm stove, designed as the central place in the home. On the garden side is a multifunctional extension, now used as a garage but easily adapted as an office or playroom.
First floor
The master bedroom has a built-in wardrobe and a luxury ensuite bathroom with bathtub, walk-in shower, double sink and toilet. In addition, there are three well-sized bedrooms and a second bathroom with shower, double sink and separate toilet.
Second floor
Via a loft ladder, a spacious attic storage is accessible.
Guesthouse / outbuilding
In the backyard stands a detached outbuilding of approximately 36 m², built in 2021 with natural materials such as French oak beams and a thatched roof. The space offers a living room with wood stove, open kitchen, sleeping loft and a covered terrace. Suitable as guest accommodation, studio or workspace.
OUTSIDE
The garden was designed by a landscape architect and offers several terraces and seating areas, always with sun and a view of the ornamental water. The eye-catcher is the heated outdoor pool with adjoining jacuzzi, a place that invites relaxation in every season. The plot is completely private and accessible via a private driveway with electric gate and intercom. Parking is generous on site, with space for about 4-5 cars.
KEY POINTS
- Living area approximately 326 m²
- Plot approximately 1,295 m²
- Built in 1995, renovated in 2021
- Energy label A, fitted with 33 solar panels
- Heated swimming pool and jacuzzi in the garden
- Luxury guesthouse / outbuilding from 2021
- Alarm and camera system installed
- Central location near Amstelveen, Amsterdam and Schiphol
- Availability: in consultation
- Notary: buyer’s choice
For information or to schedule a viewing:
Visch & van Zeggelaar Amsterdam 020 - 20 91 911
This information has been compiled with due care. However, we accept no liability for any incompleteness, inaccuracies or otherwise, nor for the consequences thereof. All dimensions and surfaces are indicative. The buyer has their own duty to investigate all matters that are important to him or her. Regarding this property, the broker acts as advisor to the seller. We advise you to engage a qualified (NVM) broker who will guide you through the purchase process. If you have specific wishes regarding the property, we advise you to make these known to your purchasing broker in good time and to carry out independent investigation. If you do not engage a professional representative, you are deemed by law to be sufficiently expert to oversee all matters of importance. The NVM conditions apply.