Beschrijving
*English translation below*
NIEUW IN DE VERHUUR - Dukokstraat 16, Hoofddorp, gebouw Notting Hill - Hydepark Hoofddorp
Zelden komt er een nieuwbouwwoning te huur onder de rook van Amsterdam! Is dit jouw unieke kans?
Kom thuis in de Dukokstraat 16! Dit nieuwbouw appartement met 87 m2 aan wooncomfort biedt een royale woonkamer met open keuken inclusief apparatuur, twee slaapkamers en een luxueuze badkamer. En dat niet alleen! De woning is hoogwaardig afgewerkt met een pvc-vloer en gestucte en geschilderde wanden. Het appartement heeft ook een ruime loggia, direct toegankelijk vanuit de woonkamer. Daardoor geniet je het gehele jaar door van jouw buiten als verlengstuk van je woonkamer. Pak je verhuisdozen maar alvast in en kan jij genieten van jouw nieuwe thuis aan het einde van dit jaar!
Uiteraard heeft het appartement ook een inpandige fietsenstalling. Wil je meer weten over dit ruime, moderne appartement? Laat het ons weten, wij nodigen je graag uit om zelf de sfeer te komen proeven.
OMGEVING
De Dukokstraat 16 in Hoofddorp maakt onderdeel uit van een high- end gebiedsontwikkeling genaamd “Hydepark”: dé nieuwe populaire hotspot onder starters en expats. De locatie biedt het beste van twee werelden, zowel het centrum van Amsterdam als het strand zijn op korte afstand van jouw woning. Op loopafstand bevinden zich allerlei voorzieningen voor jouw dagelijkse benodigdheden. De levendige wijk beschikt over meerdere supermarkten, cafeetjes, restaurantjes en een theater. Bovendien ligt het “Oude Hoofddorpse Bos”, waar je heerlijk kunt wandelen en ontspannen, om de hoek! En niet onbelangrijk; Hyde Park is goed bereikbaar via diverse uitvalswegen en openbaar vervoer (waaronder een treinstation) op korte afstand.
INDELING
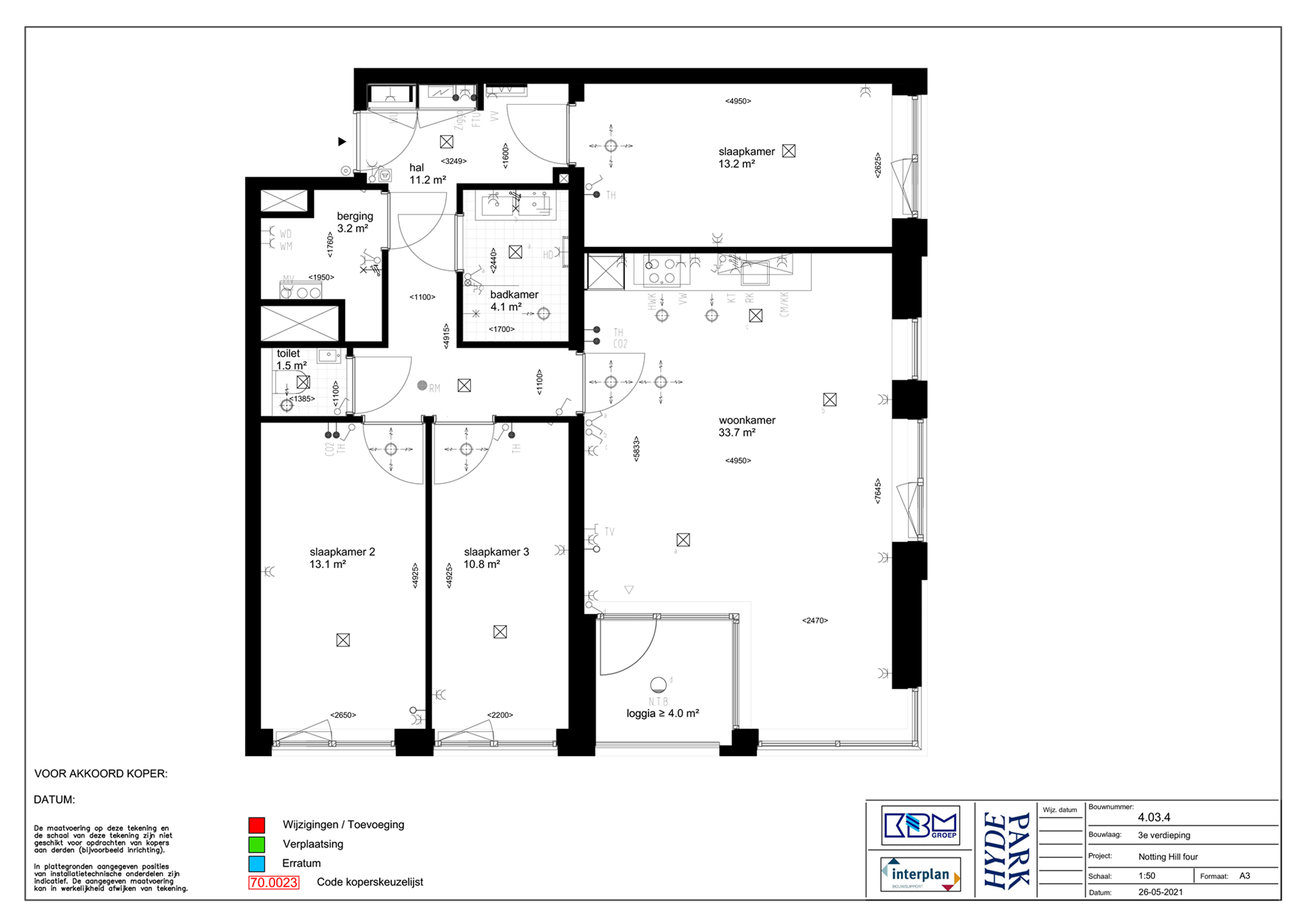
Via de hal heb je toegang tot ieder vertrek van de gelijkvloerse woning. De woonkamer met open keuken inclusief luxe apparatuur is een zeer fijne ruimte waar grote raampartijen en strakke wandafwerkingen de toon zetten. Hier kun je zowel een zithoek als een eethoek inrichten. De keuken beschikt over hoogwaardige apparatuur zoals een inductiekookplaat van het merk Siemens, een ingebouwde over, een afzuigkap. Samen met het granieten keukenblad en de grote hoeveelheid aan werk -en opslagruimte is het een aangenaam en compleet geheel. Tevens heb je vanuit de woonkamer toegang tot de loggia. Hier kun je tijdens alle weersomstandigheden genieten van de frisse lucht en het brede uitzicht over de straat.
Ook de twee slaapkamers zijn prettige ruimtes om te ontspannen. De master bedroom bevat voldoende ruimte voor het plaatsen van een tweepersoonsbed en ander meubilair. In de badkamer kun je je heerlijk opfrissen door de ruime instapdouche en de dubbele wastafel. De designradiator en volledig betegeling maken het tot een stijlvol geheel.
Verder is in het appartement een berging van 6m2 en een separaat toilet. Het toilet is zwevend, volledig betegeld en voorzien van een wc-fonteintje.
UITGANGSPUNTEN
- Huurprijs: € 2.300,- per maand, ex verwarming, water en licht
- 2 maanden borg
- Beschikbaar: per direct;
- Energielabel: A++
- Mogelijkheid tot huren parkeerplaats in ondergelegen garage
- Turnkey driekamerappartement in het Amsterdamse metropool
- Dicht bij het centrum van Amsterdam en het strand
- Hoogwaardig afwerkingsniveau
- Onderdeel van populair nieuwbouwproject “Hydepark”
- Ruime woonkamer met open keuken
- Loggia met breed uitzicht over de straat
- Inpandige fietsenstalling
- Berging van 6m2
Voor inlichtingen of het maken van een afspraak voor een bezichtiging:
Visch & van Zeggelaar Amsterdam 020 - 20 91 911
Deze informatie is door ons met de nodige zorgvuldigheid samengesteld. Onzerzijds wordt echter geen enkele aansprakelijkheid aanvaard voor enige onvolledigheid, onjuistheid of anderszins, dan wel de gevolgen daarvan. Alle opgegeven maten en oppervlakten zijn indicatief. Koper heeft zijn eigen onderzoek plicht naar alle zaken die voor hem of haar van belang zijn. Met betrekking tot deze woning is de makelaar adviseur van verkoper. Wij adviseren u een deskundige (NVM-)makelaar in te schakelen die u begeleidt bij het aankoopproces. Indien u specifieke wensen heeft omtrent de woning, adviseren wij u deze tijdig kenbaar te maken aan uw aankopend makelaar en hiernaar zelfstandig onderzoek te (laten) doen. Indien u geen deskundige vertegenwoordiger inschakelt, acht u zich volgens de wet deskundige genoeg om alle zaken die van belang zijn te kunnen overzien. Van toepassing zijn de NVM voorwaarden.
-----------------------------------------------------------
NEW FOR RENT – Dukokstraat 16, Hoofddorp, Notting Hill building – Hyde Park Hoofddorp
Rarely does a newly built rental property become available so close to Amsterdam! Is this your unique opportunity?
Come home to Dukokstraat 16! This newly built apartment offers 87 m² of living comfort and features a spacious living room with an open-plan kitchen including built-in appliances, two bedrooms, and a luxurious bathroom. And that’s not all! The apartment is finished to a high standard with a PVC floor and plastered and painted walls. It also features a generous loggia, directly accessible from the living room. This allows you to enjoy your outdoor space all year round as an extension of your living area. Start packing your moving boxes now and enjoy your new home by the end of this year!
Naturally, the apartment also includes an indoor bicycle storage area. Would you like to know more about this spacious, modern apartment? Let us know—we would be happy to invite you to experience the atmosphere for yourself.
SURROUNDINGS
Dukokstraat 16 in Hoofddorp is part of a high-end area development called “Hyde Park”: the new popular hotspot for starters and expats. The location offers the best of both worlds—both Amsterdam city center and the beach are within easy reach. All daily amenities are within walking distance. This vibrant neighborhood features several supermarkets, cafés, restaurants, and a theater. In addition, the Oude Hoofddorpse Bos, perfect for walking and relaxing, is just around the corner. Not unimportant: Hyde Park is easily accessible via various main roads and public transport options, including a nearby train station.
LAYOUT
Through the hallway, you have access to all rooms of this single-level apartment. The living room with open kitchen and luxury appliances is a very pleasant space, characterized by large windows and sleek wall finishes. There is ample room to create both a seating area and a dining area.
The kitchen is equipped with high-quality appliances, including a Siemens induction cooktop, a built-in oven, and an extractor hood. Together with the granite countertop and the generous amount of workspace and storage, this creates a complete and comfortable kitchen. From the living room, you also have access to the loggia, where you can enjoy fresh air and a wide view of the street in all weather conditions.
The two bedrooms are also comfortable spaces for relaxation. The master bedroom offers sufficient space for a double bed and additional furniture. In the bathroom, you can freshen up in the spacious walk-in shower and at the double washbasin. The designer radiator and full tiling give the bathroom a stylish finish.
Additionally, the apartment includes a 6 m² storage room and a separate toilet. The toilet is wall-hung, fully tiled, and fitted with a small washbasin.
KEY FEATURES
- Rent: €2,300 per month, excluding heating, water, and electricity
- 2 months’ security deposit
- Available immediately;
- Energy label: A++
- Option to rent a parking space in the underground garage
- Turnkey three-room apartment in the Amsterdam metropolitan area
- Close to Amsterdam city center and the beach
- High-quality finishing level
- Part of the popular new-build project “Hyde Park”
- Spacious living room with open-plan kitchen
- Loggia with a wide view over the street
- Indoor bicycle storage
- Storage room of 6 m²
For information or to schedule a viewing:
Visch & van Zeggelaar Amsterdam Tel: 020 – 20 91 911
This information has been compiled by us with due care. However, no liability is accepted on our part for any incompleteness, inaccuracies, or otherwise, nor for the consequences thereof. All stated measurements and surface areas are indicative. The buyer has a duty to conduct their own investigation into all matters of importance to them. With regard to this property, the real estate agent acts as advisor to the seller. We advise engaging a professional (NVM) real estate agent to guide you through the purchase process. If you have specific wishes regarding the property, we recommend that you make these known in good time to your purchasing agent and independently conduct or commission further investigation. If you do not engage a professional representative, you are deemed under the law to be sufficiently expert to oversee all matters of importance. The NVM conditions apply.