Beschrijving
NIEUW IN DE VERHUUR- Volledig ruim 3-kamer appartement in het centrum van Amsterdam! Geschikt voor woningdelers.
** English translation below**
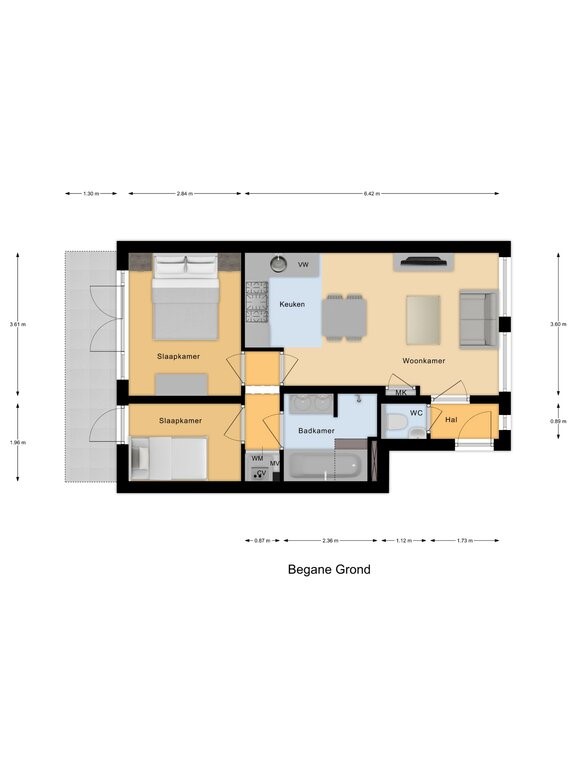
Het appartement is goede staat en van alle gemakken voorzien. De entree is op de begaande grond. Via de hal komt u in de ruime en lichte woonkamer, gelegen aan de voorzijde van het appartement met grote ramen voor voldoende lichtinval. De woonkamer biedt de mogelijkheid om zowel een zithoek als eethoek te creëren. Aansluitend bevindt zich de keuken en is tevens voorzien van de nodige en moderne inbouw apparatuur, te noemen: kookplaat, afzuigkap, combi- oven magnetron, vaatwasser en ijskast met vriesvak. Aan de achterzijde van de woning bevinden zich beide slaapkamers met toegang tot een ruime tuin. In de hal vindt u de deur die toegang geeft tot de badkamer en toilet. De woning is voorzien van een energielabel A.
Omgeving:
De Van Spilbergenstraat is gelegen in stadsdeel De Baarsjes in Amsterdam West. De straat is erg rustig gelegen en nabij vele voorzieningen. Zo is op loopafstand het onlangs vernieuwde Mercatorplein en de Jan Evertsestraat met een diversiteit aan winkels en eetgelegenheden. Tevens loopt men zo het groene Rembrandtpark binnen voor een heerlijke wandeling of richting de Ten Kate vers markt voor een boodschap. Met circa 10 minuten fietsen wordt het centrum van Amsterdam bereikt. De openbaar vervoer voorzieningen zijn met de verschillende bus- en tram lijnen uitstekend te noemen en rijden deze frequent van en naar verschillende omliggende stations. Daarnaast is men binnen mum van tijd op de uitvalswegen Ring A-10, A-4 en A-9. Parkeermogelijkheden zijn in de straat aanwezig.
- Huurprijs € 2.295,- per maand exclusief gas, water en licht;
- 50 m2;
- 2 slaapkamers;
- Een maanden borg;
- Ruime tuin;
- Minimale huurperiode van 24 maanden;
- Onbepaald tijd contract;
- Per direct beschikbaar;
- Geschikt voor twee woningdelers.
!! Via Funda kunt u uw eigen bezichtiging inplannen.
Deze informatie is door ons met de nodige zorgvuldigheid samengesteld. Onzerzijds wordt echter geen enkele aansprakelijkheid aanvaard voor enige onvolledigheid, onjuistheid of anderszins, dan wel de gevolgen daarvan. Alle opgegeven maten en oppervlakten zijn indicatief. Koper heeft zijn eigen onderzoek plicht naar alle zaken die voor hem of haar van belang zijn. Met betrekking tot deze woning is de makelaar adviseur van verkoper. Wij adviseren u een deskundige (NVM-)makelaar in te schakelen die u begeleidt bij het aankoopproces. Indien u specifieke wensen heeft omtrent de woning, adviseren wij u deze tijdig kenbaar te maken aan uw aankopend makelaar en hiernaar zelfstandig onderzoek te (laten) doen. Indien u geen deskundige vertegenwoordiger inschakelt, acht u zich volgens de wet deskundige genoeg om alle zaken die van belang zijn te kunnen overzien. Van toepassing zijn de NVM voorwaarden.
------------------------------------------------------------------
NEW FOR RENT – Spacious 2-bedroom apartment in the center of Amsterdam! Suitable for flat sharers.
The apartment is in good condition and fully equipped. The entrance is on the ground floor. Through the hallway you enter the spacious and bright living room, located at the front of the apartment with large windows providing plenty of natural light. The living room offers enough space to create both a seating area and a dining area. Adjacent is the kitchen, which is equipped with the necessary modern built-in appliances, including: hob, extractor hood, combi oven/microwave, dishwasher, and fridge with freezer compartment. At the rear of the property are both bedrooms, each with access to a spacious garden. In the hallway you will find the door leading to the bathroom and toilet. The property has an energy label A.
Surroundings:
Van Spilbergenstraat is located in the De Baarsjes district in Amsterdam West. The street is very quiet and close to many amenities. Within walking distance you will find the recently renovated Mercatorplein and Jan Evertsenstraat with a variety of shops and dining options. You can also easily walk to the green Rembrandtpark for a pleasant stroll, or head towards the Ten Kate market for fresh produce. The center of Amsterdam can be reached in about 10 minutes by bike. Public transport connections are excellent, with various bus and tram lines running frequently to and from surrounding stations. In addition, the main highways Ring A-10, A-4, and A-9 can be reached in no time. Parking is available in the street.
- Rent: €2,295 per month excluding gas, water, and electricity
- 50 m²
- 2 bedrooms
- One month’s deposit
- Spacious garden
- Minimum rental period of 24 months
- Indefinite contract
- Available immediately
- Suitable for two flat sharers
!! Viewings can be scheduled directly via Funda.
This information has been compiled with the greatest possible care. However, we do not accept any liability for any incompleteness, inaccuracy, or otherwise, nor for the consequences thereof. All stated sizes and surfaces are indicative. The buyer has a duty to conduct their own investigation into all matters that are of importance to them. Regarding this property, the estate agent acts as an advisor to the seller. We recommend engaging a qualified (NVM) estate agent to assist you in the purchasing process. If you have specific requirements regarding the property, we advise you to communicate these in good time to your purchasing agent and to (have them) investigate these matters independently. If you choose not to engage a qualified representative, you declare yourself legally competent enough to oversee all matters of importance. NVM conditions apply.