Description

Charmante gezinsvilla uit 1928 in karakteristieke jaren ’30-stijl, op unieke locatie in Naarden. Met een royale, zonnige tuin, sfeervolle details en de Vesting om de hoek is dit de ideale plek voor gezinnen die rust, ruimte en sfeer zoeken in het hart van het Gooi.

Locatie
Aan één van de mooiste lanen van Naarden – de Thierensweg – staat deze sfeervolle helft van een dubbele villa uit 1928. Een unieke locatie, uitstekende centrale ligging. 
De woning ligt om de hoek van het sfeervolle Naarden-Vesting, met de karakteristieke vestingwallen en waterpartijen binnen handbereik.

Op loop-/fietsafstand bevinden zich diverse lagere en middelbare scholen, kinderdagverblijven, winkels en sportvelden. De charmante vestingstad Naarden-Vesting op loopafstand. Het centrum van Bussum, alsmede en het station Naarden-Bussum zijn op enkele minuten fietsen aanwezig. Ook een zeer goede aansluiting op de diverse snelwegen en Schiphol-Airport.

Omschrijving
De statige hal geeft een warm welkom bij binnenkomst. In de woonkamer tref je een mooie massieve visgraad houten vloer, een en-suite tussen de woon- en eetkamer, vaste originele kasten, een hout gestookte openhaard en een erker aan de voorzijde. De hoge plafonds dragen bij aan een gevoel van ruimte en grandeur in de woning, welke goed is onderhouden. De keuken is voorzien van een natuurstenen werkblad en diverse inbouwapparatuur. 
Vanuit de woonkamer stap je via openslaande deuren de fraai aangelegde, op het zuiden georiënteerde tuin in. De tuin is volledig omheind, biedt veel privacy en is ideaal om te spelen, ontspannen en te genieten.

De woning heeft originele details behouden, waaronder paneeldeuren, het trappenhuis en en-suite.

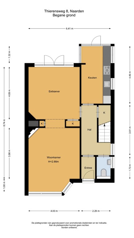
Begane grond:
Entree aan de voorzijde van de woning
Vestibule
Toilet met fontein
Ruime kelderkast
Woonkamer met en-suite, inbouwkasten, visgraad houten vloer, hout gestookte openhaard, erker aan de voorzijde en openslaande deuren naar de tuin
Uitgebouwde keuken voorzien van diverse inbouwapparatuur, openslaande deuren naar terras en tuin aan de achterzijde van de woning  
 
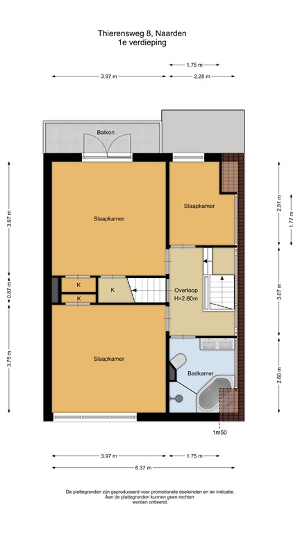
Eerste verdieping:
Lichte overloop met raampartij
Ruime ouderslaapkamer met ingebouwde kasten en openslaande deuren naar balkon
Tweede slaapkamer met dakkapel
Derde ruime slaapkamer aan de voorzijde van de woning met vaste kast
Badkamer is voorzien van bubbelbad, inloopdouche, dubbele wastafel, tweede toilet en designradiator
Gehele verdiepingsvloer is voorzien van houten parketvloer
 
Zolderverdieping:
Vaste trap naar de zolder
Ruime vierde slaapkamer met dakkapel aan de voorzijde van de woning.
Werkruimte aan de achterzijde van de woning met dubbele Velux ramen, mogelijkheid voor een vijfde slaapkamer
Diverse inbouwkasten
Aansluitingen voor wasmachine en droger
CV-ketel (2024)

Tuin
De royale tuin rondom het huis is fraai aangelegd en volop groen, met de walnootboom als centraal punt. De tuin is volledig omheind en beschikt over verschillende zitgedeeltes. Dankzij de zuid gerichte ligging is er volop zon, maar ook voldoende schaduwplekken om te ontspannen. Achterin bevindt zich een vrijstaande stenen schuur. Perceeloppervlakte: 468 m².

Bijzonderheden
Goed onderhouden woning met uitbreidingsmogelijkheden
Centraal gelegen: scholen, sportclubs, winkels en de Vesting op loopafstand
Binnen 5 minuten op de A1 richting Amsterdam (ca. 20 minuten rijden)
Authentieke stijl uit 1928 met veel karakter
Rustige, veilige straat
Buitenschilderwerk 2025
Riante aangelegde tuin met veel privacy
 
Meetgegevens volgens branchebrede NVM meetinstructies (BBMI):
· Woonoppervlakte 141,2 m²
· Gebouw gebonden buitenruimte 4 m²
· Garage 5,20 m²
· Bruto inhoud 523 m³
· Perceeloppervlakte 468 m2

Features