Description

Charming Detached Home with Versatile Basement – Within Walking Distance of Bussum Town Centre

In the popular and traffic-calmed Molenlaan, we are proud to present this charming detached home.
Here you’ll live in peace and greenery, while the lively centre of Bussum is literally just around the corner. This house is ideal for young families thanks to its perfect combination of space, child-friendliness, and convenient location.

Layout:
Ground Floor
Entrance hall with toilet and coat area, stairs to the basement and first floor. The bright, modern kitchen is fitted with various built-in appliances. The light-filled living room features a natural stone floor with underfloor heating and French doors opening onto the back garden.

Basement
The basement is a true surprise – a full additional living level with multiple possible uses. The two spacious rooms can serve perfectly as a playroom, home office, or guest accommodation.

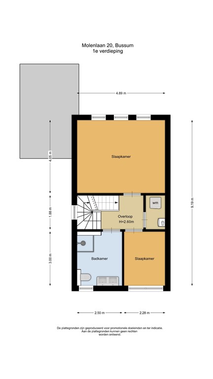
First Floor
Landing with access to one large bedroom and a second bedroom or study. Bathroom with walk-in shower, washbasin unit, and toilet. Separate storage space with washing machine connection and central heating boiler.

Second Floor
Landing with small pantry, two generous bedrooms with Velux windows, and storage space.

Outdoor Space
At the front, a well-maintained garden with a green view over the quiet street. On the side, a spacious driveway for parking, providing access to the garage/chill room.

Key Features
- Charming detached home with lots of natural light
- Surprising basement with two spacious rooms
- Peaceful, child-friendly, and traffic-calmed location
- Within walking distance of shops, restaurants, schools, and the train station
- On-street parking by permit (€41.30 per year – Municipality of Gooise Meren)
- Alarm system

Living area: 162 m²

Molenlaan is known for its characteristic pre-war houses and its child-friendly, low-traffic atmosphere – a delightful place where tranquillity, charm, and a sense of community come together.

You are warmly invited to come and view this lovely home!

Features