Description

Wil je deze woning bezichtigen? Klik op de knop ‘Neem contact op’ of ‘Vraag bezichtiging aan’. Na je aanvraag ontvang je direct een bericht en kies je zelf het tijdstip dat jou past.

Charmante, nog te moderniseren, benedenwoning met royale tuin én ruim bijgebouw – Van der Hoopstraat 121 H, Amsterdam

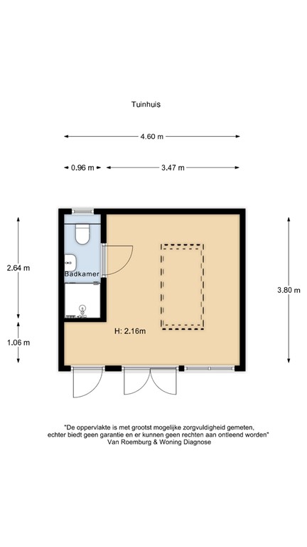
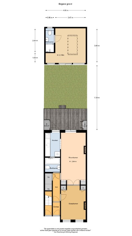
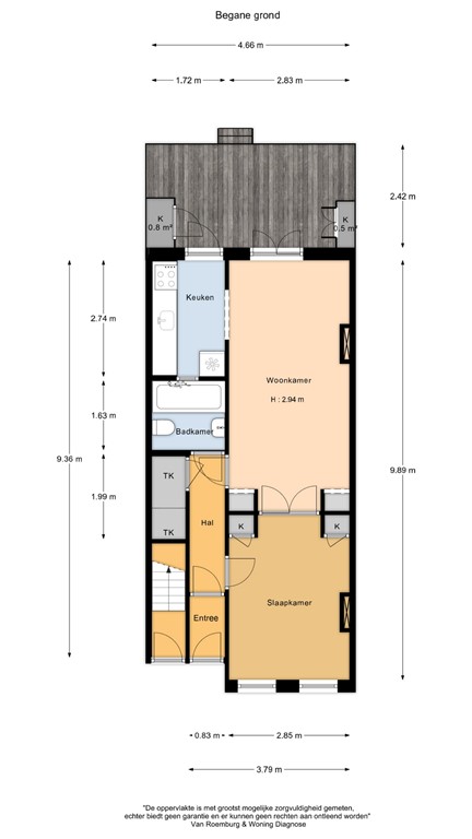
In het bruisende hart van de Staatsliedenbuurt vindt u deze sfeervolle benedenwoning met een totaal woonoppervlak van 60 m², verdeeld over 43 m² in het hoofdgebouw en 17 m² in het bijgebouw in de achtertuin. De woning is verouderd en dient gemoderniseerd te worden. Het bijgebouw is bouwkundig geschikt als woonruimte, ideaal als gastenverblijf, thuiskantoor of zelfstandige studio. Let wel, de vloer van het bijgebouw moet vernieuwd worden. Zie hiervoor het bouwkundig rapport.

Indeling
Via de entree bereikt u de lichte woonkamer met hoge plafonds en klassieke en-suite indeling, originele details en een open verbinding naar de keuken. De keuken is gedateerd en dient vernieuwd te worden.
Vanuit de entree rechtdoor kom je in de badkamer. Deze is tevens gedateerd en dient vernieuwd te worden. hoofdbewoning heeft een comfortabele slaapkamer en een nette badkamer met ligbad. Dankzij de gunstige indeling en de directe verbinding met de tuin is dit een heerlijke plek om te wonen.

Het bijgebouw in de tuin beschikt over een royale kamer met veel lichtinval, een eigen badkamer met douche en toilet. Wel dient de vloer vernieuwd te worden voordat deze kan worden gebruikt als volwaardige woonruimte.

Locatie
Gelegen in de levendige Staatsliedenbuurt, op steenworp afstand van het Westerpark, gezellige cafés, restaurants en diverse winkels. Met de fiets bent u binnen enkele minuten in de Jordaan en het centrum van Amsterdam. Openbaar vervoer en uitvalswegen zijn uitstekend bereikbaar.

Bijzonderheden
* Woonoppervlak: 43 m² hoofdgebouw + 17 m² bijgebouw (totaal 60 m²)
* Riante achtertuin van circa 52 m² op het Zuiden
* Opknapper waardoor geheel naar eigen smaak te maken
* Gelegen in geliefde buurt nabij Westerpark
* Energielabel C
* Bijdrage VvE € 75,- per maand 

Bent u op zoek naar een sfeervolle, te moderniseren, benedenwoning met extra woonruimte in de tuin en een toplocatie in Amsterdam? Dan is dit uw kans.

Wil je deze woning bezichtigen? Klik op de knop, Neem contact op, of, Vraag bezichtiging aan. Na je aanvraag ontvang je direct een bericht en kies je zelf het tijdstip dat jou past.

Disclaimer
Deze informatie is met de grootste zorg samengesteld. Desondanks aanvaarden wij geen enkele aansprakelijkheid voor eventuele onjuistheden of onvolledigheden in de beschrijving, maten, oppervlakten en/of andere verstrekte gegevens. Alle genoemde afmetingen en oppervlakten zijn indicatief en kunnen afwijken van de werkelijke situatie. Aan deze informatie kunnen geen rechten worden ontleend.

Features