Description

Ruyschstraat 71-3, Amsterdam

Wonen op hoog niveau in Amsterdam-Oost: dit royale en perfect ingedeelde dubbel bovenhuis van ca. 124 m², gelegen op eigen grond, beschikt over een fantastisch, zonovergoten dakterras van circa 42 m² én een energielabel A. Een unieke combinatie van ruimte, licht en buitenleven midden in de stad. De woning is in 2011 vernieuwd en biedt daarmee hedendaags comfort in een karakteristieke setting.

Indeling

Tweede verdieping
Via het gemeenschappelijke trappenhuis bereikt u de entree op de tweede verdieping. Hier bevindt zich een hal met garderobemogelijkheid en de trap naar de woonverdieping.

Derde verdieping
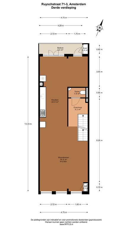
De derde verdieping vormt het hart van de woning: een prachtige, royale open woonruimte met hoge plafonds en een warme houten vloer. Dankzij de open indeling en de grote raampartijen ontstaat een bijzonder lichte en uitnodigende leefruimte. Op de overloop bevindt zich een separaat toilet.

De keuken is centraal opgesteld en voorzien van diverse inbouwapparatuur en een losstaande koelkast, waardoor functionaliteit en flexibiliteit samenkomen. Aan de achterzijde bevindt zich een heerlijk ruim eetgedeelte, met volop plek voor een grote eettafel — dé ideale plek voor lange diners en gezellige avonden met familie en vrienden. Tevens is er toegang tot het balkon aan de achterzijde.

Vierde verdieping
Via de trap bereikt u de bovenste woonlaag. Deze verdieping is momenteel ingedeeld met twee slaapkamers, een tussenkamer en een badkamer. De tussenkamer leent zich uitstekend als werkruimte, inloopkast of extra slaapkamer.

Op de overloop treft u een separaat toilet en bevinden zich tevens de aansluitingen voor wasmachine en droger. Daarnaast is er een praktische ruimte die gebruikt kan worden als berging of technische ruimte.

De indeling biedt daarnaast uitstekende mogelijkheden om de verdieping verder te optimaliseren en hier drie volwaardige slaapkamers te realiseren.

Via deze verdieping bereikt u het ruime dakterras, waar u de gehele dag van de zon kunt genieten.

Vereniging van Eigenaars
De woning maakt deel uit van een kleine VvE, ontstaan bij de splitsing in 2011. De VvE wordt professioneel beheerd.

Omgeving
De woning is gelegen op een zeer gewilde locatie in Amsterdam-Oost, op loopafstand van het Oosterpark en de Amstel. In de directe omgeving vindt u een breed aanbod aan gezellige cafés en restaurants zoals De Ysbreeker, Hesp, Café Loetje Oost en Bar Bukowski, evenals diverse koffietentjes en eetgelegenheden rond het Beukenplein en de Wibautstraat.

Voor de dagelijkse boodschappen zijn er meerdere supermarkten en speciaalzaken in de buurt.

De bereikbaarheid is uitstekend: diverse tram- en bushaltes (o.a. tram 3 en 7) bevinden zich op loopafstand en metrostation Wibautstraat ligt op enkele minuten afstand, met directe verbindingen naar onder andere het centrum, Amstelstation en de Zuidas. Ook het Amstelstation is snel bereikbaar. Met de auto bent u via de Wibautstraat en Gooiseweg binnen korte tijd op de Ring A10.

Bijzonderheden
- Woonoppervlakte ca. 124 m²;
- Gelegen op eigen grond;
- Energielabel A;
- Groot dakterras van ca. 42 m²;
- Balkon aan de achterzijde;
- Gesplitst en vernieuwd in 2011;
- Mogelijkheid tot 3 volwaardige slaapkamers;
- Kleinschalige VVE met een professionele beheerder, maandelijkse bijdragen is circa € 211,-
- Aanvaarding in overleg
- In de koopakte zal ouderdomsclausule en een niet-zelfbewonignsclausule worden opgenomen;

Deze informatie is door ons met de nodige zorgvuldigheid samengesteld. Onzerzijds wordt echter geen enkele aansprakelijkheid aanvaard voor enige onvolledigheid, onjuistheid of anderszins, dan wel de gevolgen daarvan. Alle opgegeven maten en oppervlakten zijn indicatief. Koper heeft zijn eigen onderzoek plicht naar alle zaken die voor hem of haar van belang zijn. Met betrekking tot deze woning is de makelaar adviseur van verkoper. Wij adviseren u een deskundige (NVM-)makelaar in te schakelen die u begeleidt bij het aankoopproces. Indien u specifieke wensen heeft omtrent de woning, adviseren wij u deze tijdig kenbaar te maken aan uw aankopend makelaar en hiernaar zelfstandig onderzoek te (laten) doen. Indien u geen deskundige vertegenwoordiger inschakelt, acht u zich volgens de wet deskundige genoeg om alle zaken die van belang zijn te kunnen overzien. Van toepassing zijn de NVM voorwaarden.

----------------------------------------------------------------------------------------------------------------------------------------------------------------------------------------------------------------------------------------------------------------------------------------------

Ruyschstraat 71-3, Amsterdam

Living at a high level in Amsterdam East: this spacious and perfectly laid-out double upper house of approx. 124 m², situated on freehold land, features a fantastic sun-drenched roof terrace of approximately 42 m² and an energy label A. A unique combination of space, light, and outdoor living in the heart of the city. The property was renovated in 2011 and offers modern comfort within a characteristic setting.

Layout

Second floor
Accessed via the communal staircase, the entrance to the apartment is located on the second floor. Here you will find a hall with space for a wardrobe and stairs leading to the main living level.

Third floor
The third floor forms the heart of the home: a beautiful, spacious open-plan living area with high ceilings and a warm wooden floor. Thanks to the open layout and large windows, the space feels exceptionally bright and inviting. A separate toilet is located on the landing.

The centrally positioned kitchen is equipped with various built-in appliances and a freestanding refrigerator, combining functionality and flexibility. At the rear, you will find a generous dining area with ample space for a large dining table — the perfect setting for long dinners and entertaining family and friends. From here, there is also access to the rear balcony.

Fourth floor
Via the staircase, you reach the top floor. This level is currently arranged with two bedrooms, an intermediate room, and a bathroom. The intermediate room is ideal as a home office, walk-in closet, or additional bedroom.

On the landing, there is a separate toilet and connections for a washing machine and dryer. Additionally, there is a practical space that can be used as storage or a technical room.

This floor also offers excellent potential to reconfigure the layout and create three full-sized bedrooms.

From this level, you have access to the spacious roof terrace, where you can enjoy the sun throughout the day.

Homeowners’ Association (VvE)
The property is part of a small homeowners’ association. The association is professionally managed.

Location
The apartment is situated in a highly sought-after location in Amsterdam East, within walking distance of the Oosterpark and the Amstel River.

The immediate area offers a wide range of lively cafés and restaurants such as De Ysbreeker, Hesp, Café Loetje Oost, and Bar Bukowski, as well as numerous coffee spots and eateries around Beukenplein and Wibautstraat.

For daily groceries, several supermarkets and specialty stores are located nearby.

Accessibility is excellent: multiple tram and bus stops (including tram lines 3 and 7) are within walking distance, and Wibautstraat metro station is just minutes away, offering direct connections to the city center, Amstel Station, and the Zuidas business district. Amstel Station is also easily reachable. By car, you can access the A10 ring road within minutes via Wibautstraat and Gooiseweg.

Key features
- Living area approx. 124 m²
- Freehold property (no ground lease)
- Energy label A
- Large roof terrace of approx. 42 m²
- Balcony at the rear
- Split and renovated in 2011
- Possibility to create 3 full-sized bedrooms
- Small-scale HOA, professionally managed, monthly contribution approx. €211
- Transfer date in consultation
- The purchase agreement will include an age clause and a non-occupancy clause

Disclaimer
This information has been compiled with due care. However, we do not accept any liability for any inaccuracies, incompleteness, or otherwise, nor for the consequences thereof. All stated measurements and surface areas are indicative. The buyer has a duty to conduct their own investigation into all matters that may be of importance. With regard to this property, the real estate agent acts as an advisor to the seller. We recommend engaging a qualified (NVM) real estate agent to assist you during the purchasing process. If you have specific requirements regarding the property, we advise you to communicate these in a timely manner to your purchasing agent and to carry out (or have carried out) your own independent investigations. If you choose not to engage a professional representative, you declare yourself sufficiently knowledgeable to oversee all relevant matters. NVM terms and conditions apply.

Features