Description
NIEUW IN DE VERKOOP-
In één van de meest geliefde buurten van Amsterdam bevindt zich deze charmante en slim ingedeelde woning aan de Pieter Vlamingstraat 36-2. Een ideale combinatie van comfortabel wonen en het beste dat de stad te bieden heeft binnen handbereik.
Indeling
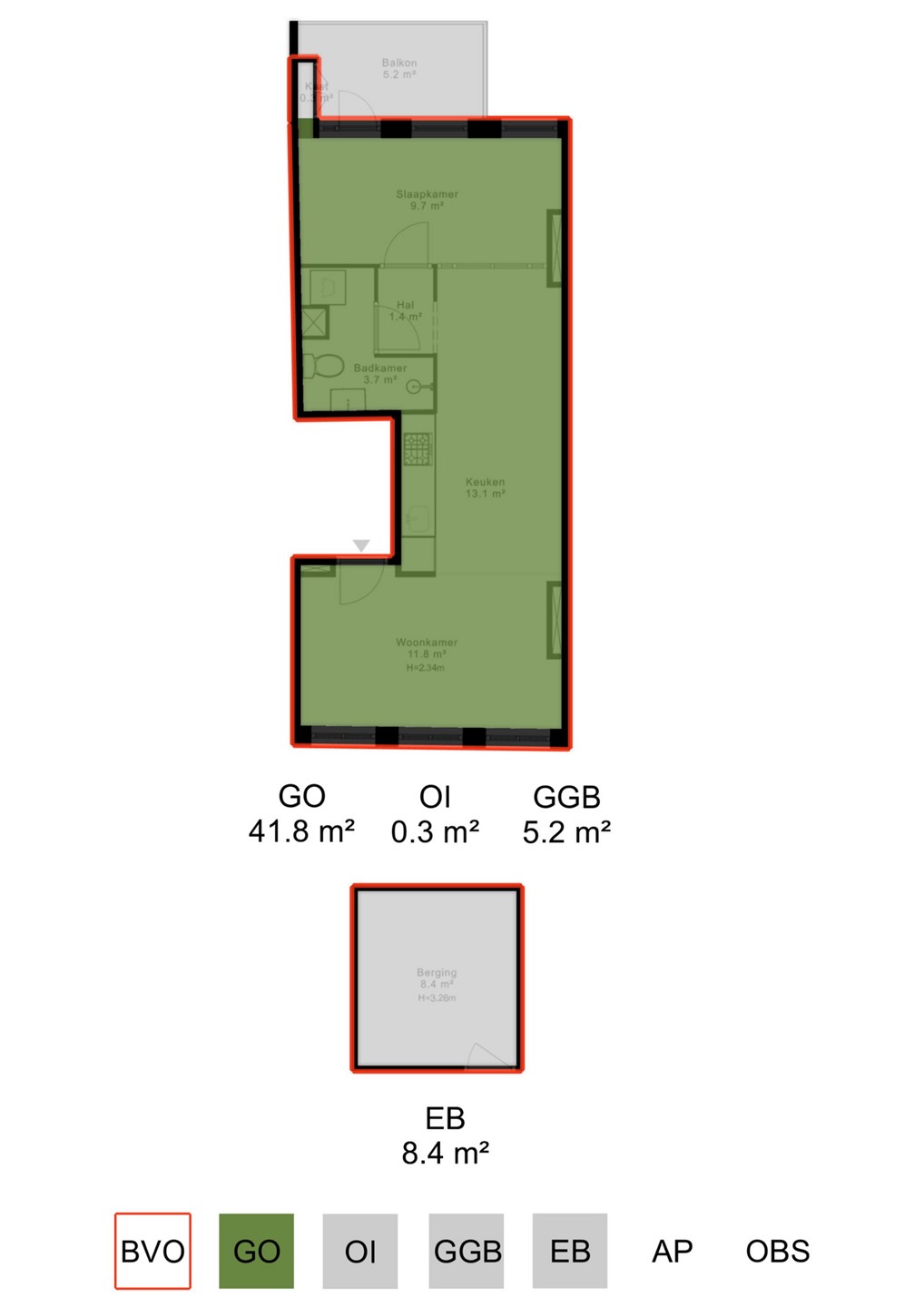
Bij binnenkomst wordt u direct verwelkomd in de lichte woonkamer, een fijne leefruimte met een open en gezellige sfeer. Dankzij de slimme indeling is er volop ruimte voor een comfortabele zithoek waar u heerlijk kunt ontspannen. De vele raampartijen zorgen niet alleen voor een prachtige lichtinval, maar bieden ook een mooi uitzicht op het water, wat een extra gevoel van rust en ruimte geeft. Aansluitend bevindt zich de open keuken, die functioneel is ingericht met genoeg ruimte voor een brede eettafel. Dit maakt de woning perfect voor gezellige diners, borrels met vrienden of ontspannen avonden thuis.
Via de centrale hal bereikt u de badkamer, voorzien van een toilet, wastafel en douche. De woning beschikt daarnaast over een rustige slaapkamer aan de achterzijde, een fijne plek om u terug te trekken en te genieten van privacy en comfort. Vanuit de slaapkamer heeft u directe toegang tot het balkon, een prettige buitenruimte van 5 m2,op het zuiden!
Op de zolder beschikt u ook over een externe berging van 8 m2!
Locatie
De locatie maakt deze woning extra aantrekkelijk. Op loopafstand ligt het prachtige Oosterpark,waar u heerlijk kunt wandelen, sporten of ontspannen op een zonnige dag. Het park biedt volop ruimte voor recreatie en is een populaire plek voor buurtbewoners om samen te komen.
Ook de bekende Dappermarkt, één van de meest bruisende en geliefde markten van Amsterdam, bevindt zich om de hoek. Hier kunt u dagelijks terecht voor verse producten, bloemen, delicatessen en een gezellige sfeer. Daarnaast ligt ook het winkelgebied rondom de Eerste van Swindenstraat dichtbij, met diverse supermarkten, speciaalzaken en praktische voorzieningen voor de dagelijkse boodschappen.
Amsterdam-Oost staat bekend om zijn levendige karakter en creatieve energie. In de directe omgeving vindt u een ruim aanbod aan gezellige cafés, hippe koffietentjes en uitstekende restaurants. Van trendy hotspots tot authentieke eetcafés: de buurt biedt voor ieder wat wils. Ook culturele locaties zoals het Tropenmuseum en het Oosterpark-theater liggen op korte afstand, waardoor u volop kunt genieten van alles wat de stad te bieden heeft.
Ook de bereikbaarheid is uitstekend. Diverse tram- en busverbindingen bevinden zich op korte afstand en station Amsterdam Muiderpoort is snel bereikbaar. Met de fiets bent u binnen enkele minuten in het centrum van de stad of in de gezellige Plantagebuurt. Daarnaast zijn de uitvalswegen richting de Ring A10 goed toegankelijk, waardoor u ook met de auto snel de stad in en uit rijdt.
Vereniging van eigenaren
De Vereniging van Eigenaren bestaat uit de huisnummers 28 tot en met 36 aan de Pieter Vlamingstraat en wordt beheerd door VvE Beheer Amsterdam. Er is een meerjarenonderhoudsplan (MJOP) aanwezig. De servicekosten bedragen €194,92 per maand.
Erfpacht
De woning is gelegen op gemeentelijke erfpachtgrond. De erfpacht is afgekocht tot en met 2058 en er is reeds overgestapt naar eeuwigdurende erfpacht.
UITGANGSPUNTEN
- Vraagprijs €400.000 kosten koper;
- Oppervlakte 42 m2 (NEN 2580 ingemeten);
- Groot balkon aan de achterzijde, op het zuiden;
- Energielabel A;
- Gezonde vereniging van eigenaren;
- Externe Berging van 8 m2;
- Oplevering in overleg, kan snel;
- Gelegen op erfpacht grond;
- Servicekosten €194,92 per maand;
- Notaris keuze koper, binnen de ring van Amsterdam;
Voor inlichtingen of het maken van een afspraak voor een bezichtiging:
Visch & van Zeggelaar Amsterdam 020 - 20 91 911
Deze informatie is door ons met de nodige zorgvuldigheid samengesteld. Onzerzijds wordt echter geen enkele aansprakelijkheid aanvaard voor enige onvolledigheid, onjuistheid of anderszins, dan wel de gevolgen daarvan. Alle opgegeven maten en oppervlakten zijn indicatief. Koper heeft zijn eigen onderzoek plicht naar alle zaken die voor hem of haar van belang zijn. Met betrekking tot deze woning is de makelaar adviseur van verkoper. Wij adviseren u een deskundige (NVM-)makelaar in te schakelen die u begeleidt bij het aankoopproces. Indien u specifieke wensen heeft omtrent de woning, adviseren wij u deze tijdig kenbaar te maken aan uw aankopend makelaar en hiernaar zelfstandig onderzoek te (laten) doen. Indien u geen deskundige vertegenwoordiger inschakelt, acht u zich volgens de wet deskundige genoeg om alle zaken die van belang zijn te kunnen overzien. Van toepassing zijn de NVM voorwaarden.
------------------------------------------------------------------------------------------------------------------------------------------
NEW FOR SALE –
Located in one of Amsterdam’s most beloved neighbourhoods, this charming and cleverly laid-out apartment can be found at Pieter Vlamingstraat 36-2. An ideal combination of comfortable living with everything the city has to offer within easy reach.
Layout
Upon entering, you are immediately welcomed into the bright living room — a pleasant living space with an open and inviting atmosphere. Thanks to the smart layout, there is ample room for a comfortable seating area where you can truly relax. The many windows not only provide wonderful natural light, but also offer a beautiful view over the water, creating an extra sense of peace and space.
Adjacent to the living room is the open kitchen, which is functionally designed and offers enough space for a large dining table. This makes the apartment perfect for cosy dinners, drinks with friends, or relaxed evenings at home.
Through the central hallway, you reach the bathroom, which is fitted with a toilet, washbasin, and shower.
The apartment also features a quiet bedroom at the rear — a wonderful place to retreat and enjoy privacy and comfort. From the bedroom, you have direct access to the balcony: a pleasant outdoor space of 5 m², south-facing.
On the top floor, there is also an external storage unit of approximately 8 m².
Location
The location makes this apartment especially attractive. Within walking distance you will find the beautiful Oosterpark, perfect for walking, exercising, or relaxing on a sunny day. The park offers plenty of space for recreation and is a popular gathering place for local residents.
Just around the corner is the well-known Dappermarkt, one of Amsterdam’s most vibrant and beloved markets. Here you can shop daily for fresh produce, flowers, delicacies, and enjoy the lively atmosphere.
The shopping area around Eerste van Swindenstraat is also nearby, offering supermarkets, speciality shops, and all practical amenities for daily groceries.
Amsterdam-Oost is known for its lively character and creative energy. In the immediate surroundings you will find a wide range of cosy cafés, trendy coffee spots, and excellent restaurants. From fashionable hotspots to authentic local eateries, the neighbourhood truly has something for everyone.
Cultural venues such as the Tropenmuseum and the Oosterpark Theatre are also close by, allowing you to fully enjoy everything the city has to offer.
Accessibility is excellent as well. Several tram and bus connections are within short distance, and Amsterdam Muiderpoort Station can be reached quickly. By bike, you are within minutes of the city centre or the charming Plantage district. The main roads leading to the A10 ring road are easily accessible, making it convenient to travel in and out of the city by car.
Homeowners’ Association (VvE)
The Homeowners’ Association consists of house numbers 28 through 36 on Pieter Vlamingstraat and is professionally managed by VvE Beheer Amsterdam. A multi-year maintenance plan (MJOP) is available. The service charges amount to €194.92 per month.
Leasehold (Erfpacht)
The apartment is situated on municipal leasehold land. The leasehold has been paid off until 2058, and the property has already been converted to perpetual leasehold.
Key Features
- Asking price: €400,000 (costs buyer)
- Living area: 42 m² (measured according to NEN 2580)
- Large south-facing balcony at the rear
- Energy label: A
- Healthy and professionally managed homeowners’ association
- External storage unit of 8 m²
- Delivery in consultation, quick transfer possible
- Located on leasehold land
- Monthly service charges: €194.92
- Buyer’s choice of notary (within the Amsterdam ring road)
Voor inlichtingen of het maken van een afspraak voor een bezichtiging:
Visch & van Zeggelaar Amsterdam 020 - 20 91 911
Deze informatie is door ons met de nodige zorgvuldigheid samengesteld. Onzerzijds wordt echter geen enkele aansprakelijkheid aanvaard voor enige onvolledigheid, onjuistheid of anderszins, dan wel de gevolgen daarvan. Alle opgegeven maten en oppervlakten zijn indicatief. Koper heeft zijn eigen onderzoek plicht naar alle zaken die voor hem of haar van belang zijn. Met betrekking tot deze woning is de makelaar adviseur van verkoper. Wij adviseren u een deskundige (NVM-)makelaar in te schakelen die u begeleidt bij het aankoopproces. Indien u specifieke wensen heeft omtrent de woning, adviseren wij u deze tijdig kenbaar te maken aan uw aankopend makelaar en hiernaar zelfstandig onderzoek te (laten) doen. Indien u geen deskundige vertegenwoordiger inschakelt, acht u zich volgens de wet deskundige genoeg om alle zaken die van belang zijn te kunnen overzien. Van toepassing zijn de NVM voorwaarden.