Description

Royaal appartement van ca. 124 m² mét woningdelersvergunning, eigen parkeerplaats en eeuwigdurend afgekochte erfpacht, gelegen op de 7e verdieping aan de Nachtwachtlaan in Amsterdam. Een bijzonder licht en ruim appartement met drie slaapkamers, een aparte werkkamer en een zonnig balkon op het zuiden.

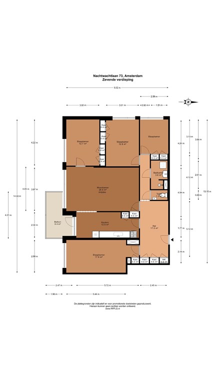
Indeling
Via de nette gemeenschappelijke entree bereik je per lift of trap de 7e verdieping, waar dit zeer ruime appartement is gelegen. Bij binnenkomst kom je in de royale hal, die toegang biedt tot vrijwel alle vertrekken en direct de prettige maatvoering van de woning laat ervaren.

De lichte en ruime woonkamer vormt het hart van het appartement en biedt volop ruimte voor een comfortabele zithoek en eethoek. Grote raampartijen zorgen voor veel daglicht en een aangename sfeer. Vanuit de woonkamer is er toegang tot het zonnige balkon op het zuiden, een fijne plek om gedurende de dag van de zon te genieten.

De keuken is praktisch ingericht en bevindt zich in directe verbinding met de woonruimte, ideaal voor zowel dagelijks gebruik als het ontvangen van gasten.

Het appartement beschikt over drie volwaardige slaapkamers, allen van goed formaat en flexibel in te richten. Daarnaast is er een aparte werkkamer, perfect voor thuiswerken, studeren of als extra hobbyruimte.

De badkamer is functioneel en compleet uitgevoerd en voorzien van een inloopdouche, een wastafel en een aansluiting voor wasmachine. Het toilet is separaat en centraal in de woning gesitueerd.

Woningdelersvergunning
Voor de woning is door de Gemeente Amsterdam een woningdelersvergunning afgegeven voor maximaal vier zelfstandige woonruimtes.

Erfpacht
De erfpacht is eeuwigdurend afgekocht, wat betekent dat er nooit meer erfpachtcanon verschuldigd zal zijn. Dit biedt maximale zekerheid voor de toekomst.

Verbouwingsmogelijkheden
De woning biedt uitstekende mogelijkheden om geheel naar eigen wens te worden verbouwd en ingericht. Denk aan het optimaliseren van de indeling, het creëren van extra ruimte of het aanpassen aan moderne woonwensen. Tijdens de bezichtigingen laten wij graag zien welke kansen dit appartement biedt en hoe het maximale uit de ruimte kan worden gehaald.

Bergingen en parkeerplaats
Het appartement beschikt over twee bergingen: Een berging op de verdieping van circa 2 m², direct naast de lift – ideaal voor spullen die je snel bij de hand wilt hebben.
Een ruime privéberging op de begane grond verdieping van circa 6 m², uitstekend bereikbaar met de fiets.
Daarnaast hoort bij de woning een eigen parkeerplaats in de afgesloten parkeergarage – een groot pluspunt op deze centrale locatie.

Een groene oase in de stad
Wonen aan de Nachtwachtlaan betekent wonen in het groen, direct aan het geliefde Rembrandtpark. Hier kun je hardlopen, wandelen, picknicken, of gewoon even ontsnappen aan de drukte van de stad. De kinderboerderij is een fijne plek voor jonge gezinnen, en ’s zomers wordt er volop gebarbecued en genoten. De ligging is daarnaast super centraal: winkels op loopafstand, Station Lelylaan om de hoek en met 10 minuten fiets je naar het centrum van Amsterdam. Met de auto zit je zó op de A10, en Schiphol of de Zuidas zijn snel bereikbaar met het openbaar vervoer. 

Algemene informatie:
- Ca. 124 m² woonoppervlakte;
- Woningdelersvergunning aanwezig;
- Gelegen op de 7e verdieping;
- 3 slaapkamers + aparte werkkamer;
- Zonnig balkon op het zuiden;
- 2 bergingen;
- Eigen parkeerplaats;
- Eeuwigdurend afgekochte erfpacht;
- Energielabel B;
- Actieve VvE, professioneel beheerd (€ 368,14 per maand incl. parkeerplaats), dit is exclusief voorschot stookkosten van € 145,- per maand;
- Verwarming en warm water via blokverwarming
- In de koopakte zal een ouderdoms-, niet-bewonings- en asbestclausule worden opgenomen;
- Aanvaarding in overleg

Voor inlichtingen of het maken van een afspraak voor een bezichtiging:

Visch & van Zeggelaar Amsterdam 020 - 20 91 911

Deze informatie is door ons met de nodige zorgvuldigheid samengesteld. Onzerzijds wordt echter geen enkele aansprakelijkheid aanvaard voor enige onvolledigheid, onjuistheid of anderszins, dan wel de gevolgen daarvan. Alle opgegeven maten en oppervlakten zijn indicatief. Koper heeft zijn eigen onderzoek plicht naar alle zaken die voor hem of haar van belang zijn. Met betrekking tot deze woning is de makelaar adviseur van verkoper. Wij adviseren u een deskundige (NVM-)makelaar in te schakelen die u begeleidt bij het aankoopproces. Indien u specifieke wensen heeft omtrent de woning, adviseren wij u deze tijdig kenbaar te maken aan uw aankopend makelaar en hiernaar zelfstandig onderzoek te (laten) doen. Indien u geen deskundige vertegenwoordiger inschakelt, acht u zich volgens de wet deskundige genoeg om alle zaken die van belang zijn te kunnen overzien. Van toepassing zijn de NVM voorwaarden.
-------------------------------------------------------------------------------------------------------------------------------------------------------------------

Spacious apartment of approx. 124 m² with a house-sharing permit for up to four non-self-contained living units, a private parking space and perpetually prepaid ground lease, located on the 7th floor on Nachtwachtlaan in Amsterdam. A particularly bright and generously proportioned apartment featuring three bedrooms, a separate home office and a sunny south-facing balcony.

Layout
Via the well-maintained communal entrance, the apartment can be reached by lift or stairs to the 7th floor, where this very spacious home is located. Upon entering, you arrive in the generous hallway, which provides access to nearly all rooms and immediately highlights the pleasant dimensions of the apartment.

The bright and spacious living room forms the heart of the apartment and offers ample space for both a comfortable seating area and a dining area. Large windows provide plenty of natural light and create a pleasant atmosphere. From the living room there is access to the sunny south-facing balcony, an ideal spot to enjoy the sun throughout the day.

The kitchen is practically designed and directly connected to the living area, making it ideal for everyday use as well as entertaining guests.
The apartment features three well-sized bedrooms, all flexible in layout and use. In addition, there is a separate home office, perfect for working from home, studying or as a hobby room.
The bathroom is functional and fully equipped with a walk-in shower, washbasin, and washing machine connection. The toilet is separate and centrally located within the apartment.

House-Sharing Permit
A house-sharing permit has been issued for the property by the Municipality of Amsterdam, allowing for a maximum of four non-self-contained living units.

Ground Lease
The ground lease has been perpetually prepaid, meaning that no further ground rent will ever be payable. This offers long-term certainty and peace of mind.

Renovation Opportunities
The apartment offers excellent opportunities for renovation and customization to suit individual preferences. Possibilities include optimizing the layout, creating additional space or adapting the apartment to modern living standards. During viewings, we are happy to demonstrate the potential of this apartment and show how the space can be used to its fullest.

Storage Rooms and Parking
The apartment includes two private storage rooms:
- A storage room of approx. 2 m² on the same floor, located directly next to the lift – ideal for items you want to have close at hand.
- A spacious private storage room of approx. 6 m² on the ground floor, easily accessible by bicycle.

In addition, the apartment comes with a private parking space in the secured underground parking garage – a major advantage at this central location.

A Green Oasis in the City
Living on Nachtwachtlaan means living surrounded by greenery, directly adjacent to the popular Rembrandt Park. Here you can enjoy running, walking, picnicking or simply escaping the bustle of the city. The nearby petting zoo is a lovely feature for young families, and in summer the park is a popular spot for barbecues and relaxation.
The location is also highly convenient: shops are within walking distance, Lelylaan Station is just around the corner, and the city centre can be reached by bike within 10 minutes. By car, you are quickly on the A10 ring road, and both Schiphol Airport and the Zuidas business district are easily accessible by public transport.

General Information
- Approx. 124 m² living area;
- House-sharing permit available;
- Located on the 7th floor;
- 3 bedrooms + separate home office;
- Sunny south-facing balcony;
- 2 storage rooms;
- Private parking space;
- Perpetually prepaid ground lease;
- Energy label B;
- Active and professionally managed Homeowners’ Association (VvE), monthly contribution €368.14 including parking space (excluding advance payment for heating costs of €145 per month);
- Heating and hot water via block heating;
- An age clause, non-occupancy clause and asbestos clause will be included in the deed of sale;
- Transfer date in consultation.

For further information or to schedule a viewing:

Visch & Van Zeggelaar Amsterdam
Tel: +31 (0)20 209 1911

This information has been compiled with due care. However, no liability is accepted for any incompleteness, inaccuracies or the consequences thereof. All measurements and surface areas are indicative. The buyer has an obligation to conduct their own investigation into all matters that are important to them. With regard to this property, the estate agent acts as advisor to the seller. We recommend engaging a qualified (NVM) purchasing agent to guide you through the purchasing process. If you have specific requirements regarding the property, we advise you to communicate these in a timely manner to your purchasing agent and to carry out (or have carried out) independent investigations. If you do not engage a professional representative, you are deemed by law to be sufficiently knowledgeable to oversee all relevant matters. The NVM conditions apply.

Features