Description
Instapklaar hoek appartement met twee balkons in Slotermeer
Welkom aan de Lex Althoffstraat 1-2 waar licht, comfort en modern woongemak samenkomen met de rust van het groene Slotermeer in Amsterdam-Nieuw-West. Dit verzorgde en instapklare appartement op de derde verdieping biedt alles wat je zoekt: twee balkons (met ochtend- én avondzon), een moderne keuken en badkamer, een eigen berging en het grote voordeel van eeuwigdurend afgekochte erfpacht. Gelegen in een prettige, groene omgeving met alle voorzieningen binnen handbereik, is dit de perfecte uitvalsbasis in Amsterdam-Nieuw-West.
Lichte woonkamer met balkon op het westen
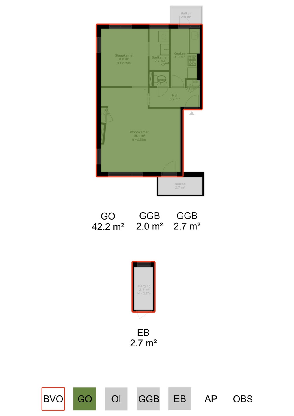
De woonkamer van circa 19 m² ligt aan de voorzijde van het appartement en is heerlijk licht door de grote ramen rondom en de ligging op het westen. Hier geniet je volop van de middag- en avondzon; een perfecte plek om de dag af te sluiten met een drankje in de zon.
Aparte slaapkamer met vernieuwde badkamer
De woning beschikt over een aparte slaapkamer aan de rustige achterzijde en biedt toegang tot de aangrenzende badkamer. De badkamer, deels vernieuwd in 2019, is voorzien van een inloopdouche, modern wastafelmeubel en wasmachineaansluiting. Het toilet bevindt zich apart van de badkamer.
Moderne keuken
Aan de achterzijde bevindt zich de moderne keuken (vernieuwd in 2017), voorzien van inbouwapparatuur zoals een kookplaat, oven, afzuigkap, vaatwasser en koelkast met vriesvak. Vanuit de keuken heb je toegang tot het tweede balkon, gelegen op het oosten; perfect om in de ochtendzon van een kop koffie te genieten.
Goed onderhouden en direct te betrekken
Het appartement is netjes afgewerkt en direct te betrekken. De CV-installatie betreft een huurketel van Feenstra (€ 36,15 per maand) en in de onderbouw bevindt zich een eigen berging, ideaal voor fietsen en extra opslagruimte.
Een groot pluspunt: de erfpacht is eeuwigdurend afgekocht – dus geen erfpachtkosten meer in de toekomst!
De omgeving
De Lex Althoffstraat ligt in het rustige en groene Slotermeer. Een buurt met brede straten, veel bomen en een ontspannen sfeer. In de directe omgeving vind je diverse winkels, supermarkten en voorzieningen, onder meer aan Plein ’40-’45 en de Burgemeester de Vlugtlaan. Voor ontspanning in het groen zijn het Gerbrandypark en het Sloterpark met de Sloterplas dichtbij.
De bereikbaarheid is uitstekend: meerdere bus- en tramverbindingen liggen op loopafstand, Station Sloterdijk is snel bereikbaar en via de A10 en A5 ben je binnen enkele minuten de stad uit.
Kortom
Een heerlijk instapklaar appartement met twee balkons, moderne voorzieningen, een eigen berging en eeuwigdurend afgekochte erfpacht. Dit gelegen op een rustige, goed bereikbare locatie in Amsterdam-Nieuw-West.
VVE
De Vereniging van Eigenaren wordt professioneel beheerd door Alliantie VvE Diensten. In 2023 is een Meerjarenonderhoudsplan (MJOP) opgesteld dat de basis vormt voor het behoud van de kwaliteit van het gebouw en waarin ook maatregelen voor verduurzaming zijn opgenomen. Het doel hiervan is om het gebouw toekomstbestendig te maken, wat zal bijdragen aan het behoud en de versterking van de waarde van de woningen. Om deze werkzaamheden te kunnen uitvoeren, wordt de VvE-bijdrage het komende jaar tijdelijk verhoogd.
Voor meer informatie verwijzen wij naar het MJOP.
Algemene informatie:
- Woonoppervlakte circa 42 m2;
- Erfpacht is eeuwigdurend afgekocht;
- Eigen berging in de onderbouw;
- 2 balkons, gelegen op het oosten en westen;
- Nieuwe keuken in 2017;
- Instapklare en leuke starterswoning;
- In de koopakte zal een asbestclausule en ouderdomsclausule worden opgenomen;
- Aanvaarding in overleg
Deze informatie is door ons met de nodige zorgvuldigheid samengesteld. Onzerzijds wordt echter geen enkele aansprakelijkheid aanvaard voor enige onvolledigheid, onjuistheid of anderszins, dan wel de gevolgen daarvan. Alle opgegeven maten en oppervlakten zijn indicatief. Koper heeft zijn eigen onderzoek plicht naar alle zaken die voor hem of haar van belang zijn. Met betrekking tot deze woning is de makelaar adviseur van verkoper. Wij adviseren u een deskundige (NVM-)makelaar in te schakelen die u begeleidt bij het aankoopproces. Indien u specifieke wensen heeft omtrent de woning, adviseren wij u deze tijdig kenbaar te maken aan uw aankopend makelaar en hiernaar zelfstandig onderzoek te (laten) doen. Indien u geen deskundige vertegenwoordiger inschakelt, acht u zich volgens de wet deskundige genoeg om alle zaken die van belang zijn te kunnen overzien. Van toepassing zijn de NVM voorwaarden.
--------------------------------------------------------------------------------------------------------------------------------------------------------------
Move-in Ready Corner Apartment with Two Balconies in Slotermeer
Welcome to Lex Althoffstraat 1-2, where light, comfort and modern convenience meet the tranquility of green Slotermeer in Amsterdam Nieuw-West.
This well-maintained, move-in ready apartment on the third floor offers everything you’re looking for: two balconies (enjoy both morning and evening sun), a modern kitchen and bathroom, a private storage unit, and the major advantage of perpetually redeemed ground lease.
Located in a pleasant, green area with all amenities within easy reach, this is the perfect base in Amsterdam Nieuw-West.
Bright Living Room with West-Facing Balcony
The living room of approximately 19 m² is situated at the front of the apartment and is wonderfully bright thanks to the large surrounding windows and its west-facing orientation. Here you can enjoy plenty of afternoon and evening sun — the perfect place to end the day with a drink in the sun.
Separate Bedroom with Renovated Bathroom
The apartment features a separate bedroom at the quiet rear side, with direct access to the adjoining bathroom. The bathroom, partly renovated in 2019, includes a walk-in shower, modern washbasin unit and washing machine connection. The toilet is located separately from the bathroom.
Modern Kitchen
At the rear you’ll find the modern kitchen (renewed in 2017), equipped with built-in appliances including a hob, oven, extractor, dishwasher and fridge with freezer compartment. From the kitchen, you have access to the second balcony, facing east — ideal for enjoying your morning coffee in the sunshine.
Well-Maintained and Ready to Move In
The apartment is neatly finished and ready for immediate occupation. The central heating system is a rental unit from Feenstra (€ 36.15 per month). In the basement there is a private storage room, perfect for bicycles and extra storage.
A major advantage: the ground lease has been perpetually redeemed — meaning no future ground rent payments!
The Surroundings
Lex Althoffstraat is located in the quiet and green neighborhood of Slotermeer — a residential area with wide streets, many trees, and a relaxed atmosphere. In the immediate vicinity you’ll find various shops, supermarkets and amenities, including those at Plein ’40-’45 and Burgemeester de Vlugtlaan.
For relaxation in nature, Gerbrandypark and Sloterpark with the Sloterplas are nearby.
Accessibility is excellent: multiple bus and tram connections are within walking distance, Station Sloterdijk is quickly reached, and with the A10 and A5 motorways nearby, you can leave the city within minutes.
In Summary
A lovely, move-in ready apartment featuring two balconies, modern facilities, a private storage unit, and perpetually redeemed ground lease — all located in a quiet yet easily accessible part of Amsterdam Nieuw-West.
Homeowners’ Association (VvE)
The Homeowners’ Association is professionally managed by Alliantie VvE Diensten. In 2023, a Long-Term Maintenance Plan (MJOP) was drawn up, forming the basis for maintaining the quality of the building and including measures aimed at sustainability.
The goal of these efforts is to make the building future-proof, contributing to the preservation and enhancement of the property’s value.
To enable these works, the VvE contribution will be temporarily increased in the coming year.
For more detailed information, please refer to the MJOP.
General Information
- Living area: approx. 42 m²
- Ground lease perpetually redeemed
- Private storage room in the basement
- Two balconies, facing east and west
- New kitchen (2017)
- Move-in ready starter home
- Asbestos and age clauses will be included in the purchase agreement
- Transfer in consultation
Disclaimer
This information has been compiled by us with the utmost care. However, no liability is accepted by us for any incompleteness, inaccuracies, or otherwise, nor for the consequences thereof. All stated measurements and surface areas are indicative.
The buyer has a duty to conduct his or her own investigation into all matters that are important to him or her. With regard to this property, the real estate agent acts as the seller’s representative. We recommend that you engage a qualified (NVM) real estate agent to assist you during the purchase process.
If you have specific wishes regarding the property, we advise you to communicate these to your purchasing agent in good time and to (have them) independently verified. If you choose not to engage a professional representative, you are considered by law to be sufficiently knowledgeable to oversee all matters of importance.
The NVM terms and conditions apply.