Description
Instapklare benedenwoning met uitgebouwde woonkamer en zonnige tuin op het westen!
Welkom aan de Kijkduinstraat 87-H in Amsterdam! Deze sfeervolle benedenwoning is in 2022 volledig gerenoveerd én aan de achterzijde maar liefst vier meter uitgebouwd. Het resultaat is een modern, instapklaar appartement met een fraai aangelegde tuin op het westen, waar je na een dag werken heerlijk kunt ontspannen en genieten van de middag- en avondzon.
Indeling
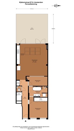
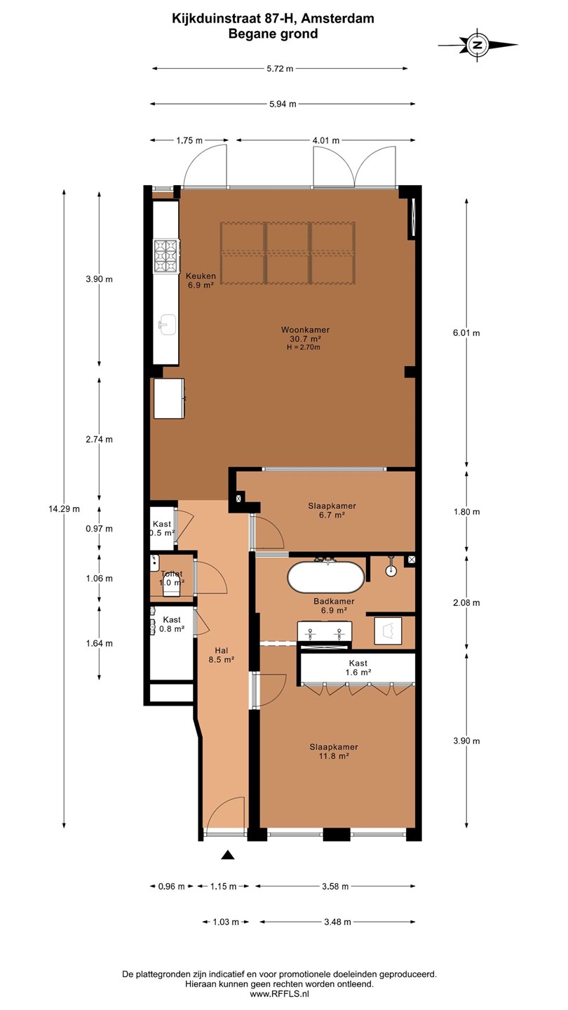
Bij binnenkomst via de eigen entree aan de voorzijde kom je in de ruime hal. Vanuit hier heb je toegang tot alle vertrekken. Aan de voorzijde bevindt zich de grote slaapkamer. Deze kamer is gelegen aan de rustige straatzijde en voorzien van ingebouwde spots en een geeft genoeg ruimte voor een kledingkast, en een groot 2-persoonsbed. Het geheel voelt ruim aan en is keurig afgewerkt. De tweede slaapkamer is ideaal als kinder-, logeer- of werkkamer te gebruiken.
Naastgelegen ligt de in 2022 vernieuwde moderne badkamer. Deze is stijlvol afgewerkt en uitgerust met vloerverwarming, een vrijstaand ligbad, een ruim wastafelmeubel met dubbele geïntegreerde kraan, inloopdouche én de aansluiting voor wasmachine/droger en de CV-opstelling. De woning beschikt verder over een separaat vernieuwd toilet (2022) en praktische bergruimtes.
Loop je door, dan kom je in de indrukwekkende uitgebouwde woonkamer. Deze royale ruimte is voorzien van strak gestuukte wanden en plafonds met ingebouwde spots en een fraaie houten vloer. De open keuken vormt het hart van de woning en beschikt bovendien over een lichtstraat, waardoor de ruimte extra licht en ruimtelijk aanvoelt. De keuken is compleet uitgerust met onder andere een groot gasfornuis met oven, een vaatwasser, losse koel-vriescombinatie en diverse praktische lades. Aan de achterzijde springen de grote harmonica-deuren direct in het oog: deze kunnen volledig open, waardoor de woonkamer naadloos overloopt in de zonnige tuin. Gelegen op het westen geniet je hier van veel zon en privacy tot in de avonduren.
Ligging
De woning ligt in een zeer geliefde en rustige straat in Bos en Lommer, op korte afstand van zowel het Westerpark als het Erasmuspark. Op loop- en fietsafstand vind je een divers aanbod aan restaurantjes, speciaalzaken en supermarkten. Met de fiets ben je in 10 minuten in de Jordaan of het centrum. Ook de bereikbaarheid met de auto en het OV is uitstekend: de ring A10 en station Sloterdijk zijn snel en eenvoudig bereikbaar.
Erfpacht & VvE
De woning is gelegen op erfpachtgrond van de gemeente Amsterdam. De verkopers zijn reeds overgestapt onder de gunstige voorwaarden, waarbij het huidige tijdvak loopt tot en met 31-12-2050. De huidige canon bedraagt € 563,80 per jaar. Voor de periode daarna is gekozen voor een jaarlijkse canon.
Daarnaast maakt de woning deel uit van een actieve en gezonde VvE, wat bijdraagt aan zorgeloos wonen.
Algemene informatie:
- Woonoppervlakte circa 80 m2; conform NEN 2580 meetrapport
- Woning is in 2022 uitgebouwd en gerenoveerd;
- Luxe badkamer 2022;
- Deels voorzien van vloerverwarming;
- Keuken vernieuwd in 2022;
- Fraaie zonnige tuin op het westen met veel privacy;
- Energielabel A;
- CV-installatie Intergas HR 36 Extreme 2022 (betreft een huurketel, overname is mogelijk);
- Gelegen op gemeentelijke erfpachtgrond;
- Onderdeel van een actieve VVE met een maandelijkse bijdrage van € 111,- per maand;
- Notaris: keuze koper.
- Aanvaarding in overleg.
Voor inlichtingen of het maken van een afspraak voor een bezichtiging:
Visch & van Zeggelaar Amsterdam 020 - 20 91 911
Deze informatie is door ons met de nodige zorgvuldigheid samengesteld. Onzerzijds wordt echter geen enkele aansprakelijkheid aanvaard voor enige onvolledigheid, onjuistheid of anderszins, dan wel de gevolgen daarvan. Alle opgegeven maten en oppervlakten zijn indicatief. Koper heeft zijn eigen onderzoek plicht naar alle zaken die voor hem of haar van belang zijn. Met betrekking tot deze woning is de makelaar adviseur van verkoper. Wij adviseren u een deskundige (NVM-)makelaar in te schakelen die u begeleidt bij het aankoopproces. Indien u specifieke wensen heeft omtrent de woning, adviseren wij u deze tijdig kenbaar te maken aan uw aankopend makelaar en hiernaar zelfstandig onderzoek te (laten) doen. Indien u geen deskundige vertegenwoordiger inschakelt, acht u zich volgens de wet deskundige genoeg om alle zaken die van belang zijn te kunnen overzien. Van toepassing zijn de NVM voorwaarden.
----------------------------------------------------------------------------------------------------------------------------------------------------------------------------------------------------------------------------------------------------------------------------------------------------------------------------------------------------------------------------------------------------
Move-in Ready Ground-Floor Apartment with Extended Living Room and Sunny West-Facing Garden!
Welcome to Kijkduinstraat 87-H in Amsterdam! This charming ground-floor apartment was fully renovated in 2022 and extended at the rear by no less than four meters. The result is a modern, move-in ready home with a beautifully landscaped west-facing garden, where you can relax and enjoy the afternoon and evening sun after a long day at work.
Layout
Upon entering through your private front entrance, you step into the spacious hallway. From here, you have access to all rooms. At the front, you’ll find the large master bedroom, located on the quiet street side. It features built-in spotlights and offers plenty of space for a wardrobe and a large double bed. The room feels spacious and is neatly finished. The second bedroom is ideal for use as a child’s room, guest room, or home office.
Next door is the modern bathroom, fully renovated in 2022. Stylishly finished, it is equipped with underfloor heating, a freestanding bathtub, a large vanity unit with double integrated faucets, a walk-in shower, as well as connections for a washer/dryer and the central heating system. The home also has a separate modern toilet (2022) and several practical storage spaces.
Continuing on, you enter the impressive extended living room. This generous space features smooth plastered walls and ceilings with recessed spotlights and a beautiful wooden floor. The open kitchen forms the heart of the home and is enhanced by a skylight, making the space feel extra bright and spacious. The kitchen is fully equipped with, among other things, a large gas stove with oven, dishwasher, freestanding fridge-freezer, and plenty of storage drawers. At the rear, the large folding glass doors immediately catch the eye: they can be fully opened, seamlessly connecting the living room with the sunny garden. Facing west, you’ll enjoy plenty of sun and privacy well into the evening hours.
Location
The apartment is located on a highly sought-after and quiet street in Bos en Lommer, just a short distance from both Westerpark and Erasmuspark. Within walking and cycling distance, you’ll find a wide variety of restaurants, specialty shops, and supermarkets. By bike, you can reach the Jordaan or city center within 10 minutes. Accessibility by car and public transport is also excellent: the A10 ring road and Sloterdijk station are both quickly and easily reached.
Leasehold & HOA
The apartment is situated on leasehold land owned by the Municipality of Amsterdam. The sellers have already switched to the favorable conditions, with the current period running until December 31, 2050. The current ground rent is €563.80 per year. For the period thereafter, a perpetual annual canon has been chosen.
The apartment is also part of an active and financially healthy homeowners’ association (HOA), ensuring carefree living.
Key Information
- Living area approx. 80 m²; measured in accordance with NEN 2580
- Extended and renovated in 2022
- Luxury bathroom (2022)
- Partly equipped with underfloor heating
- Kitchen renewed in 2022
- Beautiful sunny west-facing garden with lots of privacy
- Energy label A
- Heating system: Intergas HR 36 Extreme (2022, rental system, takeover possible)
- Situated on municipal leasehold land
- Part of an active HOA with a monthly contribution of €111
- Notary: buyer’s choice
- Transfer date in consultation
For more information or to schedule a viewing:
Visch & van Zeggelaar Amsterdam
020 - 20 91 911
This information has been compiled with the utmost care. However, we accept no liability for any inaccuracies, incompleteness, or the consequences thereof. All stated measurements and surface areas are indicative. Buyers are responsible for conducting their own investigation into matters of importance to them. With regard to this property, the broker acts as an advisor to the seller. We recommend engaging an expert (NVM) real estate agent to guide you through the purchasing process. If you have specific wishes regarding the property, we advise you to make these known to your buying agent in good time and to carry out (or have carried out) independent research into these matters. If you do not engage an expert representative, the law assumes you are sufficiently knowledgeable to oversee all matters of importance yourself. The NVM terms and conditions apply.