Description
NIEUW IN DE VERKOOP-
Royale en modern afgewerkte benedenwoning van circa 125 m²( NEN 2580 ingemeten) met een heerlijke tuin van 69 m², gelegen op een toplocatie in de geliefde Rivierenbuurt. De woning is opvallend licht dankzij de hoge plafonds en de grote raampartijen en beschikt over een energielabel B, wat bijdraagt aan comfortabel en energiezuinig wonen. De ruime doorzonwoonkamer heeft een bijna unieke afmeting van maar liefst 40 m².
Met twee zeer ruime slaapkamers, de mogelijkheid om eenvoudig een derde slaapkamer te realiseren én zelfs een vierde op de eerste verdieping, is dit een ideale woning voor zowel stellen als gezinnen.
Indeling
De woning is verdeeld over twee woonlagen en beschikt over een praktische, royale indeling met veel licht en comfortabele buitenruimte.
Begane grond
Via de eigen entree en opgang komt u binnen in de hal, die toegang biedt tot de verschillende vertrekken. De eigen opgang biedt bovendien voldoende ruimte voor het plaatsen van een kinderwagen of eventueel een fiets, wat zorgt voor extra gemak in het dagelijks gebruik.
Op deze verdieping bevinden zich momenteel twee ruime slaapkamers en een rustige werkkamer. De indeling is echter flexibel: de werkkamer kan eenvoudig worden omgevormd tot een derde slaapkamer, waardoor de woning zeer geschikt is voor gezinnen.
Aan de achterzijde liggen de slaapkamers met directe toegang tot de royale, groen gelegen tuin van circa 70 m², een heerlijke plek om in alle rust van het buitenleven te genieten.
Centraal op de begane grond bevindt zich de ruime badkamer, voorzien van een ligbad, douche, wastafel en toilet. Daarnaast is er extra bergruimte aanwezig in meerdere vaste kasten, wat zorgt voor veel praktische opbergmogelijkheden.
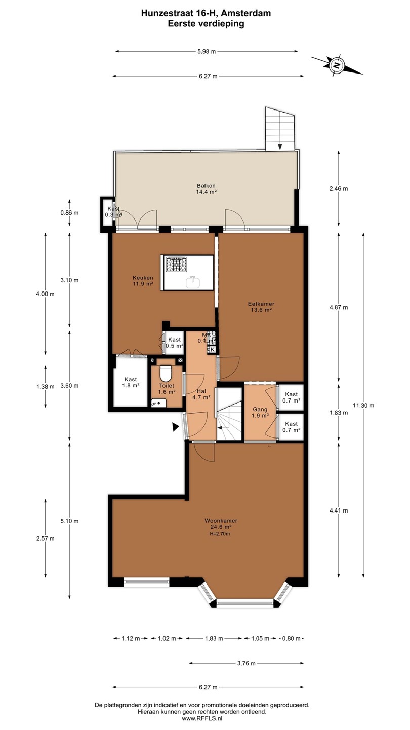
Eerste verdieping
De eerste verdieping biedt een lichte en open leefruimte. De woonkamer bevindt zich aan de voorzijde en beschikt over grote raampartijen en een fraaie erker, waardoor er een prettige sfeer en veel daglicht ontstaat.
De woonkamer en eetkamer worden op elegante wijze van elkaar gescheiden door karakteristieke ensuite schuifdeuren, die zorgen voor een prachtige jaren ’30 uitstraling en de mogelijkheid bieden om de ruimtes naar wens open en ruimtelijk of juist knus en afgesloten te gebruiken.
Aan de achterzijde bevindt zich de eetkamer met aansluitend de open keuken. De keuken is voorzien van een gasfornuis, Quooker en diverse inbouwapparatuur, waardoor deze volledig is ingericht voor comfortabel kookgemak. Vanuit de woonkamer heeft u toegang tot het ruime terras (14m2), waar u dankzij het vrije uitzicht van 11:00 uur tot laat op de dag van de zon kunt genieten. Bovendien zorgt dit open uitzicht voor een prachtige lichtinval in de woning.
Direct naast de keuken bevindt zich een praktische inpandige berging, ideaal voor extra opslagruimte, voorraad en huishoudelijke spullen. Deze handige ruimte draagt bij aan het comfortabele woongemak en maakt de woonverdieping bijzonder functioneel.
Naast de trap bevindt zich bovendien een separaat toilet, wat extra comfort biedt op deze woonlaag.
Daarnaast bestaat er de mogelijkheid om op deze verdieping nog een extra slaapkamer te creëren, waardoor een vierde slaapkamer tot de opties behoort.
Omgeving
Hunzestraat 16-HS is gelegen in de geliefde en kindvriendelijke Rivierenbuurt, één van de meest populaire woonwijken van Amsterdam-Zuid. De buurt staat bekend om haar rustige straten, karakteristieke bebouwing en prettige leefomgeving, ideaal voor gezinnen én stellen.
Op loopafstand vindt u diverse voorzieningen voor ontspanning en recreatie, waaronder een groen plantsoen en een tennisveldje waar buurtbewoners graag samenkomen. Voor dagelijkse boodschappen liggen meerdere supermarkten en winkels letterlijk om de hoek, waardoor u alles binnen handbereik heeft.
Daarnaast biedt de Rivierenbuurt een ruim aanbod aan gezellige horeca. In de directe omgeving bevinden zich geliefde cafés en restaurants zoals Café Vrijdag, Ode aan de Amstel en het authentieke Café Hesp. Ook de bruisende wijk De Pijp ligt op korte afstand, met haar vele terrassen, speciaalzaken en de bekende Albert Cuypmarkt.
De bereikbaarheid is uitstekend. Met de auto bent u binnen enkele minuten op de uitvalswegen richting de Ring A10 en de snelwegen daarbuiten. Ook met het openbaar vervoer zijn er goede verbindingen, waardoor u snel in het centrum of andere delen van de stad bent.
Vereniging van Eigenaren
De Vereniging van Eigenaren bestaat uit 28 leden en wordt professioneel beheerd. Er is een reservefonds aanwezig en er is een MJOP (meerjarenonderhoudsplan) opgesteld. De maandelijkse bijdrage bedraagt € 139,-.
Erfpacht
De woning is gelegen op gemeentelijke erfpachtgrond. De jaarlijkse canon bedraagt € 1.935,35. Het huidige tijdvak loopt tot en met 2059.
Bijzonderheden
• Vraagprijs: € 1.050.000 kosten koper;
• Tuin van 69 m²;
• Energielabel B;
• Drie slaapkamers, met mogelijkheid tot het creëren van een vierde slaapkamer;
• Ruim balkon;
• Woonoppervlakte: 125 m² (NEN 2580 ingemeten);
• Gezonde VvE;
• Servicekosten: € 139,- per maand;
• Gelegen op gemeentelijke erfpachtgrond;
• Oplevering bij voorkeur in juni;
• Notaris: keuze koper, binnen de ring van Amsterdam.