Description

**ENGLISH VERSION BELOW**


NIEUW IN DE VERKOOP - Hoofdweg 688 - Ruim en licht hoekappartement van 95 m² met drie royale slaapkamers en een heerlijk diep balkon op het zonnige westen!

Ben je op zoek naar een ruim en comfortabel appartement op een geweldige locatie in Amsterdam? Dit prachtige hoekappartement van maar liefst 95 m² biedt alles wat je nodig hebt: een lichte woonkamer, een moderne open keuken, drie fijne slaapkamers en een royaal balkon waar je volop kunt genieten van de middag- en avondzon.  

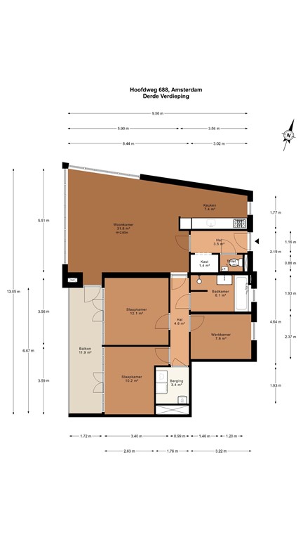
INDELING
Bij binnenkomst tref je een verzorgd en afgesloten entree met toegang tot de lift en het trappenhuis. Het appartement bevindt zich op de derde verdieping en valt direct op door de ruimtelijkheid en de overvloed aan licht, dankzij de grote raampartijen en de gunstige hoekligging.  Bij binnenkomst van de woning bevindt zich gelijk een handige garderobe ruimte. Hierdoor kun je prettig alles ophangen en blijft de woning keurig netjes.

De royale woonkamer is een heerlijke plek om te ontspannen en biedt dankzij de hoekligging en de grote ramen een prachtige lichtinval. De moderne open keuken is van alle gemakken voorzien, inclusief hoogwaardige inbouwapparatuur. Hier kook je met plezier terwijl je in contact blijft met je gasten.  

Het appartement beschikt over drie ruime slaapkamers, ideaal voor gezinnen, werkruimte of een logeerkamer. Daarnaast is er een aparte berging met ruimte voor een wasmachine en droger, waardoor je al je huishoudelijke apparaten netjes uit het zicht kunt houden.  

De stijlvolle badkamer is uitgerust met een comfortabel ligbad, een aparte douche en een wastafel. Het toilet bevindt zich separaat, wat extra gemak biedt.  

Een van de absolute pluspunten is het extra brede balkon op het westen, dat toegankelijk is vanuit de woonkamer en twee slaapkamers. Hier geniet je na een lange dag van de zon en een heerlijk uitzicht over de omgeving.  

Tot slot beschikt het appartement over een ruime privéberging (7 m²) in de onderbouw én is er de mogelijkheid om een parkeerplaats te huren of te kopen in de parkeergarage van het complex.  

LIGGING
Dit appartement ligt op een fantastische locatie, perfect voor iedereen die wil genieten van de stadse dynamiek én de rust van een groene omgeving. Binnen één minuut loop je naar de Bos en Lommerweg voor een breed scala aan winkels, supermarkten, de markt op het Bos en Lommerplein, een bibliotheek, en het stadsdeelkantoor. Op slechts enkele minuten loopafstand vind je diverse horecagelegenheden die bijdragen aan de levendige sfeer van de buurt. Enkele voorbeelden zijn:
Café Zurich: Gelegen op het Mercatorplein, biedt dit café een ruim terras en een gevarieerde menukaart voor zowel lunch als diner.
Bar Baarsch: Aan de Jan Evertsenstraat vind je deze gezellige bar waar je terecht kunt voor een borrel, maar ook voor een smakelijke maaltijd.
Café Cook: Dit eetcafé aan het Columbusplein staat bekend om zijn ontspannen sfeer en heerlijke gerechten, ideaal voor een avond uit in de buurt.

Liefhebber van cultuur en natuur? In slechts 5 minuten sta je bij Podium Mozaïek of wandel je door het prachtige Erasmuspark. Fiets je liever? Binnen 5 minuten ben je op station Sloterdijk of in het Westerpark, en in 10 minuten sta je midden in het bruisende centrum bij het Leidseplein. Bovendien stoppen diverse trams en bussen praktisch voor de deur, zodat je binnen no-time overal in Amsterdam bent.  

VERENIGING VAN EIGENAARS
In 2002 is het complex gesplitst in 128 appartementsrechten. De maandelijkse bijdrage betreft € 214 per maand. In 2024 is de laatste jaarvergadering geweest van de VvE. Het beheer wordt dus actief gevoerd en wordt uitbesteed aan een externe partij te weten VVE Beheer Amsterdam. Er is een MJOP voor de VVE opgesteld.

GRONDSITUATIE
De woning is gelegen op grond welke is uitgegeven in erfpacht door de Gemeente Amsterdam. De erfpachtcanon is destijds afgekocht tot 1 december 2055.

KENMERKEN
- Bouwjaar 2008, dus goed geïsoleerd en energiezuinig  
- Extra dik HR++ glas voor maximale geluidsisolatie, binnen hoor je niets
- Uitzonderlijk lichte woonkamer door hoekligging en grote raampartijen  
- 3 ruime slaapkamers
- Lift aanwezig voor extra comfort  
- In 2024 net geschilderd en gereinigd van buiten
- Privéberging van 7 m² in de onderbouw  
- Erfpacht afgekocht tot 1 december 2055  
- Extra diep balkon op het westen – perfect voor zonliefhebbers!  
- Actieve en gezonde VvE met professioneel beheer (€ 214,- per maand)  
- Parkeerplaats optioneel te huur/koop

Kortom: een heerlijk ruim en licht appartement op een toplocatie! Interesse? Neem snel contact op en kom dit pareltje met eigen ogen bekijken.

Voor inlichtingen of het maken van een afspraak voor een bezichtiging:

Visch & van Zeggelaar Amsterdam 020 - 20 91 911

Deze informatie is door ons met de nodige zorgvuldigheid samengesteld. Onzerzijds wordt echter geen enkele aansprakelijkheid aanvaard voor enige onvolledigheid, onjuistheid of anderszins, dan wel de gevolgen daarvan. Alle opgegeven maten en oppervlakten zijn indicatief. Koper heeft zijn eigen onderzoek plicht naar alle zaken die voor hem of haar van belang zijn. Met betrekking tot deze woning is de makelaar adviseur van verkoper. Wij adviseren u een deskundige (NVM-)makelaar in te schakelen die u begeleidt bij het aankoopproces. Indien u specifieke wensen heeft omtrent de woning, adviseren wij u deze tijdig kenbaar te maken aan uw aankopend makelaar en hiernaar zelfstandig onderzoek te (laten) doen. Indien u geen deskundige vertegenwoordiger inschakelt, acht u zich volgens de wet deskundige genoeg om alle zaken die van belang zijn te kunnen overzien. Van toepassing zijn de NVM voorwaarden.

__________________________________________________________


**ENGLISH VERSION**


NEW ON THE MARKET – Hoofdweg 688 – Spacious and bright corner apartment of 95 m² with three generous bedrooms and a deep, west-facing balcony that soaks up the sun!

Are you looking for a spacious and comfortable apartment in a fantastic location in Amsterdam? This beautiful corner apartment of no less than 95 m² has everything you need: a bright living room, a modern open kitchen, three well-sized bedrooms, and a generous balcony where you can fully enjoy the afternoon and evening sun.

LAYOUT
Upon entering, you’ll find a well-maintained and secure entrance with access to both the elevator and staircase. The apartment is located on the third floor and immediately stands out due to its spacious feel and abundance of natural light, thanks to the large windows and favorable corner position. Right as you enter the apartment, there's a convenient coat area where you can neatly hang everything, keeping the home tidy.

The generous living room is a wonderful space to relax and, with its corner location and large windows, benefits from beautiful natural light. The modern open kitchen is fully equipped with high-quality built-in appliances, making cooking a pleasure while staying connected with your guests.

The apartment offers three spacious bedrooms – perfect for families, a home office, or a guest room. There is also a separate storage room with space for a washing machine and dryer, keeping all your appliances neatly out of sight.

The stylish bathroom features a comfortable bathtub, a separate shower, and a sink. The toilet is separate, adding extra convenience.

One of the standout features is the extra-wide west-facing balcony, accessible from both the living room and two bedrooms. It’s the perfect spot to unwind at the end of the day and enjoy the sunshine and the view of the surrounding area.

Lastly, the apartment includes a private storage room (7 m²) in the basement. There's also the option to rent or purchase a parking space in the complex’s garage.

LOCATION
This apartment is in a fantastic location, ideal for those who want to enjoy the vibrancy of the city as well as the peace of a green environment. Within a one-minute walk, you’ll find Bos en Lommerweg, offering a wide variety of shops, supermarkets, the market at Bos en Lommerplein, a library, and the local municipal office. Just a few minutes away, you’ll find several cafés and restaurants that add to the lively atmosphere of the neighborhood. Some examples include:
Café Zurich: Located on Mercatorplein, this café offers a spacious terrace and a varied menu for lunch and dinner.
Bar Baarsch: A cozy bar on Jan Evertsenstraat, great for drinks or a delicious meal.
Café Cook: A relaxed eatery on Columbusplein known for its laid-back vibe and tasty dishes – perfect for a night out close to home.

Love culture and nature? Within just 5 minutes, you can reach Podium Mozaïek or take a walk through the beautiful Erasmus Park. Prefer biking? In 5 minutes, you’re at Sloterdijk Station or in Westerpark, and in 10 minutes you’ll be right in the heart of the city at Leidseplein. Several trams and buses stop practically at your doorstep, so you can get anywhere in Amsterdam in no time.

HOMEOWNERS’ ASSOCIATION
The complex was divided into 128 apartment rights in 2002. The monthly contribution is €214. The last general meeting of the homeowners’ association (VvE) was held in 2024. The association is actively managed by a professional company: VVE Beheer Amsterdam. A multi-year maintenance plan (MJOP) has been established.

LAND SITUATION
The apartment is located on leasehold land issued by the Municipality of Amsterdam. The ground lease has been bought off until December 1st, 2055.

FEATURES
Built in 2008 – well insulated and energy efficient
Extra thick HR++ glass for maximum sound insulation — you won't hear a thing inside 
Exceptional bright living room due to corner location and large windows
3 spacious bedrooms
Elevator for added convenience
Recently painted and cleaned exterior (2024)
Private storage room (7 m²) in the basement
Ground lease bought off until December 1st, 2055
Extra-deep west-facing balcony – perfect for sun lovers!
Active and healthy homeowners’ association with professional management (€214 per month)
Optional parking space for rent or purchase

In short: a wonderfully spacious and bright apartment in a prime location! Interested? Don’t wait—get in touch and come see this gem for yourself.

For more information or to schedule a viewing, contact:
Visch & van Zeggelaar Amsterdam – 020 - 20 91 911

This information has been compiled with the utmost care. However, no liability is accepted for any incompleteness, inaccuracies, or otherwise, nor for the consequences thereof. All stated measurements and surface areas are indicative. Buyers are expected to carry out their own due diligence into all matters of importance to them. With regard to this property, the real estate agent represents the seller. We recommend that you engage a professional (NVM) real estate agent to assist you with the purchasing process. If you have specific requirements regarding the property, we advise you to inform your purchasing agent in time and have these matters investigated independently. If you choose not to engage a professional representative, the law assumes that you are sufficiently expert to oversee all matters that may be relevant. The NVM conditions apply.

Features