Description

NIEUW IN DE VERKOOP - Hacquartstraat 15 – Amsterdam Zuid

Aan de Hacquartstraat, een rustige straat in het hart van Amsterdam Oud-Zuid, staat dit royale familiehuis van ruim 9 meter breed met een woonoppervlak van 346 m² en een perceel van 292 m². Gebouwd in 1926 en door de jaren heen met zorg onderhouden en aangepast aan de tijd, straalt het huis karakter en klasse uit.

De gevel verraadt al iets van de allure binnen: hoge plafonds, royale ruimtes en een stijlvolle combinatie van klassiek en modern. Het open trappenhuis met doorkijk naar het dakraam bovenaan de trap zorgt voor een natuurlijke lichtinval door het hele huis.

INDELING
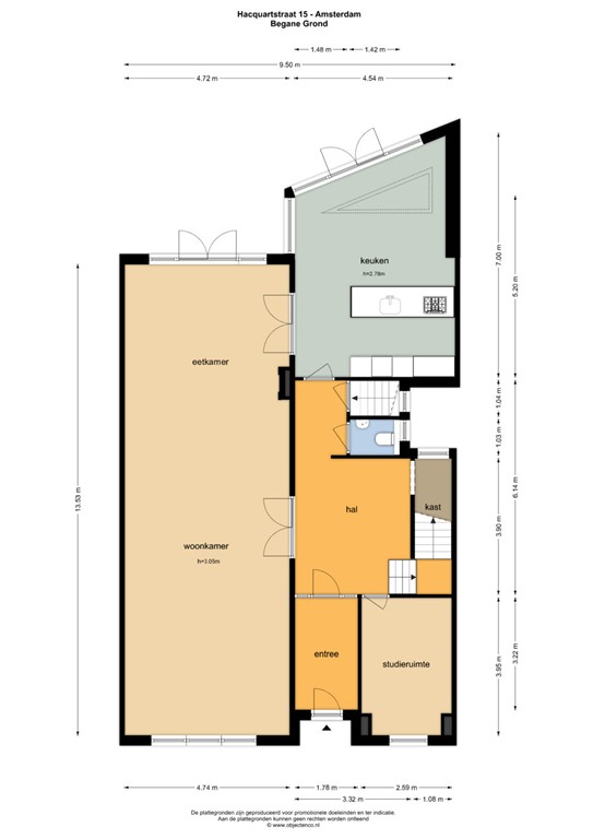
Begane grond
De leefverdieping ademt ruimte en licht. Aan de voorzijde bevindt zich de woonkamer, royaal van opzet en met hoge plafonds die het gevoel van grandeur versterken. Hier zorgt een open haard voor warmte en sfeer. De eetkamer sluit naadloos aan en geeft toegang tot de zonnige tuin. De keuken is ruim en modern, ingericht als centraal ontmoetingspunt van het huis. Daarnaast zijn er een brede hal en een afzonderlijke studeerkamer of kantoor, ideaal voor werken aan huis.

Eerste verdieping
Op de eerste etage liggen drie ruime slaapkamers, elk voorzien van inbouw- of inloopkasten. De hoofdslaapkamer beschikt over royale kastruimte en veel lichtinval. De badkamer is ruim en comfortabel ingericht met een inloopdouche, ligbad en dubbele wastafel. Op deze verdieping is tevens een separaat toilet aanwezig.

Tweede verdieping
Hier bevinden zich nog eens twee volwaardige slaapkamers, beide met karakter en voldoende ruimte voor kasten en een bureau. Ook is er een tweede badkamer met ligbad, douche en dubbele wastafel. De aangrenzende wasruimte zorgt voor praktische luxe en comfort.

Souterrain
Het souterrain voegt een extra dimensie toe aan het huis. De multifunctionele ruimte kan gebruikt worden als kinderkamer, speelruimte, thuisgym of yogastudio. Daarnaast is er een berging aanwezig.

Buitenleven
De tuin op het zuiden is een oase van rust midden in de stad. Breed en diep, met volop zon en privacy, een plek waar kinderen kunnen spelen en waar het goed toeven is met familie en vrienden.

LOCATIE
De Hacquartstraat is een charmante en rustige straat in Oud-Zuid, een wijk die bekendstaat om haar statige lanen en verfijnde woonklimaat. Op loopafstand liggen het Vondelpark, het Concertgebouw en de exclusieve winkels en restaurants van de Cornelis Schuytstraat. Ook het Museumplein, met het Rijksmuseum, Van Gogh Museum en het Stedelijk, bevindt zich vlakbij.

Dankzij de gunstige ligging zijn de Zuidas en Station Zuid binnen enkele minuten bereikbaar, evenals de ring A10 richting Schiphol. Hierdoor combineert deze locatie de rust van een woonstraat met een uitzonderlijk goede verbinding naar zowel het culturele hart van de stad als het internationale zakencentrum.

KENMERKEN
- Woonoppervlak: 346 m² (conform NEN2580)
- Perceel: 292 m²
- Bouwjaar: 1926
- Breedte: ruim 9 meter
- Familiehuis met royale indeling
- Open haard op de begane grond
- Open trappenhuis met doorkijk naar dakraam
- Zonnige tuin op het zuiden
- Gelegen in Amsterdam Oud-Zuid
- Erfpacht: tijdvak tot en met 31-12-2045
- Canon: € 3.294,44 per jaar, AB2016 van toepassing

Voor inlichtingen of het maken van een afspraak voor een bezichtiging:

Visch & van Zeggelaar Amsterdam 020 - 20 91 911

Deze informatie is door ons met de nodige zorgvuldigheid samengesteld. Onzerzijds wordt echter geen enkele aansprakelijkheid aanvaard voor enige onvolledigheid, onjuistheid of anderszins, dan wel de gevolgen daarvan. Alle opgegeven maten en oppervlakten zijn indicatief. Koper heeft zijn eigen onderzoek plicht naar alle zaken die voor hem of haar van belang zijn. Met betrekking tot deze woning is de makelaar adviseur van verkoper. Wij adviseren u een deskundige (NVM-)makelaar in te schakelen die u begeleidt bij het aankoopproces. Indien u specifieke wensen heeft omtrent de woning, adviseren wij u deze tijdig kenbaar te maken aan uw aankopend makelaar en hiernaar zelfstandig onderzoek te (laten) doen. Indien u geen deskundige vertegenwoordiger inschakelt, acht u zich volgens de wet deskundige genoeg om alle zaken die van belang zijn te kunnen overzien. Van toepassing zijn de NVM voorwaarden.

-----------------------------------------------------------------------------------------------------------------------

NEW TO THE MARKET – Hacquartstraat 15 – Amsterdam Zuid

On the Hacquartstraat, a quiet street in the heart of Amsterdam Oud-Zuid, stands this generous family home measuring over 9 meters in width, with a living area of 346 m² and a plot of 292 m². Built in 1926 and carefully maintained and adapted over the years, the house exudes both character and class.

The façade already hints at the allure inside: high ceilings, spacious rooms, and a stylish blend of classic and modern. The open staircase with a view towards the skylight at the top of the stairs provides natural light throughout the house.

LAYOUT
Ground floor
The living level breathes space and light. At the front is the living room, generous in scale with high ceilings that enhance the sense of grandeur. A fireplace adds warmth and atmosphere. The dining room flows seamlessly towards the sunny garden. The kitchen is spacious and modern, designed as the central gathering point of the house. In addition, there is a wide hallway and a separate study or office, ideal for working from home.

First floor
On the first floor are three large bedrooms, each with built-in or walk-in wardrobes. The master bedroom offers ample closet space and plenty of light. The bathroom is generous and comfortably designed with a walk-in shower, bathtub and double sink. A separate toilet is also located on this floor.

Second floor
This level contains two further full-size bedrooms, each with character and sufficient space for wardrobes and a desk. There is also a second bathroom with bathtub, shower and double sink. An adjacent laundry room adds practical convenience and comfort.

Basement
The basement adds another dimension to the house. This multifunctional space can be used as a children’s room, playroom, home gym or yoga studio. A storage room is also present.

Outdoor living
The south-facing garden is an oasis of calm in the middle of the city. Wide and deep, with plenty of sun and privacy, it is a place where children can play and where it is a pleasure to relax with family and friends.

LOCATION
The Hacquartstraat is a charming and quiet street in Oud-Zuid, a neighbourhood known for its stately avenues and refined living environment. Within walking distance are the Vondelpark, the Concertgebouw and the exclusive shops and restaurants of the Cornelis Schuytstraat. The Museumplein, with the Rijksmuseum, Van Gogh Museum and the Stedelijk, is also nearby.

Thanks to its convenient location, the Zuidas business district and Station Zuid are only minutes away, as is the A10 ring road towards Schiphol Airport. This location combines the tranquillity of a residential street with excellent connections to both the cultural heart of the city and the international business centre.

SPECIFICATIONS
- Living area: 346 m² (NEN2580 measurement)
- Plot: 292 m²
- Year of construction: 1926
- Width: over 9 meters
- Family home with spacious layout
- Fireplace on the ground floor
- Open staircase with view to skylight
- Sunny south-facing garden
- Located in Amsterdam Oud-Zuid
- Leasehold: period until 31-12-2045
- Ground rent: € 3,294.44 per year, AB2016 applicable

For information or to schedule a viewing:

Visch & van Zeggelaar Amsterdam 020 - 20 91 911

This information has been compiled with due care. However, no liability is accepted for any incompleteness, inaccuracy or otherwise, nor for the consequences thereof. All specified dimensions and surfaces are indicative. Buyers have their own duty to investigate all matters of importance to them. With regard to this property, the broker acts as advisor to the seller. We recommend that you engage a professional (NVM) broker to guide you through the purchase process. If you have specific wishes concerning the property, we advise you to communicate these in good time to your purchasing broker and to independently investigate them. If you do not engage a professional representative, you are deemed by law to be sufficiently expert to oversee all matters of importance. The NVM conditions apply.

Features