Description
NIEUW IN DE VERKOOP – BERGHAUS AMSTERDAM – Eigentijds wonen aan het Koningin Wilhelminaplein.
- OPEN HUIS WOENSDAG 29 OKTOBER VANAF 13:00 TOT 16:00 UUR. VRIJ OM IN TE LOPEN -
Welkom bij Berghaus: een modern woonproject met high-end appartementen aan het Koningin Wilhelminaplein in Amsterdam. De woningen zijn gelegen op eigen grond – dus geen erfpacht – en worden geleverd vrij op naam, wat betekent dat je als koper géén overdrachtsbelasting betaalt. Berghaus biedt uitstekende voorzieningen, waaronder een ruime ondergrondse parkeergarage en een gemeenschappelijke fietsenstalling – ideaal voor wie comfortabel en zorgeloos wil wonen in de stad.
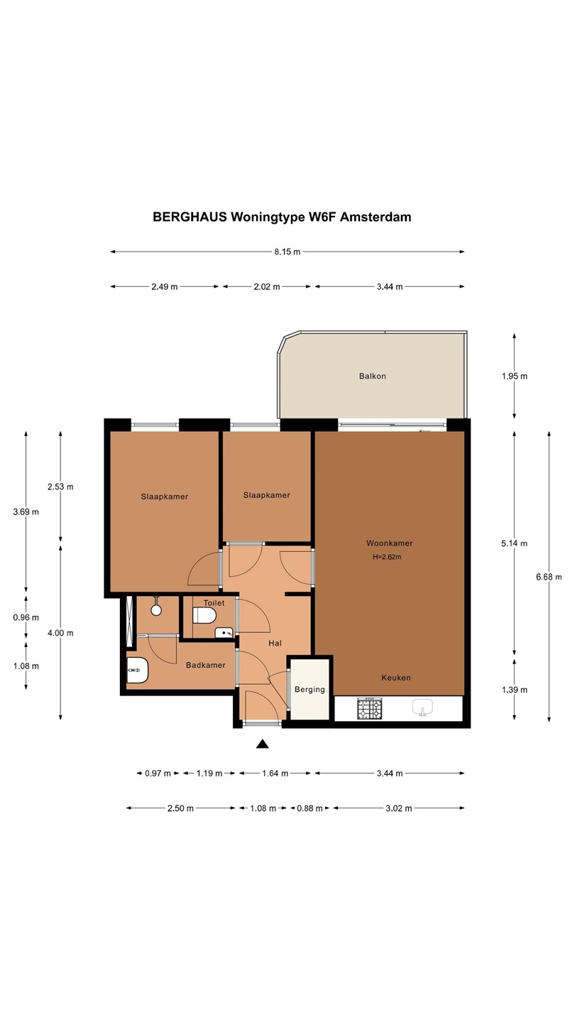
INDELING – Woningtype W6F
Dit woningtype laat zien hoe ruim je kunt wonen als je de indeling slim maakt. De appartementen hebben 2 slaapkamers en een balkon.
Elke vierkante meter is optimaal benut. Het resultaat is dat je een ruime woonkamer met open keuken hebt waar je met gemak een grote tafel en een loungebank kwijt kunt. Via de schuifpui komt er veel licht binnen en stap je zo je balkon op voor een kopje koffie in de ochtend.
HET GEBOUW
Berghaus, hoogwaardige kwaliteit met uitstekende bereikbaarheid aan de rand van de stad. Het gebouw bestaat naast 288 luxe woningen ook uit een kantoorgedeelte en meerdere commerciële bedrijfsruimtes op de begane grond. Daardoor zijn alle gewenste faciliteiten binnen handbereik. Er komt onder andere een supermarkt, een sportschool en een koffiezaak. In het kantoorgebouw wordt ruimte gemaakt voor co-working, ideaal als je liever niet thuis werkt. Daarnaast zijn er diverse meeting- en eventruimtes te huur. Zo groeit Berghaus uit tot het bruisende hart van het Fashion District.
GROEN OM DE HOEK
Groen vind je overal rondom Berghaus. Op nog geen vijf minuten fietsen sta je in het Vondelpark – perfect voor een wandeling, een hardloopronde of gewoon ontspannen. Iets dichterbij ligt het Rembrandtpark: rustiger, ruim en ideaal om de stadse drukte te ontlopen. En heb je zin in meer natuur? Ook de Sloterplas, Park de Oeverlanden en het Amsterdamse Bos liggen verrassend dichtbij.
WINE & DINE
Wonen in Berghaus betekent midden in de stad zijn, maar toch je eigen rustige basis hebben. Vanuit hier wandel je zó het Vondelpark in, met een koffietje to-go in de hand. Daarna schuif je aan bij een van de vele sfeervolle cafés en restaurants in het bruisende Oud-West - een van de populairste buurten van Amsterdam.
DE IDEALE UITVALS BASIS
Reis je graag of moet je voor je werk vaak naar het buitenland, dan is Berghaus een ideale plek om te wonen. Schiphol is namelijk binnen 10 minuten bereiken, zowel met de auto als met het openbaar vervoer. Daarbij ben je met het metrostation Lelylaan om de hoek ook zo in andere delen van Amsterdam.
BIJZONDERHEDEN
- De woningen zijn gelegen op eigen grond, er is geen sprake van erfpacht;
- Zeer duurzame woningen, energielabels variërende van A+ tot en met A+++;
- Alle woningen beschikken over een eigen buitenruimte;
- Berging met wasmachine- en drogeraansluiting;
- Sleutelklaar opgeleverd met vloer- en wandafwerking, keuken en sanitair;
- Mogelijkheid tot huren van een parkeerplaats;
- Gedeelde binnentuin
- Geen overdrachtsbelasting van toepassing
- Projectnotaris: KB Notarissen Amsterdam
Voor inlichtingen of het maken van een afspraak voor een bezichtiging:
Visch & van Zeggelaar Amsterdam 020 - 20 91 911
Deze informatie is door ons met de nodige zorgvuldigheid samengesteld. Onzerzijds wordt echter geen enkele aansprakelijkheid aanvaard voor enige onvolledigheid, onjuistheid of anderszins, dan wel de gevolgen daarvan. Alle opgegeven maten en oppervlakten zijn indicatief. Koper heeft zijn eigen onderzoek plicht naar alle zaken die voor hem of haar van belang zijn. Met betrekking tot deze woning is de makelaar adviseur van verkoper. Wij adviseren u een deskundige (NVM-)makelaar in te schakelen die u begeleidt bij het aankoopproces. Indien u specifieke wensen heeft omtrent de woning, adviseren wij u deze tijdig kenbaar te maken aan uw aankopend makelaar en hiernaar zelfstandig onderzoek te (laten) doen. Indien u geen deskundige vertegenwoordiger inschakelt, acht u zich volgens de wet deskundige genoeg om alle zaken die van belang zijn te kunnen overzien. Van toepassing zijn de NVM voorwaarden.
------------------------------------------------------------------------------
NEW FOR SALE – BERGHAUS AMSTERDAM – Contemporary Living at Koningin Wilhelminaplein
- OPEN HOUSE WEDNESDAY, OCTOBER 29, FROM 1:00 PM TO 4:00 PM. FEEL FREE TO DROP BY -
Welcome to Berghaus: a modern residential project featuring high-end apartments at Koningin Wilhelminaplein in Amsterdam. The homes are situated on freehold land – so no leasehold – and are offered free of transfer costs, meaning you as the buyer do not pay any property transfer tax. Berghaus offers excellent amenities, including a spacious underground parking garage and a communal bicycle storage area – ideal for those seeking comfortable and carefree city living.
LAYOUT – Apartment Type W6F
This apartment type demonstrates how spacious living can be achieved with a clever layout. The apartments feature 2 bedrooms and a balcony.
Every square meter is optimally used, resulting in a spacious living room with an open kitchen that can easily accommodate a large dining table and a lounge sofa. The sliding doors let in plenty of light and lead directly to your balcony, perfect for a morning coffee.
THE BUILDING
Berghaus stands for high quality with excellent accessibility on the edge of the city. In addition to 288 luxury homes, the building also includes office space and several commercial units on the ground floor. As a result, all desired facilities are within easy reach. There will be a supermarket, a gym, and a coffee bar. The office section will include coworking spaces, perfect if you prefer not to work from home. Additionally, various meeting and event spaces will be available to rent. In this way, Berghaus is evolving into the vibrant heart of the Fashion District.
GREEN SPACES AROUND THE CORNER
Greenery is everywhere around Berghaus. Within just five minutes by bike, you'll find yourself in Vondelpark – ideal for a walk, a run, or simply to relax. Even closer is Rembrandtpark: quieter, spacious, and perfect for escaping the city's hustle and bustle. Looking for even more nature? Sloterplas, Park de Oeverlanden, and the Amsterdamse Bos are also surprisingly close.
WINE & DINE
Living at Berghaus means being right in the city while still enjoying your own peaceful home base. From here, you can walk straight into Vondelpark with a coffee to-go in hand. Then, head to one of the many cozy cafés and restaurants in lively Oud-West – one of Amsterdam’s most popular neighborhoods.
THE IDEAL BASE
If you love to travel or frequently travel abroad for work, Berghaus is an ideal place to live. Schiphol Airport can be reached in just 10 minutes, both by car and public transport. With Lelylaan metro station just around the corner, you’ll also have quick access to other parts of Amsterdam.
FEATURES-
- The homes are situated on freehold land – no leasehold;
- Very energy-efficient apartments, with energy labels ranging from A+ to A+++;
- All homes have their own outdoor space;
- Storage room with washer and dryer connections;
- Delivered turnkey with flooring, wall finishes, kitchen, and sanitary fittings;
- Option to rent a parking space;
- Shared courtyard garden;
- No property transfer tax applies;
- Project notary: KB Notarissen Amsterdam
For more information or to schedule a viewing:
Visch & van Zeggelaar Amsterdam 020 - 20 91 911
This information has been compiled with the utmost care. However, we accept no liability for any incompleteness, inaccuracies, or consequences thereof. All stated measurements and surface areas are indicative. Buyers are responsible for conducting their own due diligence on all matters of importance to them. The real estate agent represents the seller with respect to this property. We recommend that you engage a professional (NVM) real estate agent to assist you during the purchase process. If you have specific requirements for the property, we advise you to communicate these in time to your purchasing agent and have them independently verified. If you do not engage a professional representative, the law considers you sufficiently knowledgeable to oversee all relevant matters yourself. The NVM terms and conditions apply.