Description

NIEUW IN DE VERKOOP – Koppeldijk 22, Abcoude - Welkom aan de Koppeldijk 22, een uitstekend onderhouden en instapklare gezinswoning op een toplocatie in het geliefde Abcoude. Deze ruime twee-onder-een-kapwoning biedt met vier volwaardige slaapkamers, twee moderne badkamers, een eigen oprit, een royaal terras én een diepe achtertuin op het westen, alle comfort die een gezin zich kan wensen.

De woning ligt op loopafstand van het charmante dorpscentrum, met winkels, scholen, horeca en sportvoorzieningen binnen handbereik. Hier woon je in een rustige, kindvriendelijke buurt met veel groen, terwijl Amsterdam en Utrecht eenvoudig en snel bereikbaar zijn. Of je nu op zoek bent naar ruimte om thuis te werken, een fijne plek voor een jong gezin of gewoon comfortabel wilt wonen op een centrale locatie: deze woning biedt het allemaal.

INDELING
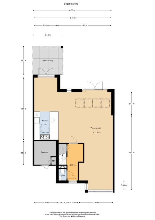
Entree aan de voorzijde van de woning. Vanuit de hal toegang tot het gastentoilet, de trap naar boven én de lichte woonkamer.

De woonkamer is ruim opgezet en voorzien van een open keuken, een eetgedeelte en een gezellige zithoek. Dankzij de raampartijen aan zowel de voor- als achterzijde is het een heerlijk lichte leefruimte. Via de openslaande deuren betreedt u de zonnige achtertuin met veranda – perfect voor lange zomeravonden.

Op de eerste verdieping bevinden zich drie goed bemeten slaapkamers en een badkamer. De bovenste verdieping is ingericht als master bedroom met veel privacy, voorzien van een eigen badkamer met ligbad – een echte luxe in huis.

OMGEVING:
Abcoude is een bijzonder geliefd dorp dat de rust van het buitenleven combineert met de gemakken van de stad. Binnen enkele minuten ben je in Amsterdam of Utrecht, dankzij de uitstekende verbindingen per auto en openbaar vervoer. Tegelijkertijd biedt Abcoude zelf alles wat je nodig hebt voor comfortabel wonen: van goede basisscholen en diverse sportverenigingen tot een breed aanbod aan winkels en speciaalzaken in het sfeervolle dorpscentrum.

Voor wie houdt van culinair genieten zijn er volop mogelijkheden. Op loopafstand van de woning vind je onder meer Restaurant de Eendracht, een vaste favoriet voor lunch, diner of een borrel in ongedwongen sfeer. Ook het charmante Hotel Koekenbier – met terras aan het water – is een begrip in Abcoude en perfect voor een gezellige avond uit. Cultuurliefhebbers kunnen hun hart ophalen bij het historische Fort bij Abcoude, onderdeel van de Stelling van Amsterdam en een unieke plek voor wandelingen, evenementen en exposities.

Hier woon je in een omgeving die écht alles biedt: rust, ruimte, natuur én kwaliteit. Een plek waar het leven goed is – voor jong én oud.

UITGANGSPUNTEN
- Vraagprijs: € 950.000,- kosten koper;
- Beschikbaar: per direct;
- Energielabel: B;
- Volledig gerenoveerd in 2016;
- Voortuin gelegen op het oosten, achtertuin op het westen;
- 4 volwaardige slaapkamers;
- Opritlaan voor 2-3 auto's;
- Notaris: keuze koper.

Voor inlichtingen of het maken van een afspraak voor een bezichtiging:

Visch & van Zeggelaar Amsterdam 020 - 20 91 911

Deze informatie is door ons met de nodige zorgvuldigheid samengesteld. Onzerzijds wordt echter geen enkele aansprakelijkheid aanvaard voor enige onvolledigheid, onjuistheid of anderszins, dan wel de gevolgen daarvan. Alle opgegeven maten en oppervlakten zijn indicatief. Koper heeft zijn eigen onderzoek plicht naar alle zaken die voor hem of haar van belang zijn. Met betrekking tot deze woning is de makelaar adviseur van verkoper. Wij adviseren u een deskundige (NVM-)makelaar in te schakelen die u begeleidt bij het aankoopproces. Indien u specifieke wensen heeft omtrent de woning, adviseren wij u deze tijdig kenbaar te maken aan uw aankopend makelaar en hiernaar zelfstandig onderzoek te (laten) doen. Indien u geen deskundige vertegenwoordiger inschakelt, acht u zich volgens de wet deskundige genoeg om alle zaken die van belang zijn te kunnen overzien. Van toepassing zijn de NVM voorwaarden.

*********************************************************************

NEW TO THE MARKET – Koppeldijk 22, Abcoude
Welcome to Koppeldijk 22 – a beautifully maintained and move-in-ready family home in a prime location in the highly sought-after village of Abcoude. This spacious semi-detached house offers everything a modern family could wish for: four full-sized bedrooms, two contemporary bathrooms, a private driveway, a generous terrace, and a deep west-facing garden perfect for catching the afternoon sun.

Ideally located within walking distance of the charming village center, you’ll find shops, schools, restaurants, and sports facilities all close at hand. Set in a peaceful, family-friendly neighborhood surrounded by greenery, this home offers the best of both worlds: tranquility and space, with Amsterdam and Utrecht easily and quickly accessible. Whether you're looking for room to work from home, a comfortable environment to raise a family, or simply a well-located and spacious home, this property ticks every box.

LAYOUT
The front entrance opens into a hallway with access to a guest toilet, the staircase to the upper floors, and a bright and spacious living area.

The living room features an open-plan kitchen, dining area, and a cozy seating corner. Thanks to large windows at both the front and rear, the space is filled with natural light. French doors at the back lead into the sunny west-facing garden with a veranda – ideal for long summer evenings.

The first floor hosts three well-sized bedrooms and a modern bathroom. The top floor is arranged as a private master suite, complete with its own bathroom including a bathtub – a touch of luxury at home.

SURROUNDINGS
Abcoude is a highly desirable village that combines the peace and charm of countryside living with the convenience of the city. Amsterdam and Utrecht are both just minutes away by car or public transport, while the village itself offers everything needed for daily life – from excellent primary schools and a variety of sports clubs to a wide range of shops and specialty stores in the picturesque village center.

Food lovers are spoiled for choice, with several popular restaurants just a short walk away – including the beloved Restaurant De Eendracht, known for its relaxed atmosphere and great lunch or dinner options. Also nearby is the charming Hotel Koekenbier, featuring a waterside terrace and a welcoming setting for a night out. Culture enthusiasts will enjoy exploring the historic Fort bij Abcoude, part of the Defence Line of Amsterdam (Stelling van Amsterdam), a UNESCO heritage site that now hosts walking trails, exhibitions, and events.

This is a location that truly offers it all – peace, space, nature, and quality of life. A place where both young and old can thrive.

KEY FEATURES
- Asking price: € 950,000 (costs for buyer)
- Available: immediately
- Energy label: B
- Fully renovated in 2016
- Front garden facing east, rear garden facing west
- 4 full-sized bedrooms
- Driveway with space for 2–3 cars
- Buyer may select their own notary

For more information or to schedule a viewing, please contact:
Visch & van Zeggelaar Amsterdam – 020 20 91 911

This information has been compiled with the utmost care. However, no rights can be derived from its content. All dimensions and surfaces are indicative. The buyer is responsible for conducting their own due diligence with regard to all aspects that may be relevant to them. The broker represents the seller in this transaction. We advise buyers to engage their own certified real estate agent (NVM) to assist in the purchase process. If you have specific requirements for the property, we recommend that you communicate these in a timely manner to your purchasing agent and conduct (or have conducted) further research. If you choose not to engage an expert, the law assumes that you consider yourself sufficiently knowledgeable to oversee all matters of importance. The NVM terms and conditions apply.

Features