Description

NIEUW IN DE VERHUUR - Hoogwaardig gerenoveerd dubbel bovenhuis aan de Keizersgracht. 

Op één van de mooiste en meest gewilde locaties van Amsterdam, midden in de historische grachtengordel, bevindt zich dit schitterende dubbel bovenhuis. Het appartement, gelegen aan de Keizersgracht, is recent volledig gerenoveerd en afgewerkt met oog voor detail. Moderne luxe en comfort worden hier gecombineerd met de karakteristieke sfeer van een klassiek grachtenpand.

Indeling
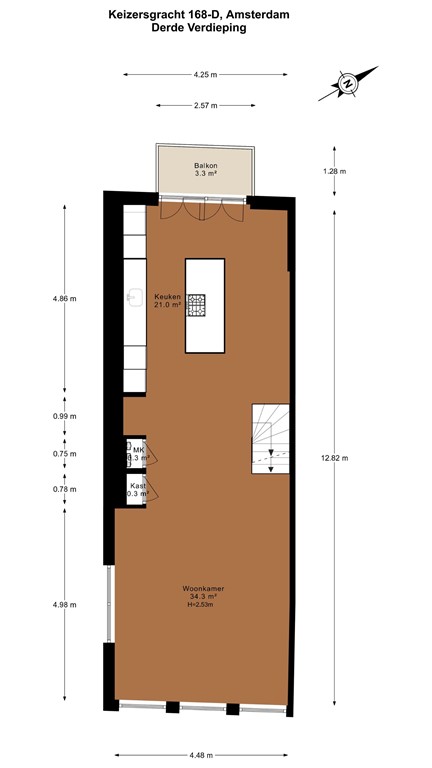
Via het gemeenschappelijke trappenhuis bereikt u de entree van de woning op de tweede verdieping. Vanuit de hal leidt de trap naar de derde verdieping, waar u direct wordt verwelkomd door de ruime en lichte leefruimte.

De royale woonkamer aan de voorzijde beschikt over grote ramen met prachtig uitzicht over de gracht en een plafondhoogte van 2,53 meter, wat het gevoel van ruimte en licht versterkt. Aan de achterzijde bevindt zich de stijlvolle open keuken, voorzien van een luxe kookeiland en moderne inbouwapparatuur. Hier is volop ruimte om te koken en te dineren, en via openslaande deuren is er toegang tot een zonnig balkon - een heerlijke plek om buiten te genieten. Op deze verdieping zijn tevens een praktische bergkast en meterkast aanwezig.

De vierde verdieping is ingericht als slaapverdieping en biedt drie slaapkamers en twee badkamers. Aan de voorzijde bevindt zich de royale master bedroom met een luxe badkamer en suite, voorzien van een douche en wastafel. Aan de achterzijde ligt een tweede ruime slaapkamer, eveneens met veel lichtinval. De derde slaapkamer is ideaal als logeerkamer, kinderkamer of thuiskantoor. Daarnaast beschikt deze verdieping over een tweede badkamer, een separaat toilet en extra bergruimte.

Omgeving
De Keizersgracht ligt op loopafstand van de 9 Straatjes, bekend om hun unieke boetiekjes, gezellige koffiezaken en stijlvolle restaurants. Ook de Jordaan ligt om de hoek, met zijn charmante straatjes, kunstgaleries en de levendige zaterdagmarkt op de Lindengracht. Voor cultuur en ontspanning bereikt u binnen enkele minuten het Koninklijk Theater Carré, het Concertgebouw, diverse bioscopen en talloze musea, waaronder het Anne Frank Huis en het Rijksmuseum.
Qua bereikbaarheid is dit een uitstekende locatie: diverse tram- en busverbindingen bevinden zich op loopafstand, en het Centraal Station ligt op slechts enkele minuten fietsen. Voor de dagelijkse boodschappen kunt u terecht bij meerdere supermarkten en speciaalzaken in de directe omgeving. Ondanks de centrale ligging is de Keizersgracht een verrassend rustige plek om te wonen, dankzij de groene bomenrijen langs de gracht en de beperkte verkeersdrukte.

Kenmerken
- Huurprijs: €4.000,- per maand exclusief gas, water en licht;
- Woonoppervlakte: ca. 105 m²;
- 3 slaapkamers;
- Luxe open keuken met moderne apparatuur;
- 2 badkamer met een moderne afwerking;
- Volledig gerenoveerd, hoogwaardige kwaliteit;
- Gelegen op een toplocatie: de Keizersgracht in Amsterdam-Centrum;
- Per direct beschikbaar;

Voor inlichtingen of het maken van een afspraak voor een bezichtiging:

Visch & van Zeggelaar Amsterdam 020 - 20 91 911

Deze informatie is door ons met de nodige zorgvuldigheid samengesteld. Onzerzijds wordt echter geen enkele aansprakelijkheid aanvaard voor enige onvolledigheid, onjuistheid of anderszins, dan wel de gevolgen daarvan. Alle opgegeven maten en oppervlakten zijn indicatief. Koper heeft zijn eigen onderzoek plicht naar alle zaken die voor hem of haar van belang zijn. Met betrekking tot deze woning is de makelaar adviseur van verkoper. Wij adviseren u een deskundige (NVM-)makelaar in te schakelen die u begeleidt bij het aankoopproces. Indien u specifieke wensen heeft omtrent de woning, adviseren wij u deze tijdig kenbaar te maken aan uw aankopend makelaar en hiernaar zelfstandig onderzoek te (laten) doen. Indien u geen deskundige vertegenwoordiger inschakelt, acht u zich volgens de wet deskundige genoeg om alle zaken die van belang zijn te kunnen overzien. Van toepassing zijn de NVM voorwaarden.

--------------------------------------------------------------

NEW FOR RENT - Beautifully renovated double upper house on the Keizersgracht

Located in one of the most beautiful and sought-after areas of Amsterdam, right in the heart of the historic canal district, you will find this stunning double upper house. The apartment, situated on the prestigious Keizersgracht, has been recently fully renovated with great attention to detail. Modern luxury and comfort are seamlessly combined here with the characteristic charm of a classic canal house.

Layout
Through the communal staircase you reach the entrance of the apartment on the second floor. From the hallway, the stairs lead to the third floor, where you are immediately welcomed by the spacious and bright living area.

The generous living room at the front features large windows with a beautiful view over the canal and a ceiling height of 2.53 meters, enhancing the sense of space and light. At the rear, you will find the stylish open kitchen, equipped with a luxurious cooking island and modern built-in appliances. There is ample space for cooking and dining, and French doors provide access to a sunny balcony – a wonderful spot to enjoy the outdoors. This floor also includes a practical storage closet and utility cupboard.

The fourth floor is designed as the sleeping area and offers three bedrooms and two bathrooms. At the front you will find the spacious master bedroom with a luxurious en-suite bathroom, fitted with a shower and washbasin. At the rear is a second well-sized bedroom with plenty of natural light. The third bedroom is perfect as a guest room, children’s room, or home office. This floor also includes a second bathroom, a separate toilet, and additional storage space.

Surroundings
The Keizersgracht is within walking distance of the famous 9 Streets, known for their unique boutiques, cozy cafés, and stylish restaurants. The charming Jordaan neighborhood is just around the corner, with its art galleries, picturesque streets, and the lively Saturday market on the Lindengracht. For culture and entertainment, you can reach the Royal Theater Carré, the Concertgebouw, several cinemas, and numerous museums – including the Anne Frank House and the Rijksmuseum – within minutes.
In terms of accessibility, this is an excellent location: several tram and bus connections are within walking distance, and Central Station is just a few minutes away by bike. For daily groceries, you will find a wide selection of supermarkets and specialty shops in the immediate area. Despite its central location, the Keizersgracht offers a surprisingly peaceful living environment, thanks to the tree-lined canal and limited traffic.

Features
- Rent: €4,000 per month excluding utilities;
- Living area: approx. 105 m²;
- 3 bedrooms;
- Luxurious open kitchen with modern appliances;
- 2 bathrooms with high-quality finishes;
- Fully renovated, premium quality;
- Prime location: Keizersgracht, Amsterdam city center;
- Available immediately.

For more information or to schedule a viewing:

Visch & van Zeggelaar Amsterdam 020 – 20 91 911

This information has been compiled with the utmost care. However, no liability is accepted for any incompleteness, inaccuracy, or otherwise, nor for the consequences thereof. All specified sizes and surfaces are indicative. The buyer has their own duty to investigate all matters that are important to him or her. With regard to this property, the broker acts as an advisor to the seller. We recommend engaging a professional (NVM) real estate agent to guide you through the purchasing process. If you have specific wishes regarding the property, we advise you to make them known to your purchasing agent in good time and to conduct (or have conducted) independent research. If you do not engage a professional representative, you are legally considered sufficiently expert to oversee all matters of importance. NVM terms and conditions apply.

Features